! ! Preissenkung ! ! Zweifamilienhaus in ländlicher Gegend mit viel Platz für Tierhaltung

Kaufpreis 245.000 €
Zimmer 7
Größe 260 m²
01665 Klipphausen

Objektdaten

Veröffentlicht am: 27. März 2025
Energieausweis: Liegt bei der Besichtigung vor
  • Objektbeschreibung

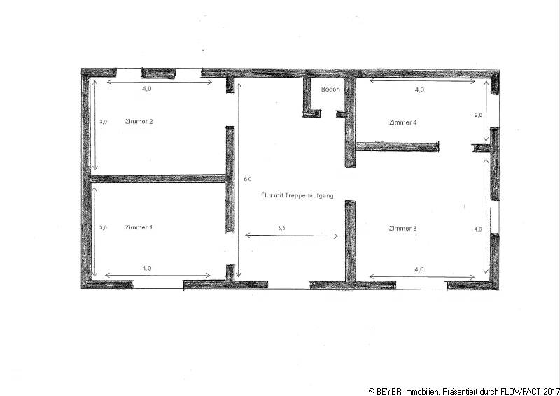
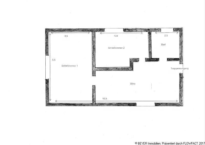
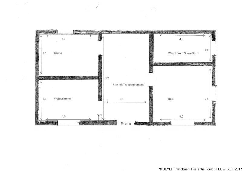
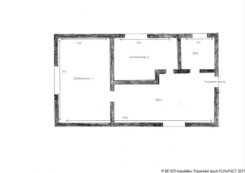
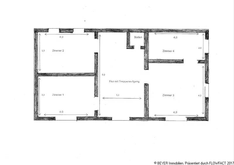
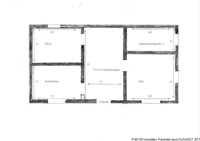
    Das Mehrfamilienhaus zeichnet sich durch seine vielseitigen Eigenschaften aus, die sowohl historische Elemente als auch moderne Annehmlichkeiten umfassen. Hier ist eine detaillierte Beschreibung:Das zweistöckige Mehrfamilienhaus beherbergt zwei großzügige Wohneinheiten, von denen eine derzeit vermietet ist. Die vermietete Einheit erstreckt sich über ca. 132 Quadratmeter Wohnfläche und generiert eine monatliche Mieteinnahme von 550 Euro kalt. Die Wohnung zeichnet sich durch eine Altbaudeckenkonstruktion aus, die eine Deckenhöhe von etwa 2 Metern aufweist, was dem Raum einen charmanten historischen Charakter verleiht.Das Gebäude wurde im Jahr 2000 umfassend saniert und durch Umbauarbeiten modernisiert. Diese Maßnahmen haben dazu beigetragen, die Wohnqualität zu verbessern und die Infrastruktur auf den neuesten Stand zu bringen. Glasfaseranschluss wurde bereits im Haus verlegt, um den Bewohnern schnellen Internetzugang zu ermöglichen.Das Mehrfamilienhaus verfügt über einen Keller, der zusätzlichen Stauraum bietet. Das Grundstück umfasst insgesamt 3913 Quadratmeter, wovon 1285 Quadratmeter als Landwirtschaftsfläche genutzt werden. Zusätzlich wurde eine Biokläranlage installiert, um eine umweltfreundliche Abwasserbehandlung zu gewährleisten.Ein weiteres interessantes Detail ist die Verpachtung einer Wiese auf dem Grundstück. Diese Fläche trägt zur Vielseitigkeit des Anwesens bei und bietet möglicherweise landwirtschaftliche oder ökologische Nutzungsmöglichkeiten.Insgesamt präsentiert sich das Mehrfamilienhaus als eine gelungene Kombination aus historischem Charme und modernem Wohnkomfort, eingebettet in ein großzügiges Grundstück mit verschiedenen Nutzungsmöglichkeiten.
    Nach oben scrollen