Kaufpreis 605.000 €
Zimmer 4
Größe 122 m²
66424 Homburg
Objektdaten
Veröffentlicht am: 27. März 2025
Energieausweis: Liegt bei der Besichtigung vor
Danke! Bitte bestätige Deine E-Mail-Adresse – wir haben Dir soeben eine Mail geschickt.
Es gab ein Problem beim Absenden. Bitte versuche es erneut.
Bitte bestätige Deine E-Mail-Adresse, um Updates zu erhalten.
Objektbeschreibung
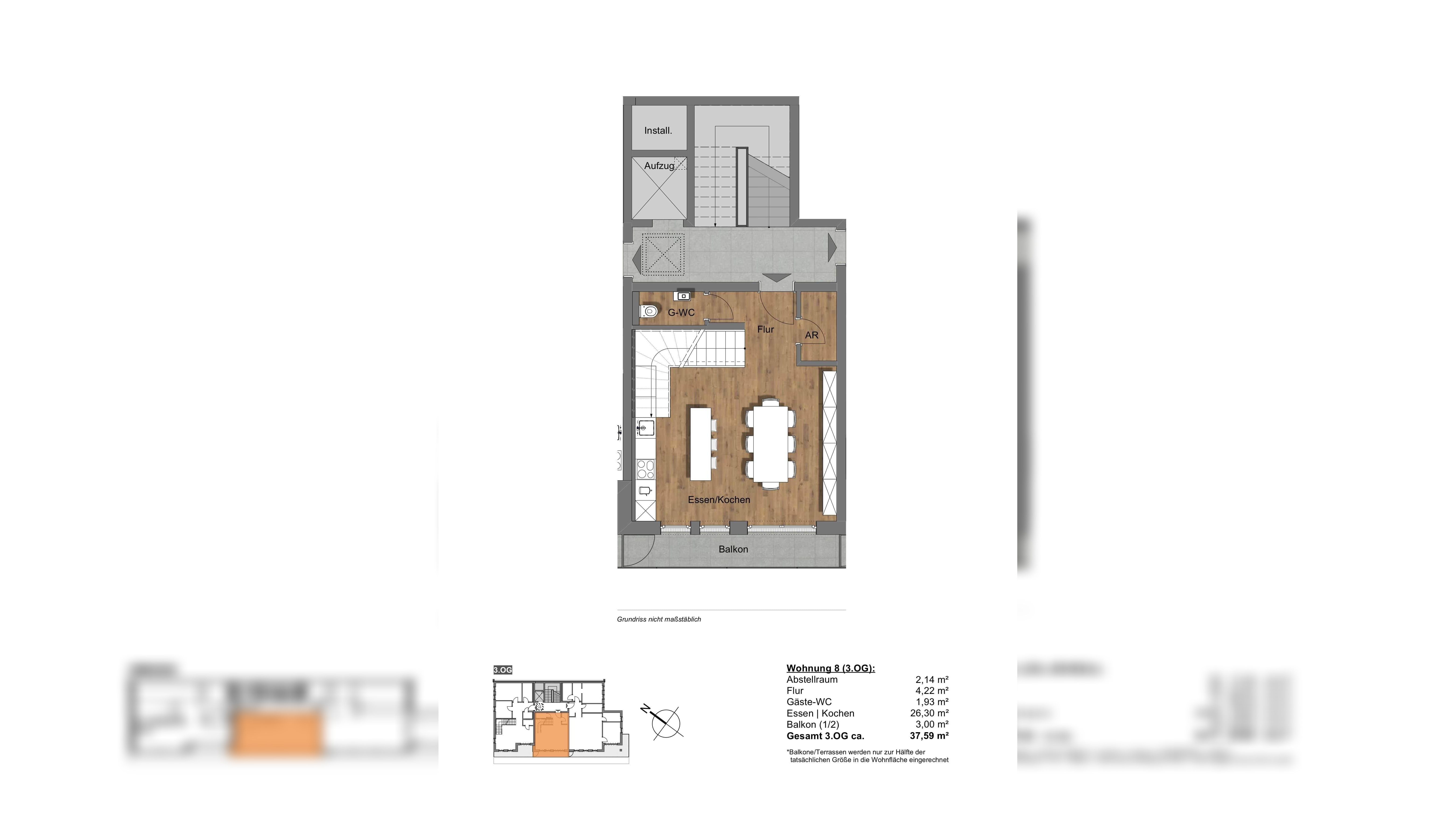
Sie sind auf der Suche nach einer Neubauimmobilie mit allen Vorzügen einer professionellen und innovativen Bauart? Kapitalanlage oder Eigennutzung? Hier ist alles möglich!In Homburg entsteht ein ganz besonderes Wohnhaus, der Louisenhof, welches moderne Maßstäbe im Bereich Bauqualität, Energieeffizienz, Ausstattung und Innovation in der Haustechnik erfüllt. Dieses Projekt erfüllt für Sie den Anspruch zeitlose Architektur mit hochwertigem Interieur und höchster Ausbauqualität zu verbinden. Einfach Perfekt wohnen!Erleben Sie modernes Wohnen in unserer neu zu errichtenden Penthouse-Maisonette-Wohnung mit einer Wohnfläche von 122,80 m², gebaut nach dem hohen Standard des Gebäudeenergiegesetzes 2023. Der voraussichtliche Fertigstellungstermin ist für das Jahr 2026 im März geplant, was Ihnen die Möglichkeit eines Erstbezugs bietet. Die Wohnung ist im Massivbau mit Wärmedämmsteinen errichtet und somit von hoher Qualität.Diese 4-Zimmer-Penthouse-Maisonette Wohnung bietet Ihnen einen modernen, gut durchdachten Küche- und Essbereich zum absoluten Wohlfühlen. Zusätzlich verfügt die Wohnung über einen praktischen Abstellraum, in dem Sie Ihre Besitztümer verstauen können. Für Ihre Gäste steht Ihnen ein komfortables Gäste WC zu Verfügung. Ebenfalls haben Sie Zugang zu einem schönen Balkon. Durch eine stilvolle Treppe gelangen Sie zu einem weiteren Stockwerk, das ein tolles Wohnzimmer bietet. Zusätzliches Highlight sind die beiden Terrassen mit Süd-West und Nord-Ost-Ausrichtung. Weiterhin verfügt die Wohnung über ein elegantes Badezimmer mit Dusche, das Ihnen einen komfortablen Rückzugsort bietet. Weiterhin ein großzügiges und geräumiges Schlafzimmer mit praktischer Ankleide. Ein schönes Kinderzimmer oder ein praktisches Arbeitszimmer sind ebenfalls möglich. Lichtdurchflutete Räume durch bodentiefe Fensterelemente, hochwertige Bodenbeläge - Feinsteinzeugbodenfliesen im Badezimmer und Abstellraum, alle anderen Räume Designboden in Holzoptik, exklusive Badausstattung und Armaturen gehören zur Ausstattung Ihres neuen Lebensmittelpunktes.Die Wohnung ist mit einer Fußbodenheizung (Wärmepumpe) ausgestattet, die Ihnen ein angenehmes Raumklima bietet. Zusätzlich ist ein Personenaufzug vorhanden, der Ihnen den Komfort eines bequemen Zugangs zu Ihrer Wohnung ermöglicht.Selbstverständlich gibt es auch Stellplätze als Doppelparker (15.000.-€ pro Stellplatz) oder Außenstellplätze (22.500.-€ pro Außenstellplatz) zum freien Erwerb. Diese sind im Kaufpreis nicht integriert. Sie genießen unmittelbaren Zugang von der Parkebene zum Aufzug und zu den Wohnungen.Insgesamt bietet diese Etagenwohnung modernen Komfort und einen hohen Wohnstandard. Überzeugen Sie sich selbst von der Qualität und der Funktionalität dieser Immobilie und vereinbaren Sie noch heute einen Besichtigungstermin mit Ihrem Immobilienspezialisten im Saarland - Bank1Saar Immobilien GmbH
So funktioniert es
- Alle neuen Anzeigen matchen wir kostenlos mit Deinen Suchparametern.
- Passende Angebote senden wir Dir in einer E-Mail pro Tag.
- Du kannst auch verschiedene Suchen anlegen und Dich jederzeit abmelden. Mehr dazu
Wir haben soeben eine E-Mail mit Deinem Suchauftrag an Dich geschickt. – Klicke in dieser Mail auf den Bestätigungslink und schon geht's los. Prüfe ggf. auch Deinen Spamordner.
Es gab ein Problem beim Absenden Deiner E-Mail-Adresse. Bitte versuche es erneut.
WARNUNG: Bitte bestätige Deine E-Mail-Adresse, um regelmäßige Updates zu erhalten.