Objektdaten
Objektbeschreibung
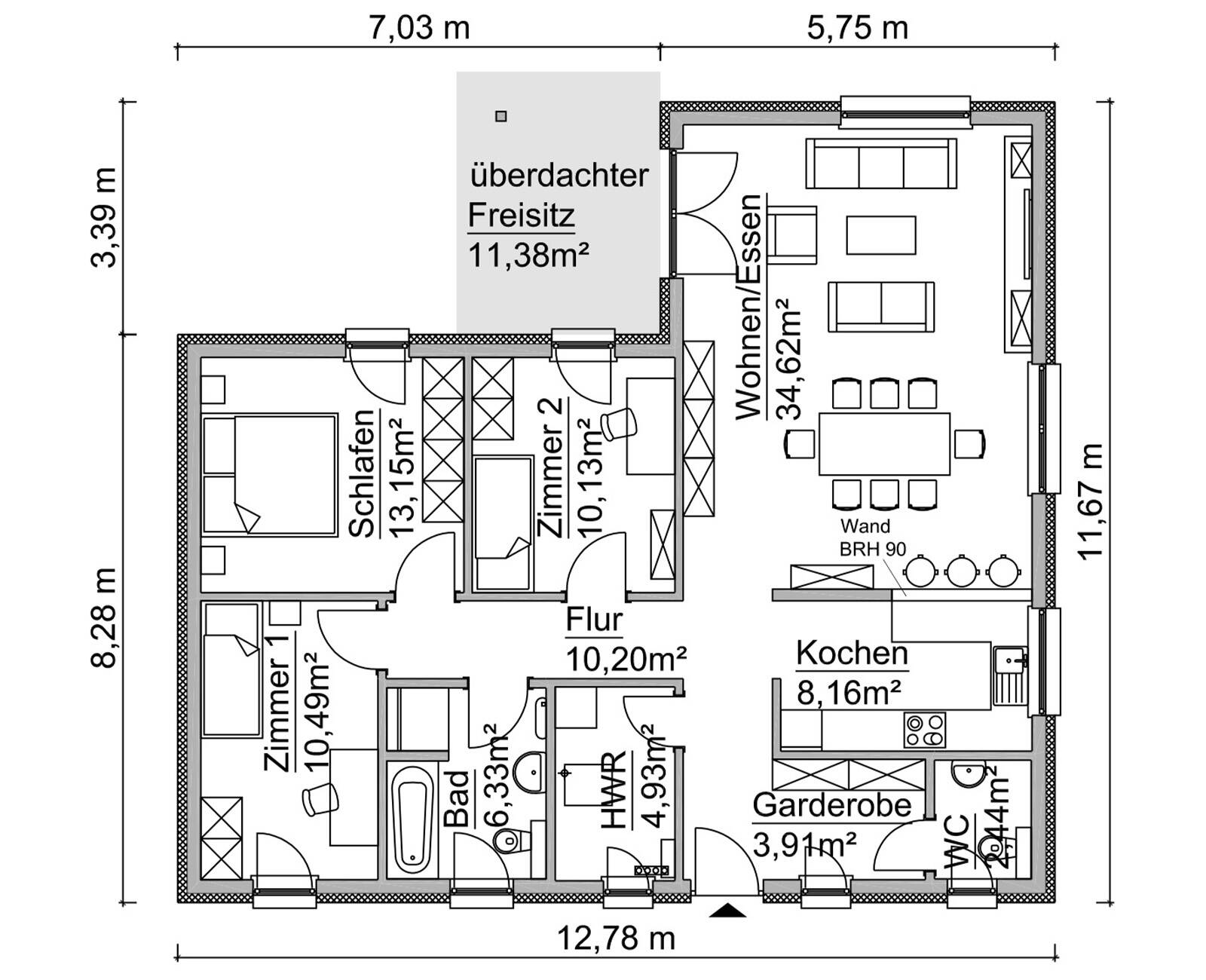
Die Variante B des SH 115 WB XXL bietet im Vergleich zur Variante A eine überdachte Freifläche, die zusätzlichen Komfort bietet. Während die Anordnung der fünf Zimmer in beiden Varianten grundlegend unterschiedlich ist, lohnt es sich, beide Grundrisse genau zu vergleichen. Gemeinsam haben sie den geschützten Hauseingang und das beliebte Gäste-WC – alles auf großzügigen 127 m² Wohnfläche.Ähnliche Angebote
So funktioniert es
- Alle neuen Anzeigen matchen wir kostenlos mit Deinen Suchparametern.
- Passende Angebote senden wir Dir in einer E-Mail pro Tag.
- Du kannst auch verschiedene Suchen anlegen und Dich jederzeit abmelden. Mehr dazu



