Objektdaten
Objektbeschreibung
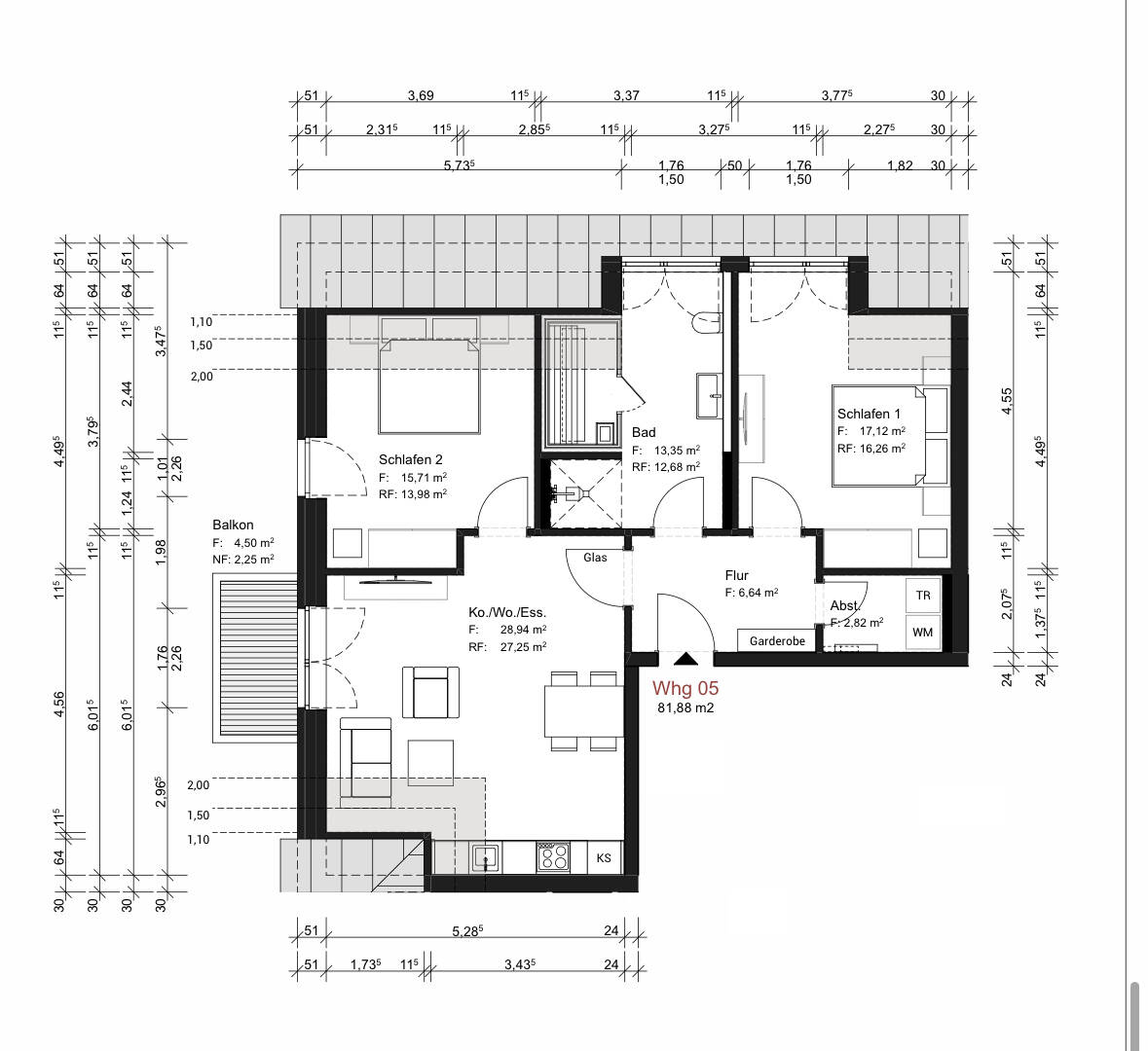
Unser Projekt "WindStärke 7 GRÖMITZ" befindet sich nur ca. 500m entfernt von der beliebten Grömitzer Promenade, dem acht Kilometer langen weißen Sandstrand und dem sanften Meeresrauschen der Ostsee.Die 7 Ferienwohnungen begeistern mit einer erstklassigen Lage in ruhiger und gewachsener Umgebung. Alles, was das Leben noch schöner macht, wie Restaurants, Cafés und Geschäfte, ist nur ein paar Schritte entfernt. Schon beim ersten Blick fallt die nordische Architektur und die hochwertige Ausstattung der Ferienwohnungen auf. Dieses Angebot ist rundum besonders und einzigartig an der Ostseeküste.Fordern Sie noch heute ihre persönlichen Verkaufsunterlagen an!Ähnliche Angebote
So funktioniert es
- Alle neuen Anzeigen matchen wir kostenlos mit Deinen Suchparametern.
- Passende Angebote senden wir Dir in einer E-Mail pro Tag.
- Du kannst auch verschiedene Suchen anlegen und Dich jederzeit abmelden. Mehr dazu



