Objektdaten
Objektbeschreibung
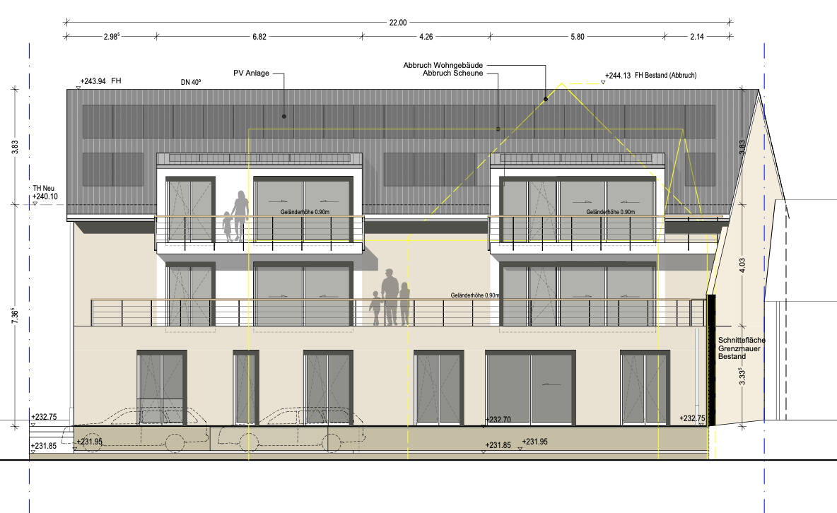
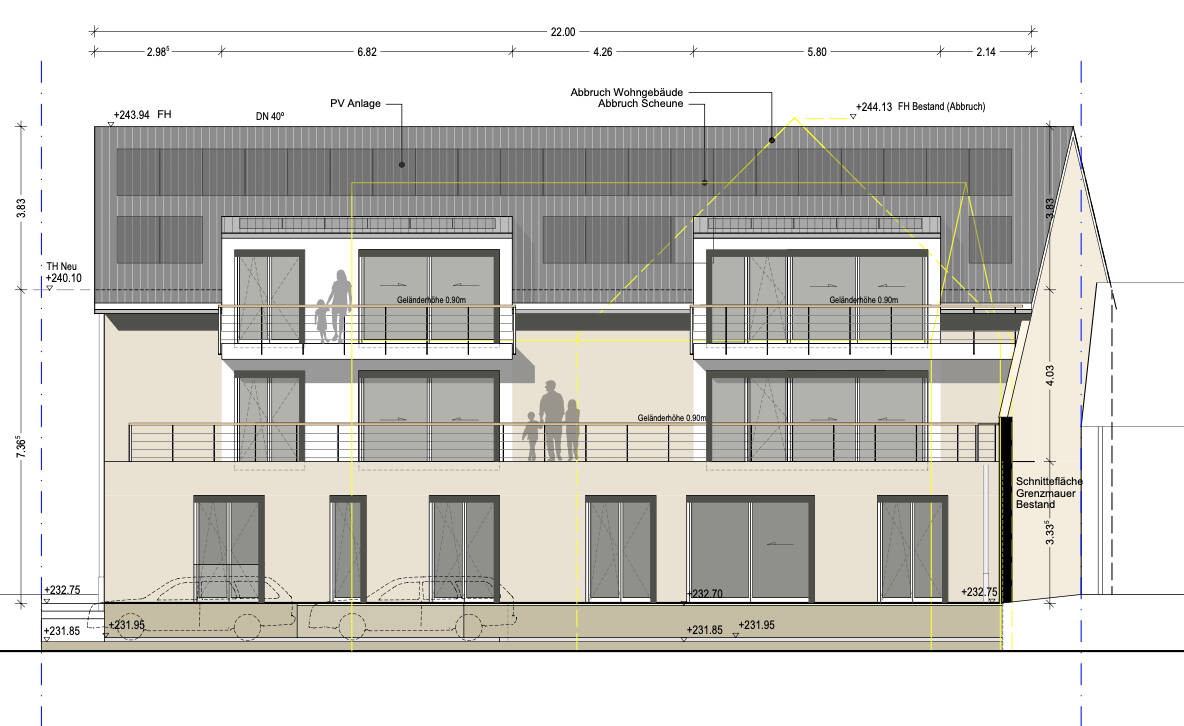
Hier entsteht Ihre Traumimmobilie von Beyer Wohnbau für Sie entwickelt.Fragen Sie gerne das Exposé exklusiv bei uns an, um sich für die 2026 entstehenden Wohnungen voranzumelden.Das Mehrfamilienhaus wird aus 4-5 Wohneinheiten bestehen.Im EG wird es eine barrierefreie Wohnung, im OG zwei Wohnungen mit großzügigen Terrassen und im DG eine großflächige Wohnung geben.So funktioniert es
- Alle neuen Anzeigen matchen wir kostenlos mit Deinen Suchparametern.
- Passende Angebote senden wir Dir in einer E-Mail pro Tag.
- Du kannst auch verschiedene Suchen anlegen und Dich jederzeit abmelden. Mehr dazu




