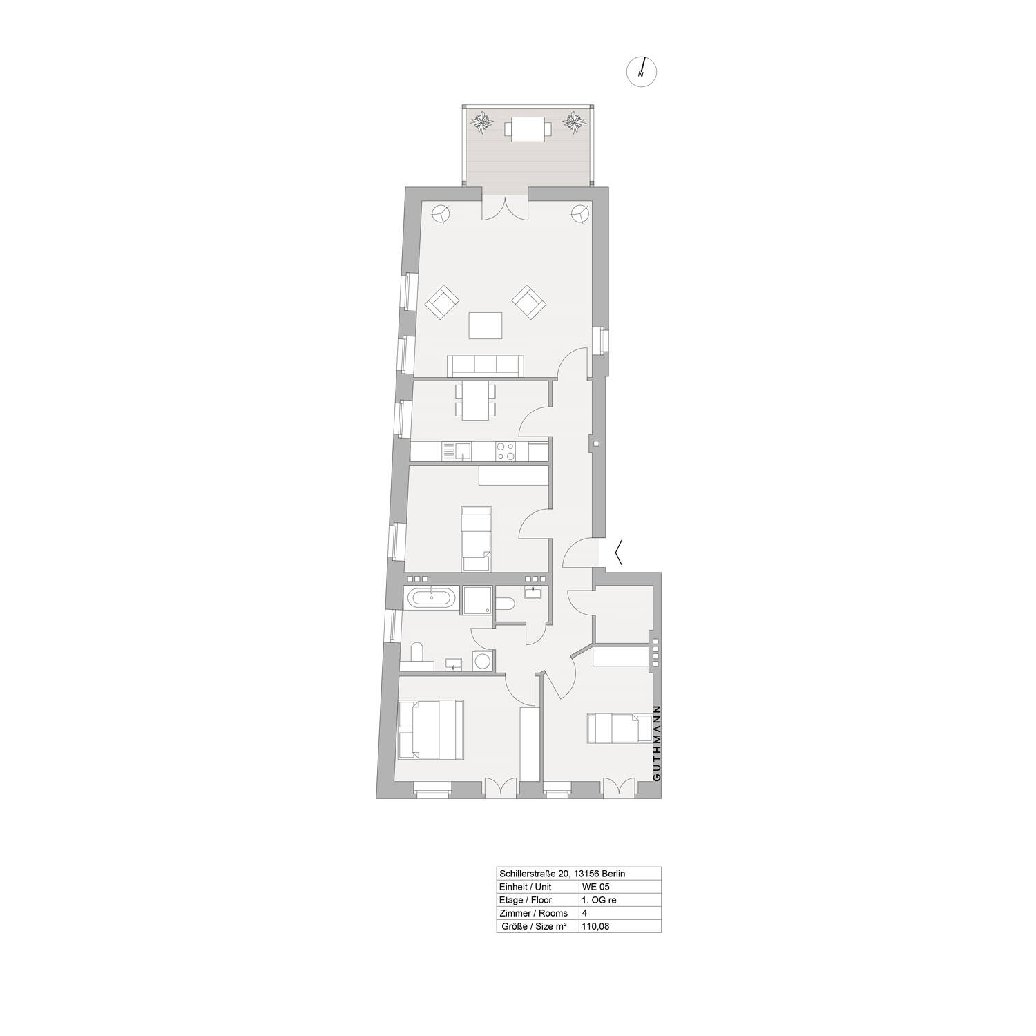
Objektdaten
Objektbeschreibung
Zukunftssicher und solide präsentiert sich dieses Immobilien-Investment in Berlin-Pankow im Ortsteil Niederschönhausen. Das nach KfW70 Standards im Jahr 2008 modernisierte Mehfamilienhaus befindet sich in tadellosem Zustand. Die Gegend zeichnet sich durch eine lockere Bebauung und ein gepflegtes Umfeld aus. Gleichzeitig ist die Anbindung sehr gut. Bewohner erreichen mit der Tramlinie vor der Tür bequem und ohne Umsteigen den Rosenthaler Platz und die Friedrichstraße.Insgesamt bietet dieses Objekt lagebedingt, energetisch, technisch und infrastrukturell höchste Investitionssicherheit. Das Mehrfamilienhaus mit neun Parteien wurde im Zuge der Aufteilung im Jahr 2008 umfangreich modernisiert und nach Aufteilung vermietet. Die Wohnungen wurden mit teilweise sehr großen, sonnigen Balkonen ausgestattet, die Dachgeschosse haben Dachterrassen. Alle Einheiten verfügen über moderne Bäder, zwei Wohnungen zusätzlich über Gäste-WCs. Das Mehrfamilienhaus entspricht KfW70 Standards und wird durch eine moderne Heizungsanlage mit Solarthermieanlage versorgt. Diese ökologische und zukunftssichere Konfiguration ist eine Seltenheit in dieser Baujahresklasse. Die künftige WEG besteht aus drei Erdgeschosswohnungen und je zwei Einheiten vom ersten bis dritten Obergeschoss. In Kombination mit doppelverglasten Holzfenstern liegt die Energieeffizienz bei hervorragenden 53 Kwh. Der Seitenflügel ist ein Anbau und hat Fenster nach Westen. Die Treppenhäuser befinden sich in gutem Zustand, mit ansprechenden Altbauelementen, ebenso die Türen und Fenster im Gemeinschaftseigentum.Insgesamt handelt es sich um eine hervorragende, zukunftssichere Investitionsgelegenheit. Kontaktieren Sie uns noch heute für weitere Informationen zu diesem ansprechenden Investment.Ähnliche Angebote
So funktioniert es
- Alle neuen Anzeigen matchen wir kostenlos mit Deinen Suchparametern.
- Passende Angebote senden wir Dir in einer E-Mail pro Tag.
- Du kannst auch verschiedene Suchen anlegen und Dich jederzeit abmelden. Mehr dazu




