Kaufpreis 564.200 €
Zimmer 3
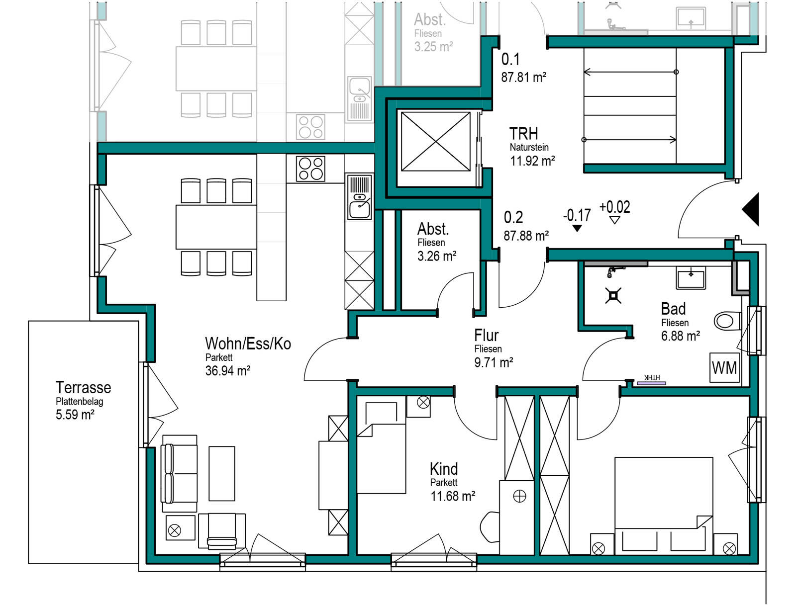
Größe 87 m²
90482 Nürnberg
Objektdaten
Veröffentlicht am: 27. März 2025
Energieausweis: Liegt bei der Besichtigung vor
Danke! Bitte bestätige Deine E-Mail-Adresse – wir haben Dir soeben eine Mail geschickt.
Es gab ein Problem beim Absenden. Bitte versuche es erneut.
Bitte bestätige Deine E-Mail-Adresse, um Updates zu erhalten.
Objektbeschreibung
Schöner WohnenEine geradlinige, zeitgemäße und klar strukturierte Optik macht dieses Wohnhaus zu einer Wohltat fürs Auge. Das Flachdach für voll ausgenutzt Raumhöhe ist das Sahnehäubchen obendrauf und gibt dem Gebäude bei aller Modernität einen richtig urbanen Charakter. Ihr Auto parkt komfortabel am eigenen Stellplatz oder in der Garage. Heimkommen, aufatmen und sich sofort wohlfühlen: Alles genau so, wie es sein soll.Grünes IdyllEin pflegeleichter Garten bei den Wohnungen im Erdgeschoss zum Spielen, Grillen und Genießen macht das Sommerglück perfekt. Und wenn das noch nicht reicht: Das Landschaftsschutzgebiet Pegnitztal befindet sich in unmittelbarer Nähe. Perfekte Verkehrsanbindung an die Autobahn A3. S-Bahn Anschluss 700 m entfernt. Kurze Wege für den täglichen Bedarf. Schulen, Sportvereine, Ärzte im nahen Umfeld.Innere WerteManche Details, die den Klausener Winkel 10 zu einem besonderen Bauprojekt machen, erkennt man erst auf den zweiten Blick. Zum Beispiel die hochwertige Innenausstattung - von lichtdurchfluteten Fensterelementen bis zu geschmackvollen Sanitärobjekten. Änderungswünsche sind vor Baubeginn jederzeit möglich. Energie & UmweltWarum unnötig Geld fürs Heizen ausgeben? Im Klausener Winkel 10 werden Sie ganz automatisch zum Energiesparfuchs - der moderne Neubau-Standard hilft Ihnen dabei. Profitieren Sie von der durchdachten Heiztechnik und einzelraumgesteuerter Fußbodenheizung. Genießen Sie es! Leben Sie auf!Änderungswünsche sind im Grundriss noch möglich!
So funktioniert es
- Alle neuen Anzeigen matchen wir kostenlos mit Deinen Suchparametern.
- Passende Angebote senden wir Dir in einer E-Mail pro Tag.
- Du kannst auch verschiedene Suchen anlegen und Dich jederzeit abmelden. Mehr dazu
Wir haben soeben eine E-Mail mit Deinem Suchauftrag an Dich geschickt. – Klicke in dieser Mail auf den Bestätigungslink und schon geht's los. Prüfe ggf. auch Deinen Spamordner.
Es gab ein Problem beim Absenden Deiner E-Mail-Adresse. Bitte versuche es erneut.
WARNUNG: Bitte bestätige Deine E-Mail-Adresse, um regelmäßige Updates zu erhalten.