Objektdaten
Objektbeschreibung
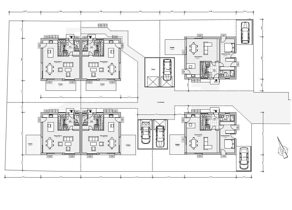
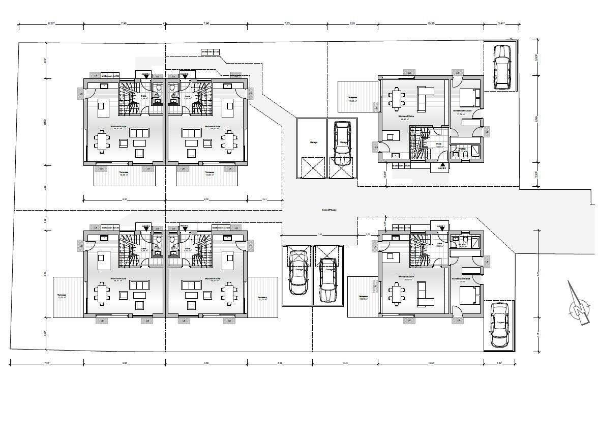
Neubau von vier Doppelhaushälften und zwei Einfamilienhäusern inkl. Garage od. Carport, in schöner, ruhiger Wohnlage im beliebten Münchner MärchenviertelAngaben oben für DHH- Haus- Nr. 3125 qm Wohnfläche + 42 qm NutzflächeGrund: gesamt ca. 1734 qmAußenmaße: DHHs: 8 m x 8 m / KG + EG + OG EFHs: 10 m x 8 m / KG + EG + OG Baugenehmigung: liegt vorBaubeginn in Kürze. Fertigstellung Mitte 2027. Ab dem Baubeginn beträgt die Bauzeit bis zur Bezugsfertigkeit ca. 14 Monate.Planung: Die Gestaltung der Grundrisse ist noch beinflussbar und kann nach Ihren Wünsche geändert und umgeplant werden. Der Architekt berät Sie dazu gerne bei einem persönlichen Besprechungstermin im Büro.Ähnliche Angebote
So funktioniert es
- Alle neuen Anzeigen matchen wir kostenlos mit Deinen Suchparametern.
- Passende Angebote senden wir Dir in einer E-Mail pro Tag.
- Du kannst auch verschiedene Suchen anlegen und Dich jederzeit abmelden. Mehr dazu




