20 years guaranteed rental payments (Indexed) | No management effort – High tax benefits

Kaufpreis 190.000 €
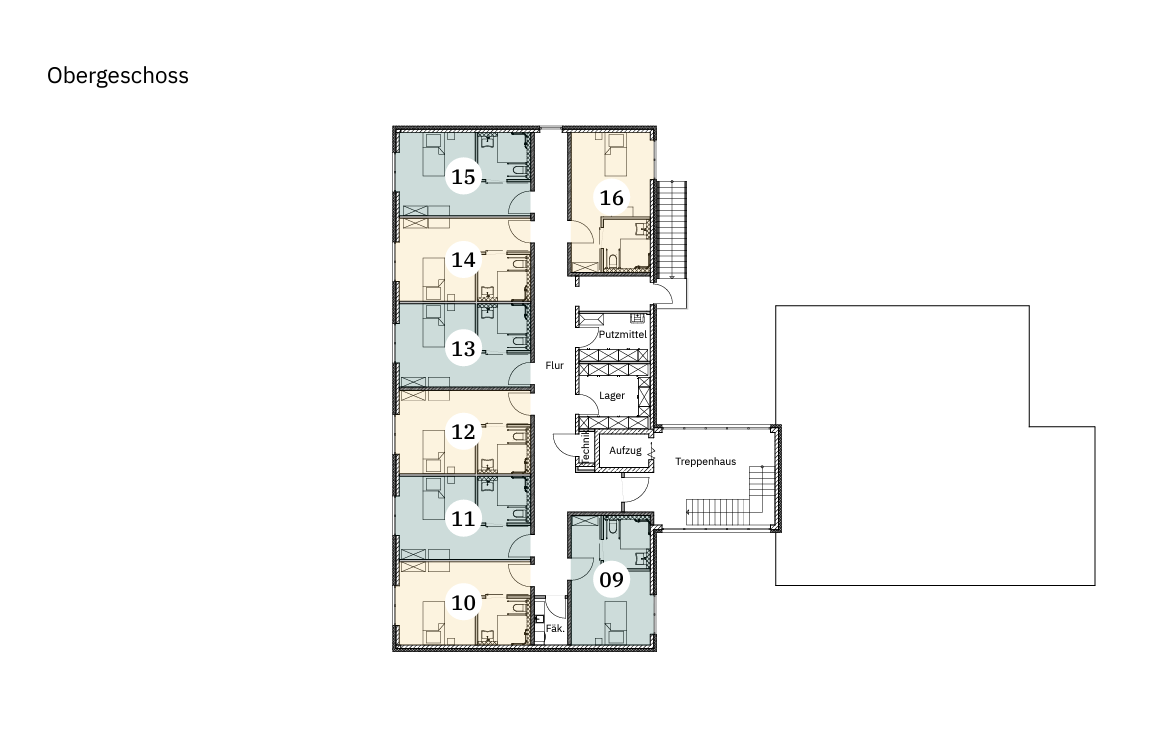
Zimmer 1
Größe 50 m²
85540 Haar

Objektdaten

Veröffentlicht am: 28. März 2025
Energieausweis: Liegt bei der Besichtigung vor
Neu

Über ähnliche Angebote direkt informiert werden

  • Objektbeschreibung

    Ähnliche Angebote

    So funktioniert es

    • Alle neuen Anzeigen matchen wir kostenlos mit Deinen Suchparametern.
    • Passende Angebote senden wir Dir in einer E-Mail pro Tag.
    • Du kannst auch verschiedene Suchen anlegen und Dich jederzeit abmelden. Mehr dazu
    Nach oben scrollen