Objektdaten
Objektbeschreibung
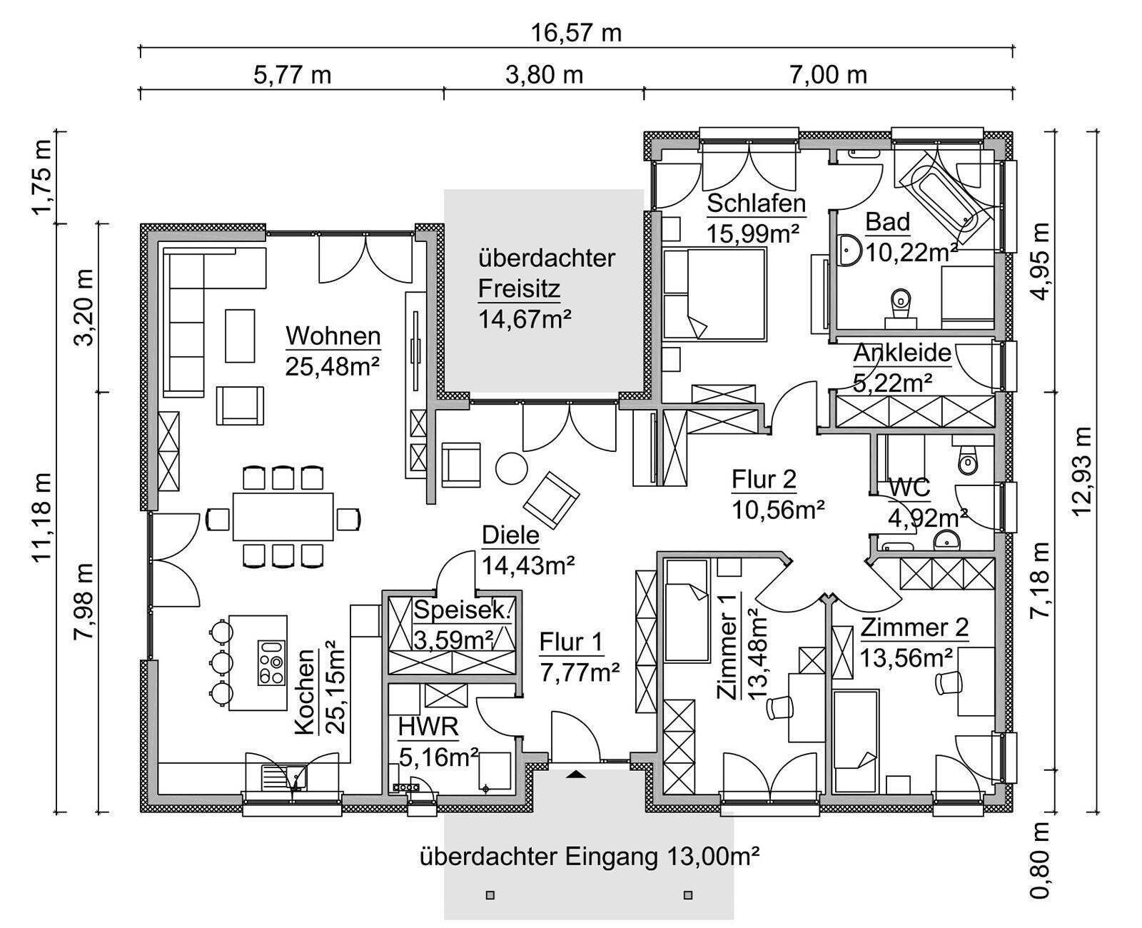
Dieser Bungalow besticht durch modernstes Design und großzügige Räume. Es ist auf einer Ebenen geplant. Eines der Highlights dürfte der separierte Elternbereich sein mit Schlafzimmer, Ankleide und eigenem Badezimmer. Dies bietet einen geeigneten und geräumigen Rückzugsort.Dieses Haus ist im Innenausbau schon Fast-Fertig. So bleibt Ihnen mehr Zeit für Ihre Lieben.Bei ScanHaus Marlow haben bereits viele Haustypen mehrere Grundrissvarianten. Sollte Ihnen keine Variante zusprechen, ist es selbstverständlich möglich den Grundriss nach Ihren individuellen Wünschen und Bedürfnissen in Abstimmung mit unseren Architekten anzupassen.Herr Steffen Kowalski - VerkaufsberaterTel.: 01709812565Email: [email protected]So funktioniert es
- Alle neuen Anzeigen matchen wir kostenlos mit Deinen Suchparametern.
- Passende Angebote senden wir Dir in einer E-Mail pro Tag.
- Du kannst auch verschiedene Suchen anlegen und Dich jederzeit abmelden. Mehr dazu




