Objektdaten
Objektbeschreibung
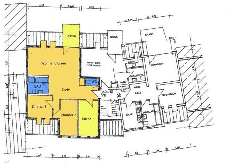
Großzügige 3 ,5 Zimmer Wohnung in Dillweisenstein mit Dachboden. Die helle Wohnung mit Blick ins Grüne und schönen Balkon liegt zentral im Ort.Ähnliche Angebote
So funktioniert es
- Alle neuen Anzeigen matchen wir kostenlos mit Deinen Suchparametern.
- Passende Angebote senden wir Dir in einer E-Mail pro Tag.
- Du kannst auch verschiedene Suchen anlegen und Dich jederzeit abmelden. Mehr dazu





