Objektdaten
Objektbeschreibung
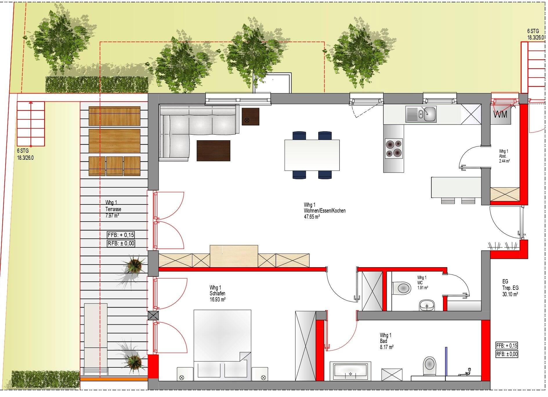
Am Südhang von Hofstetten, entstehen 9 neue und hell gestaltete Eigentumswohnungen.Der Grundriss Ihrer 2 Zimmer-Maisonette-Wohnung mit 82,84 ist offen, modern und großzügig gestaltet. Von der großen Terrasse und den Balkonen genießen Sie einen herrlichen Ausblick ins Tal. Mit dem Personenaufzug gelangen Sie von der Tiefgarage bequem in Ihre Wohnung. Wohnen für jung- und alt ist hier in herrlicher Wohnlage gewährleistet. Jede Wohnung verfügt über ein Gäste WC. Die Fußbodenheizung wird mit Wärme über neuste Wärmepumpentechnik (Luft-Wasser-Wärmepumpe) versorgt und verleiht Ihrer Wohnung eine energiesparende und angenehme Wärme. Die Wohnung wird mit einem sehr hochwertigen Vinylboden ausgestattet. Zu jeder Wohneinheit, wird ein Tiefgaragenstellplatz, ein Außenstellplatz und zwei Fahrradstellplätze veräußert. Die Stellplätze und Tiefgaragenstellplätze sind mit einer Ladeinfrastruktur für Elektrofahrzeuge ausgestattet. Ein Kellerraum ist bei jeder Wohneinheit inklusive.Die Immobilie eignet sich ebenfalls hervorragend zur Kapitalanlage.So funktioniert es
- Alle neuen Anzeigen matchen wir kostenlos mit Deinen Suchparametern.
- Passende Angebote senden wir Dir in einer E-Mail pro Tag.
- Du kannst auch verschiedene Suchen anlegen und Dich jederzeit abmelden. Mehr dazu




