Objektdaten
Objektbeschreibung
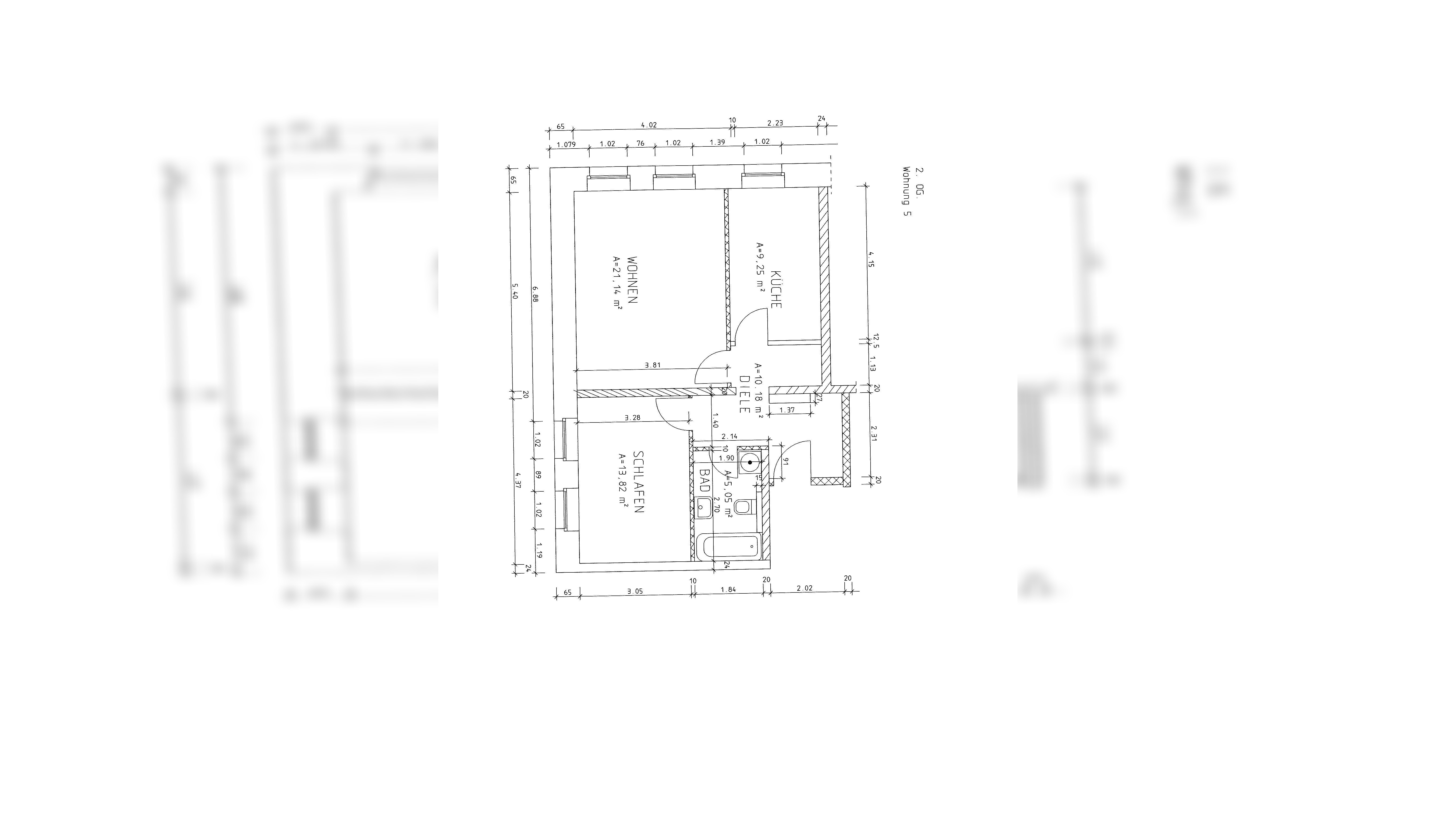
Objektbeschreibung Die Wohnung befindet sich im 2. OG eines Mehrfamilien-/Geschäftshauses direkt am Marktplatz in der Innenstadt von Aschersleben.Das Haus wurde 1900 gebaut und erstmals bezogen. Im Jahr 1994 wurde es modernisiert, bzw. kernsaniert. Raumaufteilung Die Wohnung verfügt über je ein Wohn- und Schlafzimmer, sowie Küche, Bad und Flur. Ein Kellerraum gehört ebenfalls zur Wohnung.So funktioniert es
- Alle neuen Anzeigen matchen wir kostenlos mit Deinen Suchparametern.
- Passende Angebote senden wir Dir in einer E-Mail pro Tag.
- Du kannst auch verschiedene Suchen anlegen und Dich jederzeit abmelden. Mehr dazu





