Kaufpreis 285.000 €
Zimmer 2
Größe 61 m²
30989 Gehrden
Objektdaten
Veröffentlicht am: 31. März 2025
Baujahr: 2026
Energieausweis: Liegt bei der Besichtigung vor
Danke! Bitte bestätige Deine E-Mail-Adresse – wir haben Dir soeben eine Mail geschickt.
Es gab ein Problem beim Absenden. Bitte versuche es erneut.
Bitte bestätige Deine E-Mail-Adresse, um Updates zu erhalten.
Objektbeschreibung
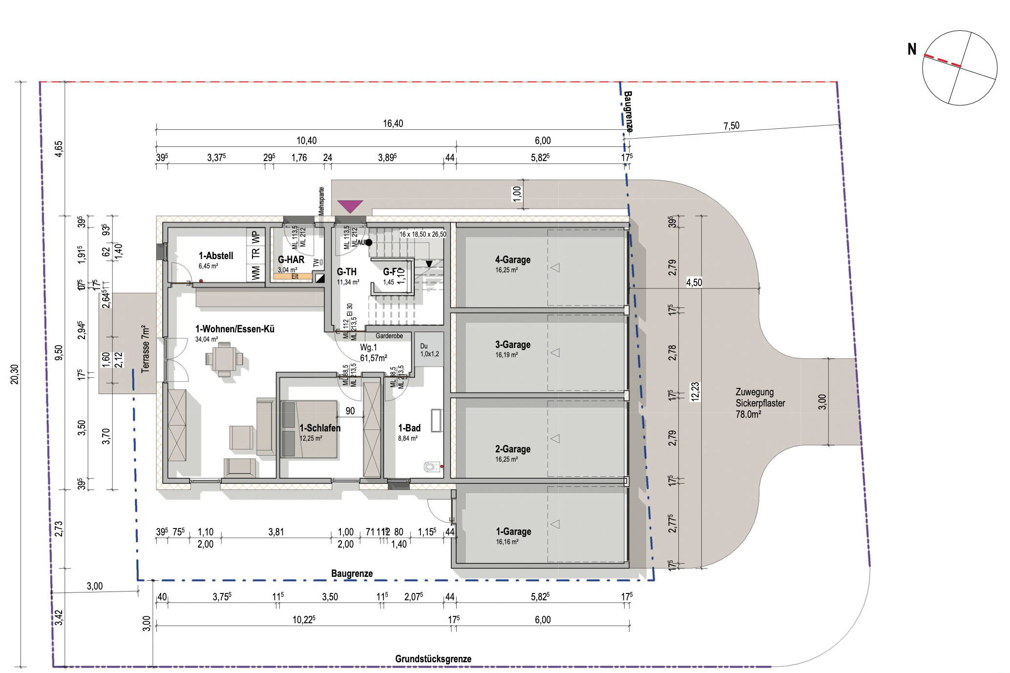
Die hier beschriebene Wohnung befindet sich in einem Mehrfamilienhaus in Gehrden, dessen Bau im ersten Quartal 2026 beginnt.Es handelt sich um eine 2-Zimmer-Wohnung im Erdgeschoss mit eigenem Garten und Garage.Das Mehrfamilienhaus ist in einer Seitenstraße. Diese liegt sich inmitten einer ruhigen Wohnsiedlung, Sie finden alle Einrichtungen des täglichen Bedarfs in nächster Nähe.Die Siedlung besteht überwiegend aus kleinen Mehrfamilienhäusern, Einfamilienhäusern und Geschäften.Die Wohnung eignet sich sowohl als Kapitalanlage als auch für die Eigennutzung und ist ideal für bis zu zwei Personen.Die WohnungDer EingangsbereichÜber die Eingangstür gelangt man in den Flur, welcher zentral gelegen ist und Zugang zu allen Räumen bietet.Der Eingangsbereich ist geräumig und hat eine integrierte Nische für eine Garderobe und/ oder einen Schuhschrank, sodass der zentrale Hausflur immer aufgeräumt ist.Zur linken Seite befinden sich ein Zimmer sowie das Wohnzimmer. Auf der rechten Seite finden Sie ein weiters Schlafzimmer, ein Gästezimmer, einen Abstellraum, einen Hauswirtschaftsraum und, ein Gäste-WC und das Badezimmer.Der Wohn- und EssbereichDas Wohnzimmer befindet sich auf der linken Seite der Wohnung. Es hat einen großzügigen Schnitt und bietet Platz für einen Ess- und einen Wohnbereich. Zudem hat man von hier Zugang zu dem einladenden Balkon, welcher um die Hausecke verläuft und so zu beinahe jeder Tageszeit den Wunsch nach Sonne oder Schatten erfüllen kann.Das SchlafzimmerDas Schlafzimmer eignet sich ideal als Schlaf-, Arbeits-, oder Kinderzimmer. Es ist sowohl von innen als auch von außen betrachtet ruhig gelegen.Das BadezimmerDas Badezimmer ist hell gefliest und einladend groß. Es hat nicht nur eine barrierearme Dusche, sondern auch ein WC und Platz für einen großen Waschtisch.Der Hauswirtschafts- und AbstellraumIm Hauswirtschaftsraum ist die Technik untergebracht. Hier haben Sie zudem noch ausreichend Platz für Ihre Waschmaschine und Ihren Trockner.HaustechnikDie Wohnung wird durch eine moderne Wärmepumpe beheizt, dessen Wärme über die Fußbodenheizung verteilt wird.Es wird eine hocheffiziente Abluftwärmepumpe mit kombinierter Lüftungsanlage verbaut, welche nur Ihre Wohnung versorgt. So sind sie in Ihrer Wohnung unabhängig.Neben der Wärmepumpe und der Lüftungsanlage ist die Wohnung mit weiterer hochwertiger Komforttechnik wie elektrischen Rollläden und LAN ausgestattet.Die Stromversorgung wird durch über eine moderne Photovoltaikanlage sichergestellt.Die Garage ist elektrisch bereits für eine Lademöglichkeit vorbereitet, sodass Sie die Wallbox Ihrer Wahl lediglich anschließen lassen müssen.ZustandDas Haus ist derzeit in der Planung mit einem terminierten Fertigstellungstermin im Sommer 2026.Bei der Planung wurde darauf geachtet, ein hocheffizientes, lichtdurchflutetes Gebäude zu errichten.Die Wohnung wird schlüsselfertig übergeben. Das bedeutet, dass Bodenbeläge, Wände und die Sanitärobjekte sowie Armaturen bereits installiert und in Betrieb genommen sein werden.Aktuell kann auf die Details in der Ausführung noch Einfluss genommen werden, sodass Sie Ihr Zuhause Ihren individuellen Wünschen anpassen können.
So funktioniert es
- Alle neuen Anzeigen matchen wir kostenlos mit Deinen Suchparametern.
- Passende Angebote senden wir Dir in einer E-Mail pro Tag.
- Du kannst auch verschiedene Suchen anlegen und Dich jederzeit abmelden. Mehr dazu
Wir haben soeben eine E-Mail mit Deinem Suchauftrag an Dich geschickt. – Klicke in dieser Mail auf den Bestätigungslink und schon geht's los. Prüfe ggf. auch Deinen Spamordner.
Es gab ein Problem beim Absenden Deiner E-Mail-Adresse. Bitte versuche es erneut.
WARNUNG: Bitte bestätige Deine E-Mail-Adresse, um regelmäßige Updates zu erhalten.