Kaufpreis 320.655 €
Zimmer 2
Größe 82 m²
54666 Irrel
Objektdaten
Veröffentlicht am: 31. März 2025
Frei ab: 1. August 2024
Energieausweis: Liegt bei der Besichtigung vor
Danke! Bitte bestätige Deine E-Mail-Adresse – wir haben Dir soeben eine Mail geschickt.
Es gab ein Problem beim Absenden. Bitte versuche es erneut.
Bitte bestätige Deine E-Mail-Adresse, um Updates zu erhalten.
Objektbeschreibung
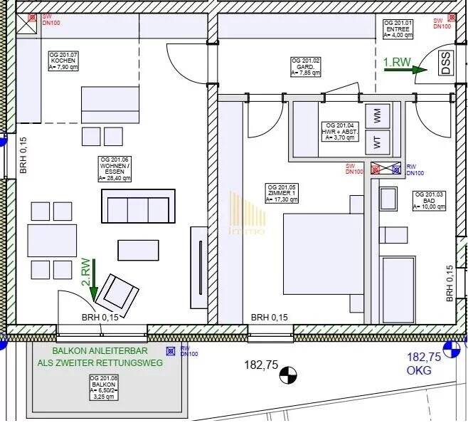
Bei diesem Neubauprojekt handelt es sich um den schlüsselfertigen Neubau von einem Mehrfamilienhaus mit insgesamt 10 Wohnungen in einer ruhigen Lage in Irrel.Auf einem ca. 930 qm großen Grundstück entstehen 10 barrierefreie Eigentumswohnungen mit einer Wohnfläche von 65 - 120 qm und insgesamt 14 KFZ-Stellplätze.Die folgende Wohnung (W6) befindet sich im 1. Obergeschoss und verfügt über eine Wohnfläche von 82,22 qm, die wie folgt aufgeteilt ist:Der Eingangsbereich (4,02 qm) bietet Zugang zum Garderobenbereich (7,88 qm) und zum Badezimmer (10,00 qm).Von dem Garderobenbereich gelangen Sie zu Ihrer linken Seite zum Technik- und Abstellraum mit Anschluss für Waschmaschine und Trockner (3.42 qm), sowie ins Schlafzimmer (17,29 qm). Sie gelangen ebenfalls über den Garderobenbereich ins Wohn - und Esszimmer (28,39 qm), ausgestattet mit moderner Einbauküche (7,93 qm).Vom Wohn- und Esszimmer gelangen Sie auf den Balkon (6,50 qm).Die Wohnung verfügt über einen eigenen Kellerraum (3,85 qm).Ein Außenstellplatz kann für 10.000€ erworben werden.Die Fertigstellung des Objekts ist für 2025 geplant.Für weitere Informationen bitten wir Sie uns über das Kontaktformular zu kontaktieren.
So funktioniert es
- Alle neuen Anzeigen matchen wir kostenlos mit Deinen Suchparametern.
- Passende Angebote senden wir Dir in einer E-Mail pro Tag.
- Du kannst auch verschiedene Suchen anlegen und Dich jederzeit abmelden. Mehr dazu
Wir haben soeben eine E-Mail mit Deinem Suchauftrag an Dich geschickt. – Klicke in dieser Mail auf den Bestätigungslink und schon geht's los. Prüfe ggf. auch Deinen Spamordner.
Es gab ein Problem beim Absenden Deiner E-Mail-Adresse. Bitte versuche es erneut.
WARNUNG: Bitte bestätige Deine E-Mail-Adresse, um regelmäßige Updates zu erhalten.