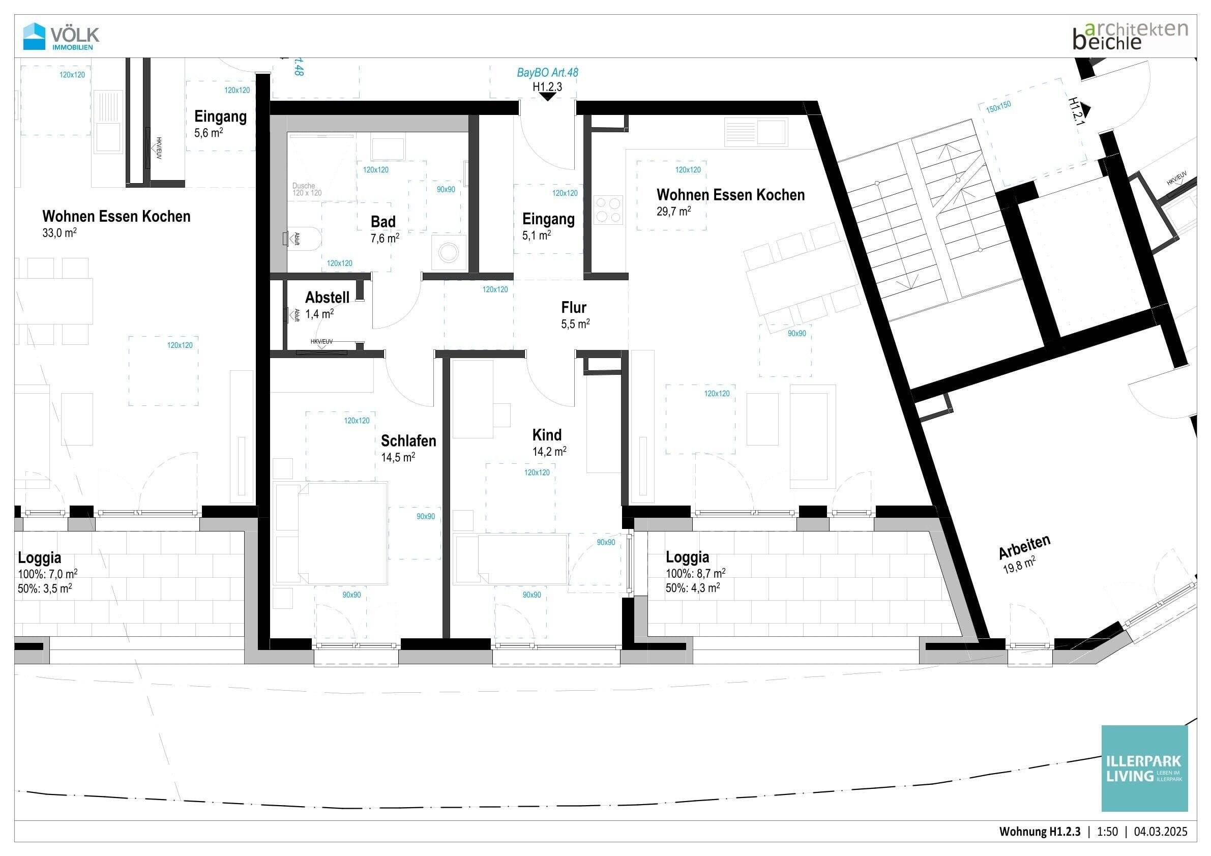
Komfortable 3-Zimmer Neubauwohnung mit Loggia – Neubau – 1.2.3

Kaufpreis 481.455 €
Zimmer 3
Größe 82 m²
89231 Neu-Ulm

Objektdaten

Veröffentlicht am: 3. April 2025
Energieausweis: Liegt bei der Besichtigung vor
Neu

Über ähnliche Angebote direkt informiert werden

  • Objektbeschreibung

    Herzlich Willkommen zu unserem Neubauprojekt "Illerpark Living".Einem einzigartigen Neubauprojekt, das modernen Wohnkomfort mit zukunftsorientierten Lösungen vereint. In bester Lage entsteht für Sie ein wertiges Wohnensemble, das insgesamt 41 attraktive Wohnungen verteilt auf fünf bzw. sechs Stockwerke umfasst.Zur Auswahl stehen je nach Ihren Bedürfnissen 1- bis 4-Zimmer-Wohnungen, mit einer Größe zwischen ca. 34 m² und ca. 126 m².Haus 1 erstreckt sich über sechs Vollgeschosse und bietet großzügige Wohnräume, die sowohl funktional als auch ästhetisch ansprechend sind. Haus 2 verfügt über fünf Vollgeschosse und ergänzt das Ensemble perfekt, sodass ein harmonisches Gesamtbild entsteht.Im Untergeschoss beider Häuser entsteht eine Tiefgarage mit 49 Stellplätzen zzgl. einem Kleinwagenstellplatz.

    Ähnliche Angebote

    So funktioniert es

    • Alle neuen Anzeigen matchen wir kostenlos mit Deinen Suchparametern.
    • Passende Angebote senden wir Dir in einer E-Mail pro Tag.
    • Du kannst auch verschiedene Suchen anlegen und Dich jederzeit abmelden. Mehr dazu
    Nach oben scrollen