Kaufpreis 241.700 €
Zimmer 2
Größe 83 m²
34289 Zierenberg
Objektdaten
Veröffentlicht am: 4. April 2025
Energieausweis: Liegt bei der Besichtigung vor
Danke! Bitte bestätige Deine E-Mail-Adresse – wir haben Dir soeben eine Mail geschickt.
Es gab ein Problem beim Absenden. Bitte versuche es erneut.
Bitte bestätige Deine E-Mail-Adresse, um Updates zu erhalten.
Objektbeschreibung
Objektbeschreibung
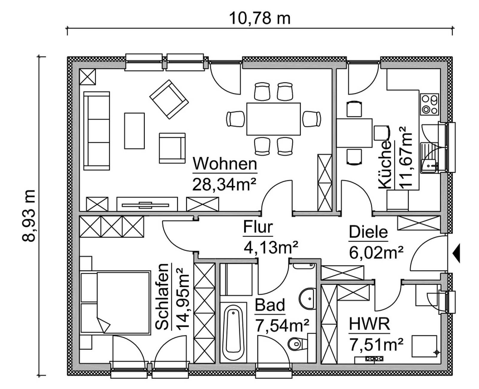
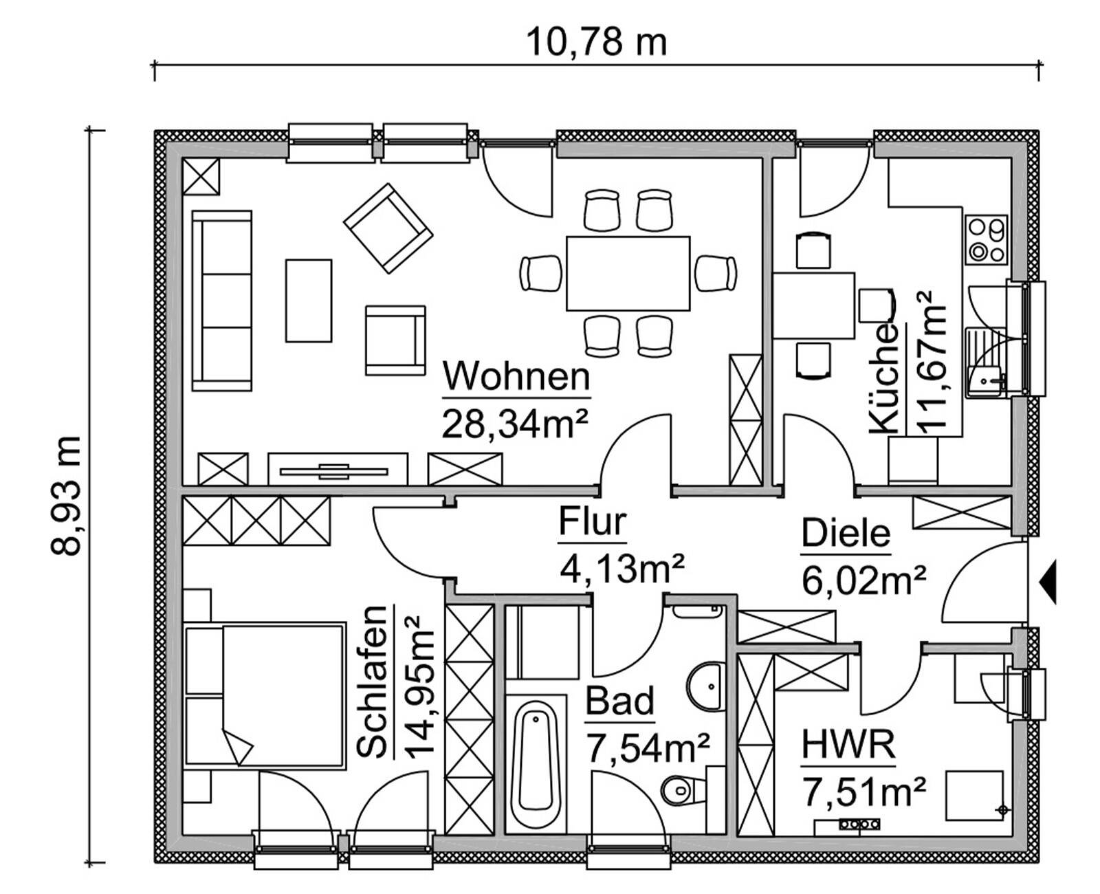
Das Wohnkonzept des SH 83 B ist auf insgesamt zwei Zimmer auf einer Ebene ausgelegt.Die Bereiche Wohnen, Essen und Kochen sind (können) offen geplant werden. Zusammen mit Flur, Vollbad und Hauswirtschaftsraum stehen Ihnen 80,17 m² zum Wohnen und Leben zur Verfügung.Und … selbstverständlich ist auch bei diesem Scanhaus die Bodenplatte bereits im Preis inbegriffen.Änderungen u.a. der Kubatur, Grundrisse, Heizungsart oder der technischen Ausstattung sind selbstverständlich möglich.Zum Leistungsumfang des Hauses gehört u.a. eine Luft-Wasserwärmepumpe, eine Fußbodenheizung, die Bodenplatte und der Estrich. Selbstverständlich gilt bei ScanHaus: ERST BAUEN – DANN ZAHLEN.Photovoltaik VorbereitungNicht zum Leistungsumfang gehören u.a. eine Küche, Malerarbeiten im Innenbereich, Wand- und Bodenbeläge, sowie Spachtel- und Fugenarbeiten oder Hausanschlüsse.
Raumaufteilung
Das Objekt liegt im OT von Zierenberg. Nahe gelegen gibt es ein Museum. In der näheren Umgebung finden Sie darüber hinaus mehrere Einkaufsmöglichkeiten, Schulen und ein Kindergarten befindet sich im Ort. Eine gute medizinische Versorgung, zahlreiche Erholungs- und Sportangebote und gute Ausgehmöglichkeiten gibt es im Umkreis.
So funktioniert es
- Alle neuen Anzeigen matchen wir kostenlos mit Deinen Suchparametern.
- Passende Angebote senden wir Dir in einer E-Mail pro Tag.
- Du kannst auch verschiedene Suchen anlegen und Dich jederzeit abmelden. Mehr dazu
Wir haben soeben eine E-Mail mit Deinem Suchauftrag an Dich geschickt. – Klicke in dieser Mail auf den Bestätigungslink und schon geht's los. Prüfe ggf. auch Deinen Spamordner.
Es gab ein Problem beim Absenden Deiner E-Mail-Adresse. Bitte versuche es erneut.
WARNUNG: Bitte bestätige Deine E-Mail-Adresse, um regelmäßige Updates zu erhalten.