Kaufpreis 495.000 €
Zimmer 3
Größe 66 m²
23701 Eutin
Objektdaten
Veröffentlicht am: 11. April 2025
Baujahr: 2024
Energieausweis: Liegt bei der Besichtigung vor
Danke! Bitte bestätige Deine E-Mail-Adresse – wir haben Dir soeben eine Mail geschickt.
Es gab ein Problem beim Absenden. Bitte versuche es erneut.
Bitte bestätige Deine E-Mail-Adresse, um Updates zu erhalten.
Objektbeschreibung
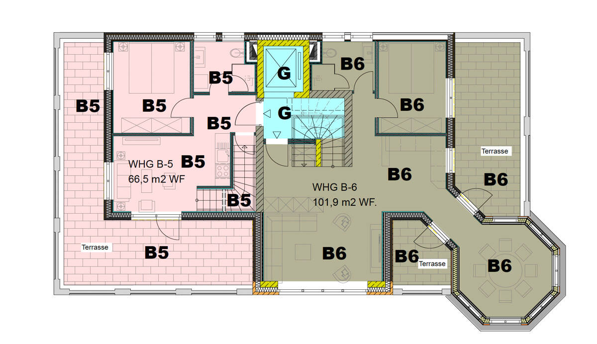
Diese Maisonette-Eigentumswohnung befindet sich in einer, in massiver Bauweise errichteten Wohnanlage mit 14 Wohneinheiten, aufgeteilt auf zwei Baukörper. Die hier angebotene 3-Zimmer Wohnung (Nr. B5) im 1.+2.DG Hauses B verfügt über ca. 66,5 m² Wohnfläche. Über das Treppenhaus, welches über einen Aufzug verfügt, gelangen Sie zur Wohnung. Der großzügig geschnittene Eingangsbereich empfängt Sie - ebenfalls auf dieser Ebene befinden sich der Wohn-/Küchenbereich, das Badezimmer mit bodengleicher Dusche sowie der herrliche große, nach Süden und Westen ausgerichtete Balkon. Eine Treppe führt in das 2.Dachgeschoss. Hier befinden sich ein weiteres Schlafzimmer sowie das zweite Duschbad und ein praktischer Abstellraum. Zu beachten ist, dass die tatsächliche Wohnfläche im 2.DG aufgrund der vorhandenen Schrägen und deren Abzügen größer wirken wird. Fußbodenheizung und die durchdachte architektonische Planung sind nur Beispiele für modernen Wohnkomfort und die hochwertige Bauausführung des ortsansässigen Bauherren. Malerarbeiten (Wand- und Deckenanstriche auf Malervlies in weiss) sind im Kaufpreis enthalten, ebenso Bodenbeläge aus hochwertigen Design-Vinylplanken in Holzoptik. Ein PKW Stellplatz kann optional für € 15.000,- erworben werden. Weitere bautechnische Details und im Kaufpreis enthaltende Leistungen, wie z.B. die Ausstattung der Badezimmer, stellen wir Ihnen im Rahmen einer Bau- und Leistungsbeschreibung gerne auf Wunsch zur Verfügung.
So funktioniert es
- Alle neuen Anzeigen matchen wir kostenlos mit Deinen Suchparametern.
- Passende Angebote senden wir Dir in einer E-Mail pro Tag.
- Du kannst auch verschiedene Suchen anlegen und Dich jederzeit abmelden. Mehr dazu
Wir haben soeben eine E-Mail mit Deinem Suchauftrag an Dich geschickt. – Klicke in dieser Mail auf den Bestätigungslink und schon geht's los. Prüfe ggf. auch Deinen Spamordner.
Es gab ein Problem beim Absenden Deiner E-Mail-Adresse. Bitte versuche es erneut.
WARNUNG: Bitte bestätige Deine E-Mail-Adresse, um regelmäßige Updates zu erhalten.