Kaufpreis 849.900 €
Zimmer 3
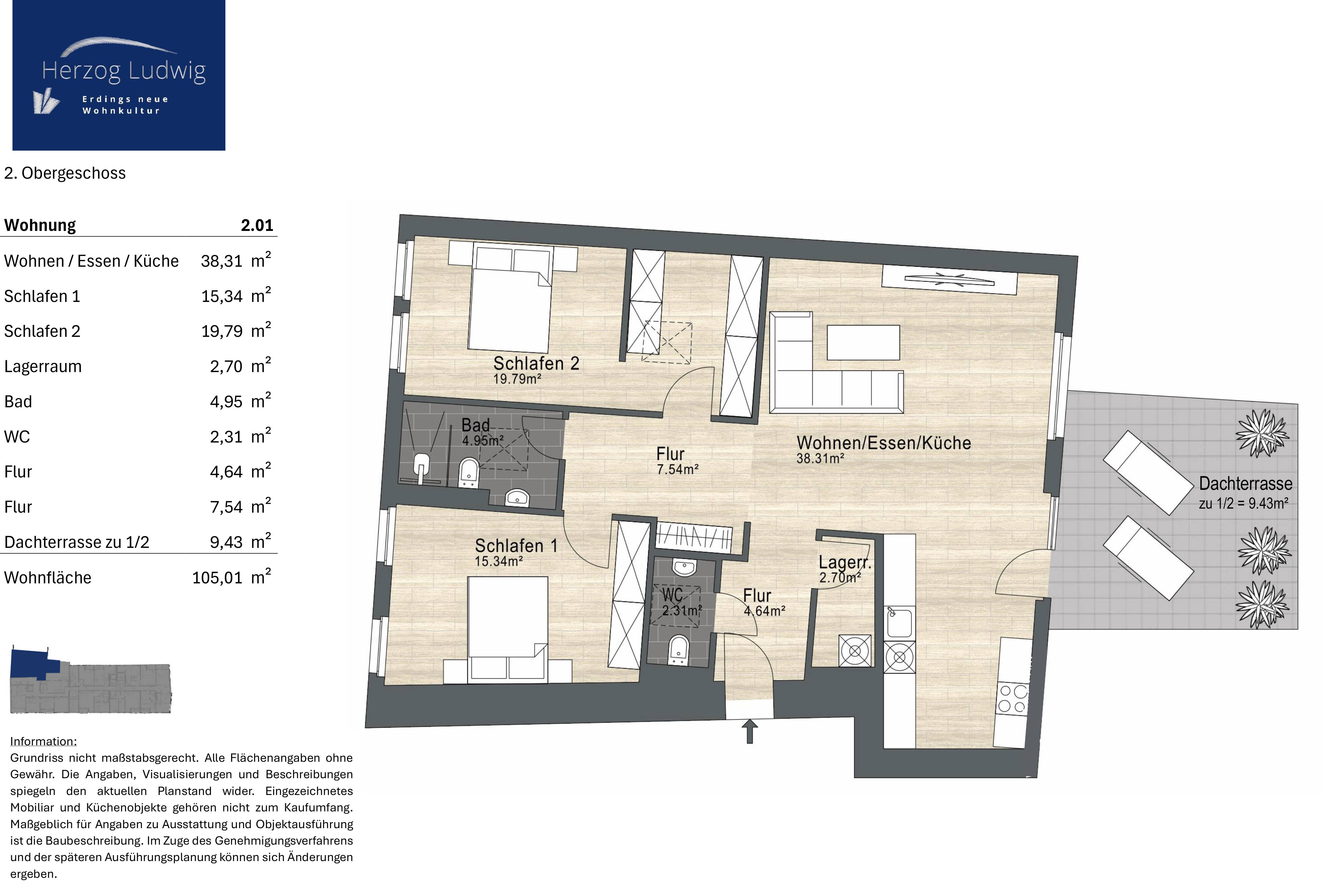
Größe 105 m²
85435 Erding
Objektdaten
Veröffentlicht am: 14. April 2025
Energieausweis: Liegt bei der Besichtigung vor
Danke! Bitte bestätige Deine E-Mail-Adresse – wir haben Dir soeben eine Mail geschickt.
Es gab ein Problem beim Absenden. Bitte versuche es erneut.
Bitte bestätige Deine E-Mail-Adresse, um Updates zu erhalten.
Objektbeschreibung
Mittendrin statt nur dabei: Diese neu errichtete 3,5-Zimmer-Stadtwohnung vereint alle Bedürfnissen modernen Wohnkomforts. Die Wohnung betritt man über ein großzügiges Entrée mit praktischen Stellmöglichkeiten, der Flur erschließt alle Räumlichkeiten: Sowohl das Schlaf-/Kinder-/Gäste-/Arbeitszimmer als auch den Master-Bedroom mit eigener Ankleide, das Tageslicht-Bad sowie ein separates WC und Abstell-/Vorratsraum inkl. Waschmaschinenanschluss. Highlight der Wohnung ist freilich der über 38 Quadratmeter große Wohn- und Essbereich mit offener Küche und herrlichem Blick in den grünen Innenhof dank bodentiefer Panorama-Fensterelemente zur vorgelagerten Dachterrasse. Von hier aus geht der Blick über angfrenztende Gärten und Grünflächen in bester Südost-Ausrichtung bis hin zur Sempt - absolut ruhig und doch mitten in der Stadt!Die Wohnung befindet sich im zweiten und damit obersten Geschoß (mit Lift) - mit bis zu 4 Metern Raumhöhe, sichtbarem Dachstuhl u.v.m. ein echtes Highlight in einer ruhigen Seitenstraße!Im HERZOG LUDWIG fühlt man sich "dahoam": Ob als Zweit- oder Stadtwohnung, zum Selbstbezug oder zur Vermietung, ob chices Apartment oder geräumiges Leben unterm Dach - hier heißt Sie jede Wohnung mit viel Charme, Leichtigkeit und Wohlfühl-Atmosphäre willkommen.***Einmalige STEUERVORTEILE dank SANIERUNGS-AfA***Neben einem verbesserten Co2-Footprint profitieren Erwerber von zusätzlichen Steuervorteilen im Rahmen der "Sanierungs-AfA - und zwar sowohl Selbstnutzer als auch Anleger! Für Anleger bietet diese Sonderabschreibung in Komnbination mit der erhöhten linearen AfA für eine bis zu dreimal höhere Abschreibemöglichkeit als bei herkömmlichen Immobilien - das bedeutet eine bare Steuer-Ersparnis!
So funktioniert es
- Alle neuen Anzeigen matchen wir kostenlos mit Deinen Suchparametern.
- Passende Angebote senden wir Dir in einer E-Mail pro Tag.
- Du kannst auch verschiedene Suchen anlegen und Dich jederzeit abmelden. Mehr dazu
Wir haben soeben eine E-Mail mit Deinem Suchauftrag an Dich geschickt. – Klicke in dieser Mail auf den Bestätigungslink und schon geht's los. Prüfe ggf. auch Deinen Spamordner.
Es gab ein Problem beim Absenden Deiner E-Mail-Adresse. Bitte versuche es erneut.
WARNUNG: Bitte bestätige Deine E-Mail-Adresse, um regelmäßige Updates zu erhalten.