Objektdaten
Objektbeschreibung
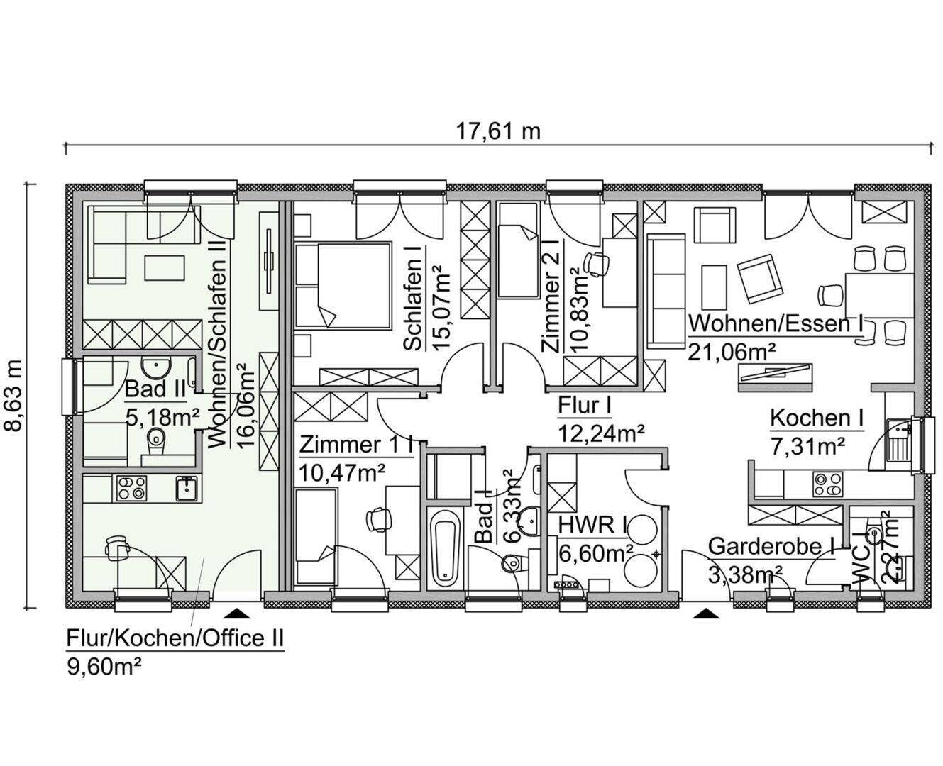
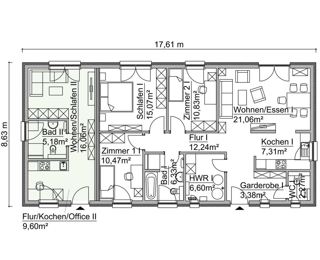
Anders Wohnen - gemeinsam LebenDieses Mehrgenerationenhaus ist im Baustil eines Bungalow auf einer Ebene inkl. einer Einliegerwohnung von 30,84 m² geplant. Es ergibt sich inklusive der Einliegerwohnung eine Gesamtwohnfläche von 126,40 m². Beide Wohneinheiten haben separate Eingänge für mehr Privatsphäre. Die Hauptwohnung bietet mit 4 Zimmern Platz für eine vierköpfige Familie. Die Einliegerwohnung ist zwar mit einem offenen Grundriss geplant, trennt aber durch den Flur den Koch- und Arbeitsbereich vom gemütlichen Wohnbereich. Das integrierte Duschbad hat bei dieser Raumplanung ebenfalls ein Fenster, welches für Tageslicht und Frischluft nach dem Duschen sorgt.GrundrissbeispielBei ScanHaus Marlow haben bereits viele Haustypen mehrere Grundrissvarianten. Sollte Ihnen keine Variante zusprechen, ist es selbstverständlich möglich den Grundriss nach Ihren individuellen Wünschen und Bedürfnissen in Abstimmung mit unseren Architekten anzupassen.Ähnliche Angebote
So funktioniert es
- Alle neuen Anzeigen matchen wir kostenlos mit Deinen Suchparametern.
- Passende Angebote senden wir Dir in einer E-Mail pro Tag.
- Du kannst auch verschiedene Suchen anlegen und Dich jederzeit abmelden. Mehr dazu



