Objektdaten
Objektbeschreibung
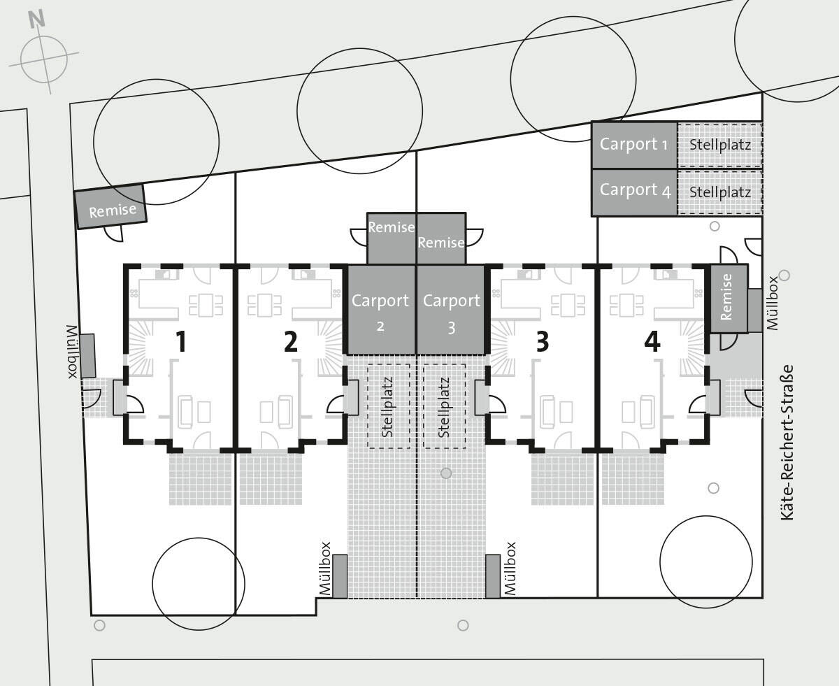
In diesem Neubau Projekt Nr. 232 entstehen attraktive Doppelhaushälften vom Typ VITA im Wohngebiet RieterBogen Kornburg mit einer Wohnfläche von ca. 149m².Bei dem zu verkaufendem Haus handelt es sich um das Doppelhaus Nr. 1.Diese Vorteile genießen Sie in Ihrer Doppelhaushälfte:+ Süd- und Nordgarten, Terrasse auf der Südseite+ Gesamtwohnfläche ca. 149 m², Hausbreite 6,5 m+ 3 Wohnetagen, helles Dachgeschoss mit zwei Gauben+ Bis zu 7 Zimmer planbar+ Dachgeschoss auf Wunsch flexibel gestaltbar+ Massivhaus voll unterkellert mit 3 großen Kellerräumen+ Unverbaubarer Blick in die Natur+ Parkettboden+ Fußbodenheizung+ Grundstücksfläche: ca. 226 m² mit eigenem Garten+ Kindergarten und Grundschule in Kornburg vorhandenVoraussichtlicher Bezugstermin: ca. Sommer 2024Bitte beachten Sie, dass nur vollständig ausgefüllte Anfragen bearbeitet werden können. Vielen Dank im Voraus.Ähnliche Angebote
So funktioniert es
- Alle neuen Anzeigen matchen wir kostenlos mit Deinen Suchparametern.
- Passende Angebote senden wir Dir in einer E-Mail pro Tag.
- Du kannst auch verschiedene Suchen anlegen und Dich jederzeit abmelden. Mehr dazu



