Historisches Anwesen – Wohnhaus mit Gaststätte

Kaufpreis 1.195.000 €
Zimmer 12
Größe 600 m²
91058 Erlangen

Objektdaten

Veröffentlicht am: 8. Mai 2025
Energieausweis: Liegt bei der Besichtigung vor
  • Objektbeschreibung

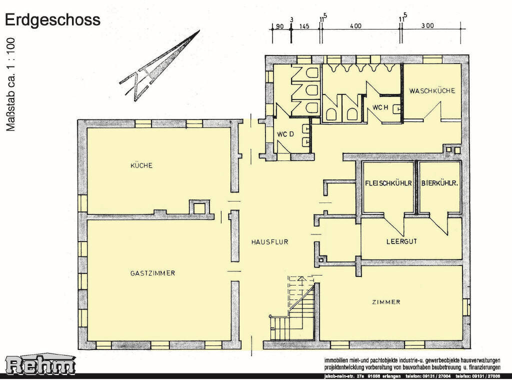
    Historisches Anwesen - Wohnhaus mit Gastrobereich in ErlangenLage -Attraktive Lage in Erlangen-Tennenlohe, hervorragende Infrastruktur, Kindergärten, Schulen, Einkaufsmöglichkeiten etc.Gute öffentliche Verkehrsanbindung in die Erlanger City und nach Nürnberg mit Stadtbussen, schnelle PKW-Anbindung zu den benachbarten Städten, dem Flughafen Nürnberg über die B4, Stadtautobahn bzw. BAB.Kurzbeschreibung -Großzügiges historisches Anwesen, denkmalgeschützt, mit Gastrobereich im Erdgeschoss und Wohnbereichen über 2 Ebenen darüberGeschoss - Wohn-u. Nutzfläche -ca. 600 qmAusstattung -Das Gebäude befindet sich baulich in einem guten zeitgemäßen Zustand, die Ausstattungen dürfen überwiegend als sehr gepflegt und gut bezeichnet werden.Hinweis -Auch für Kapitalanleger ein interessantes Objekt bei einer zu erwartenden nachhaltig erzielbaren Rendite von derzeit rd. 5,8 % !!!Energiedaten für Wohngebäude -Entfällt, da Gebäude unter Denkmal-/Ensembleschutz steht !
    Nach oben scrollen