Objektdaten
Objektbeschreibung
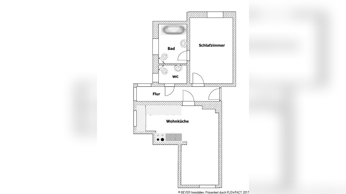
Attraktive, modernisierte 2-Zimmerwohnung mit hochwertiger AusstattungDiese hochwertig modernisierte 2-Zimmerwohnung bietet eine Wohnfläche von 59m². Der offen gestaltete Wohnbereich mit integrierter Küche, Flur und Schlafzimmer ist mit stilvollen Holzdielen ausgestattet und vermittelt ein modernes, angenehmes Wohnambiente.Das großzügige Tageslichtbad verfügt über eine Badewanne und überzeugt mit einem zeitgemäßen Design.Ein besonderes Highlight ist die individuell geplante, hochwertige Einbauküche. Diese kann gegen eine Ablöse von 7.280 € übernommen werden. Alternativ ist eine monatliche Zahlung von 125 € möglich - bei einer Mindestmietdauer von 3 Jahren.Ähnliche Angebote
So funktioniert es
- Alle neuen Anzeigen matchen wir kostenlos mit Deinen Suchparametern.
- Passende Angebote senden wir Dir in einer E-Mail pro Tag.
- Du kannst auch verschiedene Suchen anlegen und Dich jederzeit abmelden. Mehr dazu





