Objektdaten
Objektbeschreibung
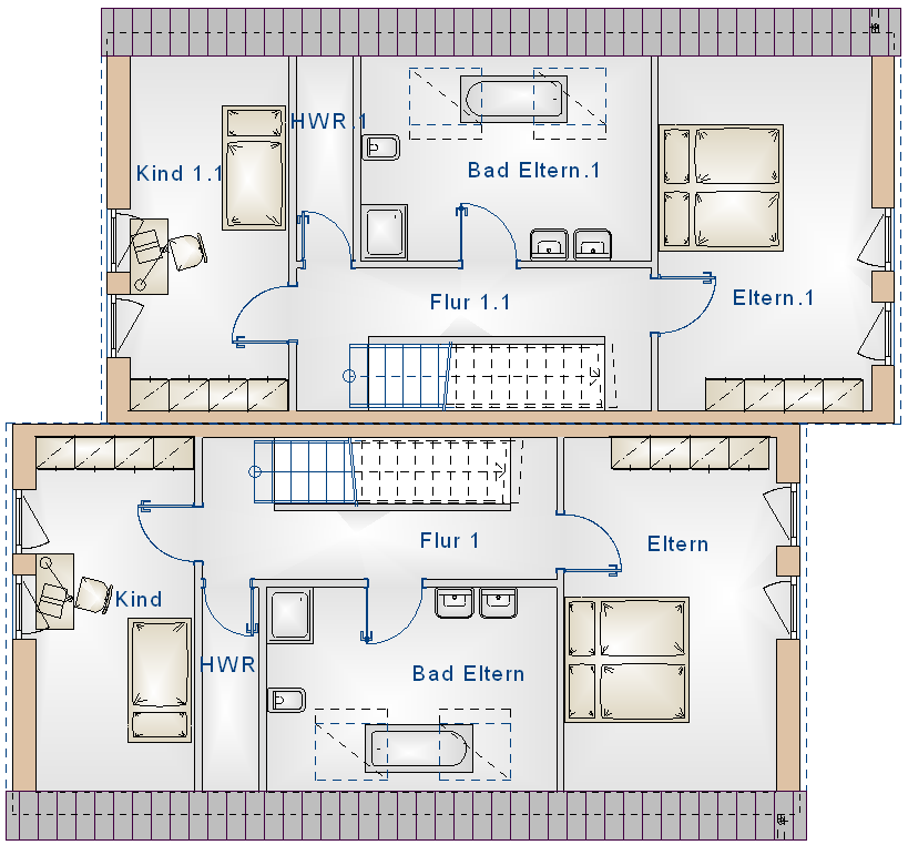
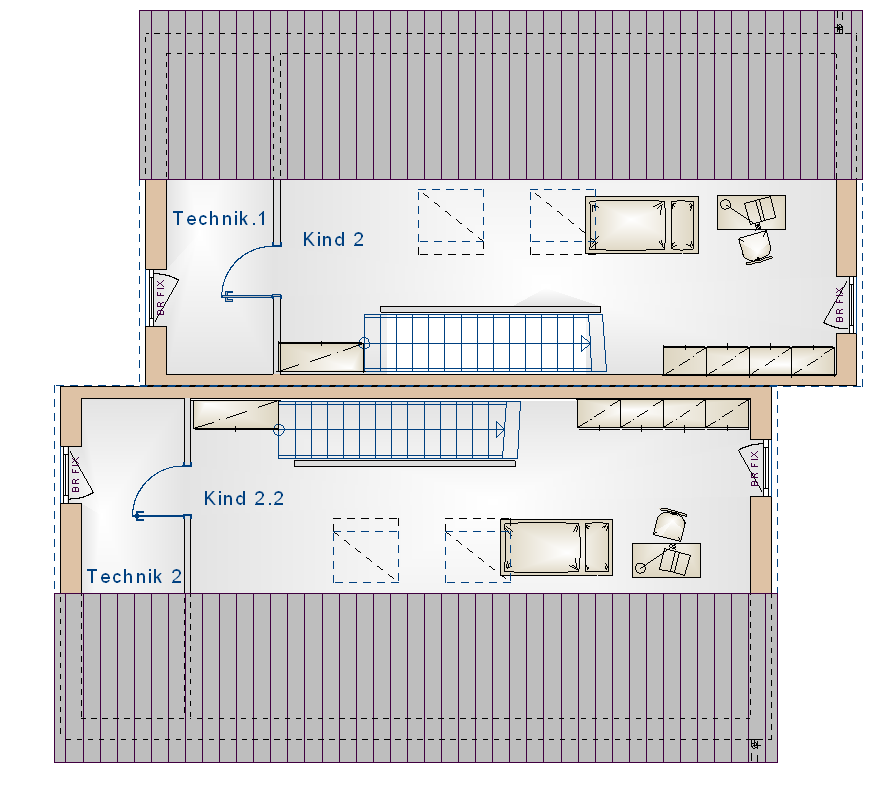
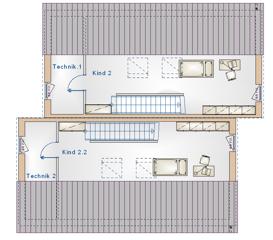
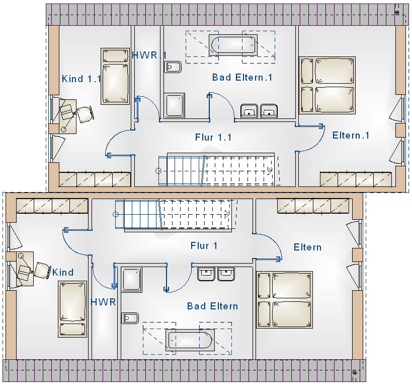
Willkommen in Alzenau-AlbstadtWir bieten Ihnen hier exklusiv diese neue wunderschöne Doppelhaushälfte in Alzenau-Albstadt an. Das großzügige Anwesen besticht durch zweckmäßig durchdachte Raumaufteilungen. Im Erdgeschoss findet das gemeinsame Leben der Bewohner in lichtdurchfluteten offenen Räumen statt. Die zwei Schlafzimmer im Obergeschoss eignen sich hervorragend auch für Familien mit Kindern. Das schicke Kinderzimmer im Spitzboden kann natürlich auch zu anderen Zwecken genutzt werden. Der Garten und die Terrassen bieten viel Platz für angenehme Freizeitgestaltungen.So funktioniert es
- Alle neuen Anzeigen matchen wir kostenlos mit Deinen Suchparametern.
- Passende Angebote senden wir Dir in einer E-Mail pro Tag.
- Du kannst auch verschiedene Suchen anlegen und Dich jederzeit abmelden. Mehr dazu



