Kaufpreis 959.000 €
Zimmer 6
Größe 208 m²
61231 Bad Nauheim
Objektdaten
Veröffentlicht am: 9. Mai 2025
Energieausweis: Liegt bei der Besichtigung vor
Danke! Bitte bestätige Deine E-Mail-Adresse – wir haben Dir soeben eine Mail geschickt.
Es gab ein Problem beim Absenden. Bitte versuche es erneut.
Bitte bestätige Deine E-Mail-Adresse, um Updates zu erhalten.
Objektbeschreibung
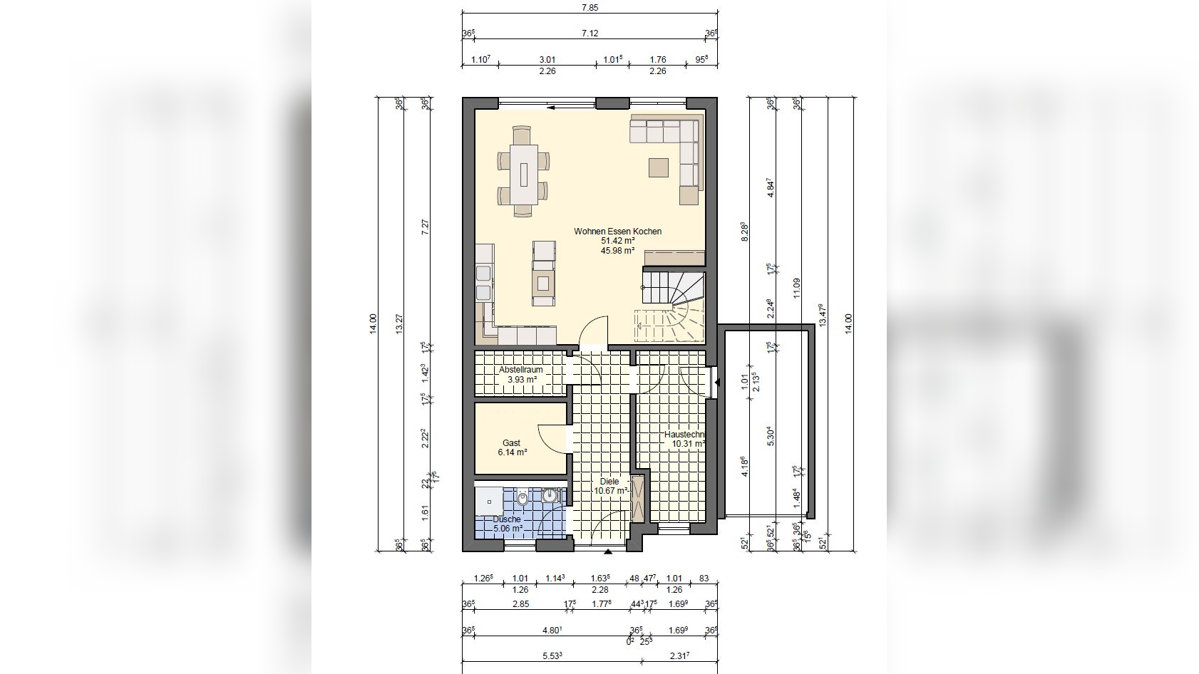
Willkommen in Ihrem neuen Zuhause! In einer der begehrtesten Lagen von Bad Nauheim erwartet Sie dieses hochmoderne Einfamilienhaus, das keine Wünsche offenlässt. Mit einer großzügigen Wohnfläche von 208 m² und einer durchdachten Raumaufteilung bietet dieses Haus ausreichend Platz für die ganze Familie.ErdgeschossBeim Betreten des Hauses gelangen Sie in eine einladende Diele, die direkt in den großzügigen Wohn- und Essbereich mit direktem Zugang zum Garten übergeht. Hier verbindet sich moderne Architektur mit behaglicher Wohnatmosphäre. Ein Abstellraum sorgt für zusätzlichen Stauraum, während ein separates Gästezimmer vielfältige Nutzungsmöglichkeiten bietet. Abgerundet wird das Erdgeschoss durch ein modernes Duschbad sowie einen praktischen Haustechnikraum.ObergeschossDas Obergeschoss ist der perfekte Rückzugsort für die Familie. Es beherbergt zwei helle Kinderzimmer, die individuell gestaltet werden können. Ein zusätzliches Duschbad sorgt für Komfort und Flexibilität im Alltag. Das Highlight dieser Etage ist das luxuriöse Elternschlafzimmer mit einer angrenzenden Ankleide und einem eigenen Masterbad, das mit einer Badewanne, einer separaten Dusche und hochwertigen Sanitärobjekten ausgestattet ist.DachgeschossDas Dachgeschoss überrascht mit einem großzügigen Studiozimmer, das mit einer Fläche von ca. 51 m² vielfältige Möglichkeiten bietet. Ob als Home-Office, Fitnessraum oder Atelier - hier können Sie Ihren Ideen freien Lauf lassen.Außenbereich und AusstattungDas Einfamilienhaus verfügt über eine integrierte Garage, die bequem Platz für Ihr Fahrzeug bietet. Der gepflegte Garten bietet Raum für Entspannung und Freizeitaktivitäten. Die gesamte Immobilie ist mit modernster Haustechnik ausgestattet, die für ein hohes Maß an Energieeffizienz und Komfort sorgt.Dieses Haus vereint stilvolles Design mit funktionaler Raumaufteilung und modernster Technik. Es bietet Ihnen und Ihrer Familie ein perfektes Zuhause in einer der besten Lagen von Bad Nauheim. Selbstverständlich ist diese Planung nach Ihren Wünschen Individuell Anpassbar. Zögern Sie nicht, sich dieses einzigartige Angebot anzusehen und sich von den Vorzügen dieses Neubaus zu überzeugen. Willkommen in Ihrem neuen Traumhaus!
So funktioniert es
- Alle neuen Anzeigen matchen wir kostenlos mit Deinen Suchparametern.
- Passende Angebote senden wir Dir in einer E-Mail pro Tag.
- Du kannst auch verschiedene Suchen anlegen und Dich jederzeit abmelden. Mehr dazu
Wir haben soeben eine E-Mail mit Deinem Suchauftrag an Dich geschickt. – Klicke in dieser Mail auf den Bestätigungslink und schon geht's los. Prüfe ggf. auch Deinen Spamordner.
Es gab ein Problem beim Absenden Deiner E-Mail-Adresse. Bitte versuche es erneut.
WARNUNG: Bitte bestätige Deine E-Mail-Adresse, um regelmäßige Updates zu erhalten.