Warmmiete 745 €
Zimmer 2
Größe 53 m²
91341 Röttenbach
Objektdaten
Veröffentlicht am: 10. Mai 2025
Frei ab: 30. April 2025
Kaltmiete 595 €
Energieausweis: Liegt bei der Besichtigung vor
Danke! Bitte bestätige Deine E-Mail-Adresse – wir haben Dir soeben eine Mail geschickt.
Es gab ein Problem beim Absenden. Bitte versuche es erneut.
Bitte bestätige Deine E-Mail-Adresse, um Updates zu erhalten.
Objektbeschreibung
Objektbeschreibung
Diese wunderschöne 2-Zimmer-Wohnung ist an ein Einfamilienhaus angebaut und verfügt über einen eigenen Zugang.Die Wohnung ist großzügig geschnitten und bis unter das Dach ausgebaut, was für eine angenehme Wohnatmosphäre sorgt. Die sichtbaren Holzbalken der Decke setzen einen charmanten Kontrast zu den modernen Fußböden.Die Ausstattung der Wohnung ist durch die bisherige Nutzung als Wochenendheimfahrerwohnung in einem sehr gepflegten Zustand und weiterhin zeitgemäß.Der Wohnbereich zeichnet sich durch eine große Fensterfront nach Westen aus, die viel Licht und ein offenes Raumgefühl schafft. Die Möblierung kann nach Absprache mit dem Mieter erweitert oder teilweise entfernt werden.Die geräumige Wohnküche ist mit einer gepflegten Einbauküche ausgestattet, die alle notwendigen Elektrogeräte umfasst. Zusätzlich gibt es ein Sofa, einen Esstisch und einen Arbeitstisch. Sollte etwas fehlen, kann dies in Abstimmung ergänzt werden. Das Schlafzimmer ist mit einem großen Bett und einem geräumigen Kleiderschrank eingerichtet.Da in der Wohnung kein Waschmaschinenanschluss vorhanden ist, wird sie ausschließlich an Wochenendheimfahrer vermietet.
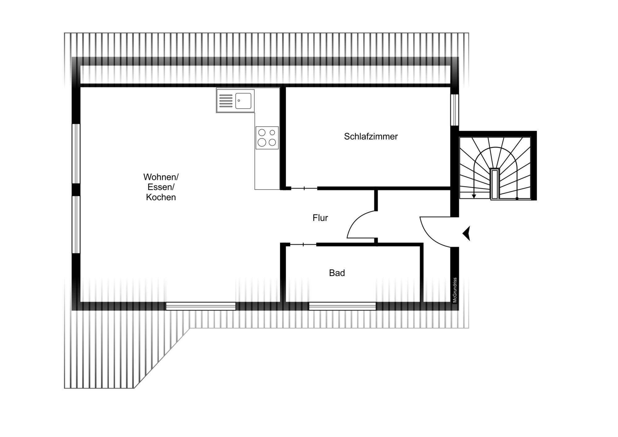
Aufteilung
Aufteilung . Flur mit Garderobennische. Modernes Bad mit Fenster, Badewanne, Dusche, Waschbecken und WC. Schlafzimmer. Wohn-Essbereich
So funktioniert es
- Alle neuen Anzeigen matchen wir kostenlos mit Deinen Suchparametern.
- Passende Angebote senden wir Dir in einer E-Mail pro Tag.
- Du kannst auch verschiedene Suchen anlegen und Dich jederzeit abmelden. Mehr dazu
Wir haben soeben eine E-Mail mit Deinem Suchauftrag an Dich geschickt. – Klicke in dieser Mail auf den Bestätigungslink und schon geht's los. Prüfe ggf. auch Deinen Spamordner.
Es gab ein Problem beim Absenden Deiner E-Mail-Adresse. Bitte versuche es erneut.
WARNUNG: Bitte bestätige Deine E-Mail-Adresse, um regelmäßige Updates zu erhalten.