Objektdaten
Objektbeschreibung
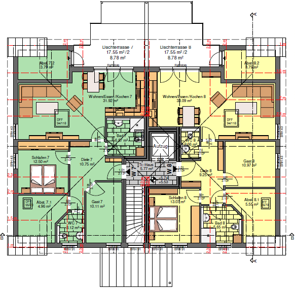
Im Neubau entstehen 2- bis 3-Zimmer-Wohnungen von ca. 55 m² bis 92 m² Wohnfläche. Die 8 Wohnungen verteilen sich auf 3 Etagen. Von der Straße am Sund aus fahren Sie auf die Zufahrt, die im Norden des Gebäudes liegt. Hier sind Kfz-Stellplätze und das Nebengebäude. Alle Wohnungen sind barrierefrei, die Wohnung 2 ist behindertengerecht. Die Wohnflächen beinhalten Terrassen im EG zu 25% und Balkone im 1.OG und 2.OG zu 50 %.Die Grundrisse zeichnen sich durch große helle offene Wohn-Essbereichen in Südausrichtung aus. Die Schlafzimmer sind nach Norden orientiert. Die Wohnungen im Erdgeschoss erhalten eine nach Süden ausgerichteten Terrasse mit eigenem Gartenanteil. Die Wohnungen im 1.OG erhalten einen Balkon, die im 2.Obergeschoss eine Dachterrasse. Hier lassen Sie den Tag wundervoll ausklingen. Zu jeder Wohnung ist ein eigener PKW-Stellplatz und ein Abstellraum im Nebengebäude zugeordnet.Diese Anzeige ist für WOhnung 1 im EG. Weitere Wohnungen siehe Kaufpreisliste bei Fotos.Ähnliche Angebote
So funktioniert es
- Alle neuen Anzeigen matchen wir kostenlos mit Deinen Suchparametern.
- Passende Angebote senden wir Dir in einer E-Mail pro Tag.
- Du kannst auch verschiedene Suchen anlegen und Dich jederzeit abmelden. Mehr dazu




