Kaufpreis 780.000 €
Zimmer 6
Größe 165 m²
71116 Gärtringen
Objektdaten
Veröffentlicht am: 2. Juni 2025
Energieausweis: Liegt bei der Besichtigung vor
Danke! Bitte bestätige Deine E-Mail-Adresse – wir haben Dir soeben eine Mail geschickt.
Es gab ein Problem beim Absenden. Bitte versuche es erneut.
Bitte bestätige Deine E-Mail-Adresse, um Updates zu erhalten.
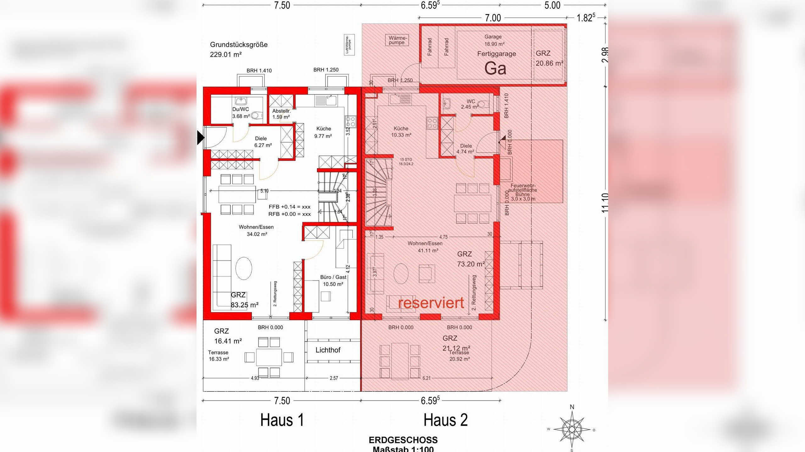
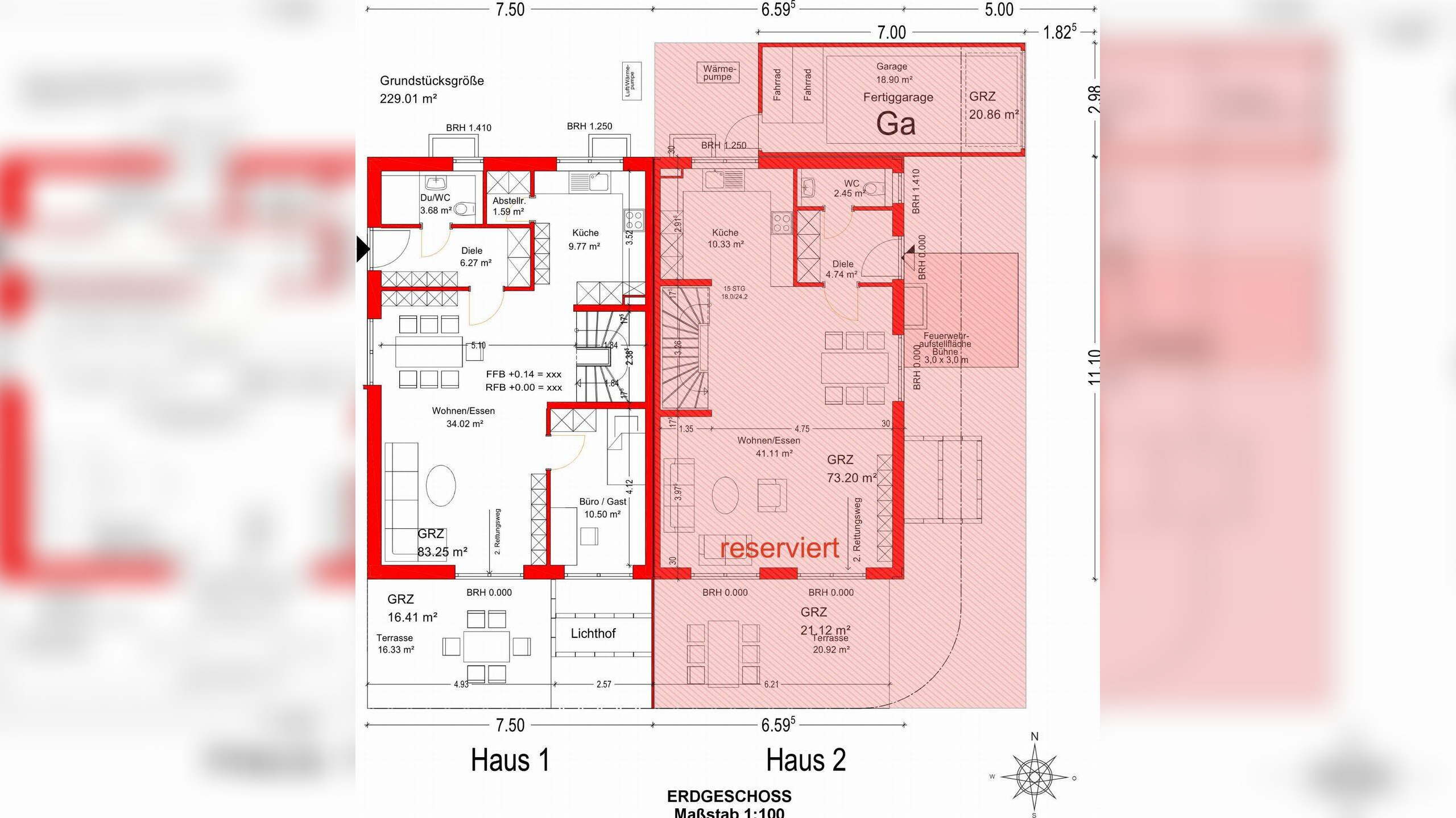
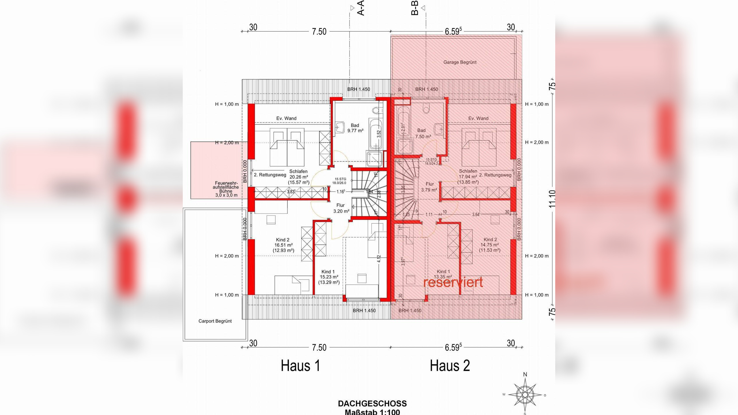
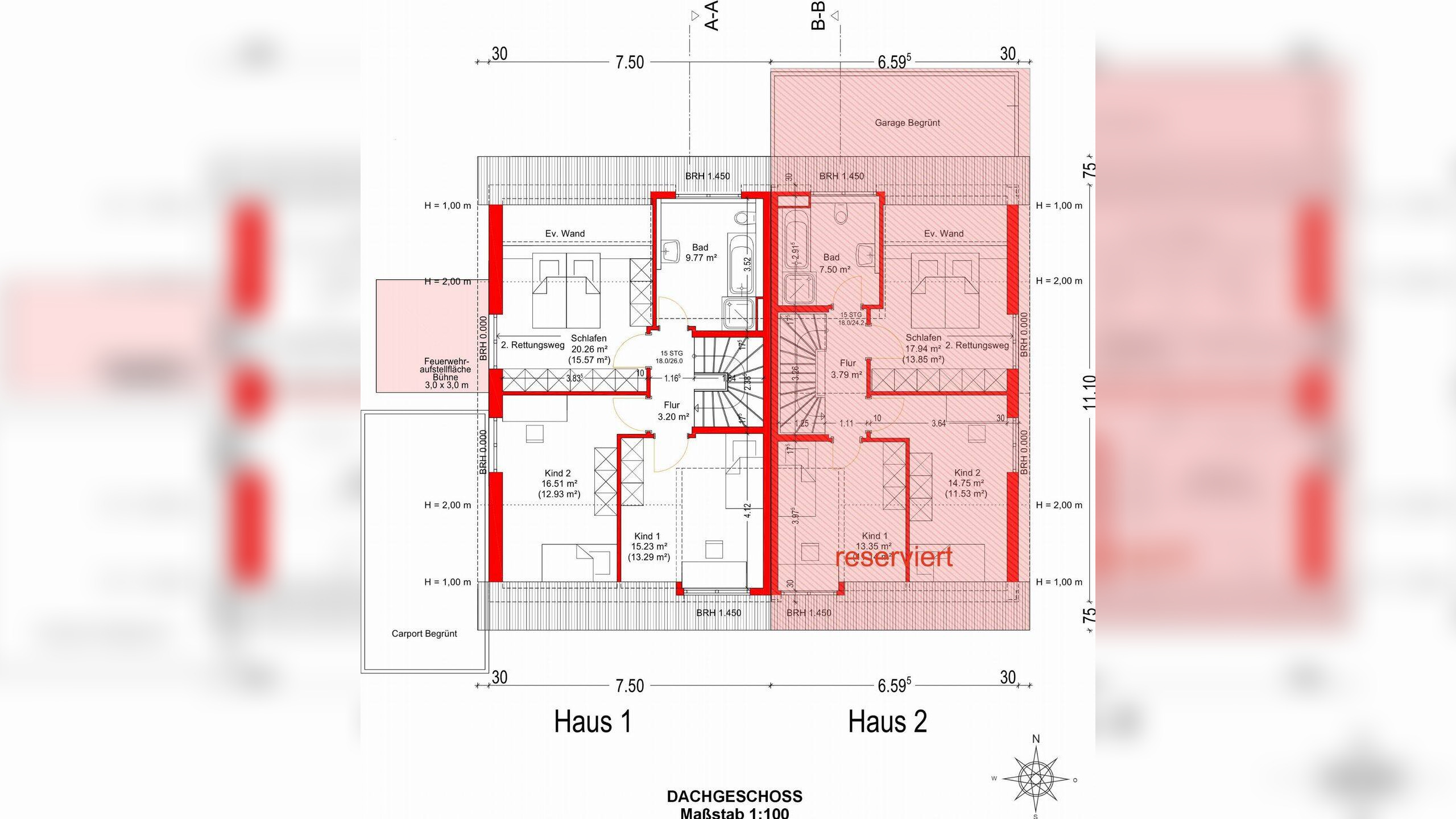
Objektbeschreibung
MUSTERHAUS SAMSTAGS GEÖFFNET - Kommen Sie gerne Samstags von 11 - 13 Uhr nach Schönaich, Bahnhofstraße 23/2. Wir freuen uns auf Sie!Sie leben glücklich in Ihrem Haus und wollen, das das auch im Alter so bleibt. Hier ist es möglich. Unsere family+-Planung bietet Ihnen ein weiteres Zimmer im Erdgeschoß samt Duschbad. Für alle Fälle vorgesorgt! So ersparen Sie sich einen teuren Umzug, wenn es in einem konventionellen Haus wegen der Treppen nicht mehr geht, und genießen weiter Ihr gewohntes Zuhause. Neugierig geworden? Dann entdecken Sie jetzt Ihr neues Heim auf diesem einzigartigen Bauplatz, welcher keine Wünsche offen lässt.Im komplett wärmegedämmten Untergeschoss finden Sie nicht nur Technik- und Vorratsräume, sondern auch zwei beheizte Hobbyräume. Diese bieten Ihnen vielseitige Nutzungsmöglichkeiten - ob Homeoffice, Gästezimmer oder ein privater Rückzugsort für Ihre Hobbys. Hier wird für jeden Bedarf etwas geboten!Das großzügige Erdgeschoss überzeugt mit einer praktischen und durchdachten Raumaufteilung. Im Eingangsbereich ist Platz für eine Garderobe und ein Gäste-WC mit der Option für eine zusätzliche Dusche. Das Herzstück des Hauses ist das offene Wohn- und Esszimmer, kombiniert mit einer modernen Küche - perfekt für gemütliche Abende und gesellige Stunden. In der family+-Variante ist ein weiteres Zimmer im EG ausgebaut!Im Dachgeschoss erwarten Sie zwei sonnige Zimmer auf der Südseite, ein großzügiges Familienbad mit Badewanne, WC und Dusche sowie ein Elternschlafzimmer.
So funktioniert es
- Alle neuen Anzeigen matchen wir kostenlos mit Deinen Suchparametern.
- Passende Angebote senden wir Dir in einer E-Mail pro Tag.
- Du kannst auch verschiedene Suchen anlegen und Dich jederzeit abmelden. Mehr dazu
Wir haben soeben eine E-Mail mit Deinem Suchauftrag an Dich geschickt. – Klicke in dieser Mail auf den Bestätigungslink und schon geht's los. Prüfe ggf. auch Deinen Spamordner.
Es gab ein Problem beim Absenden Deiner E-Mail-Adresse. Bitte versuche es erneut.
WARNUNG: Bitte bestätige Deine E-Mail-Adresse, um regelmäßige Updates zu erhalten.