Objektdaten
Objektbeschreibung
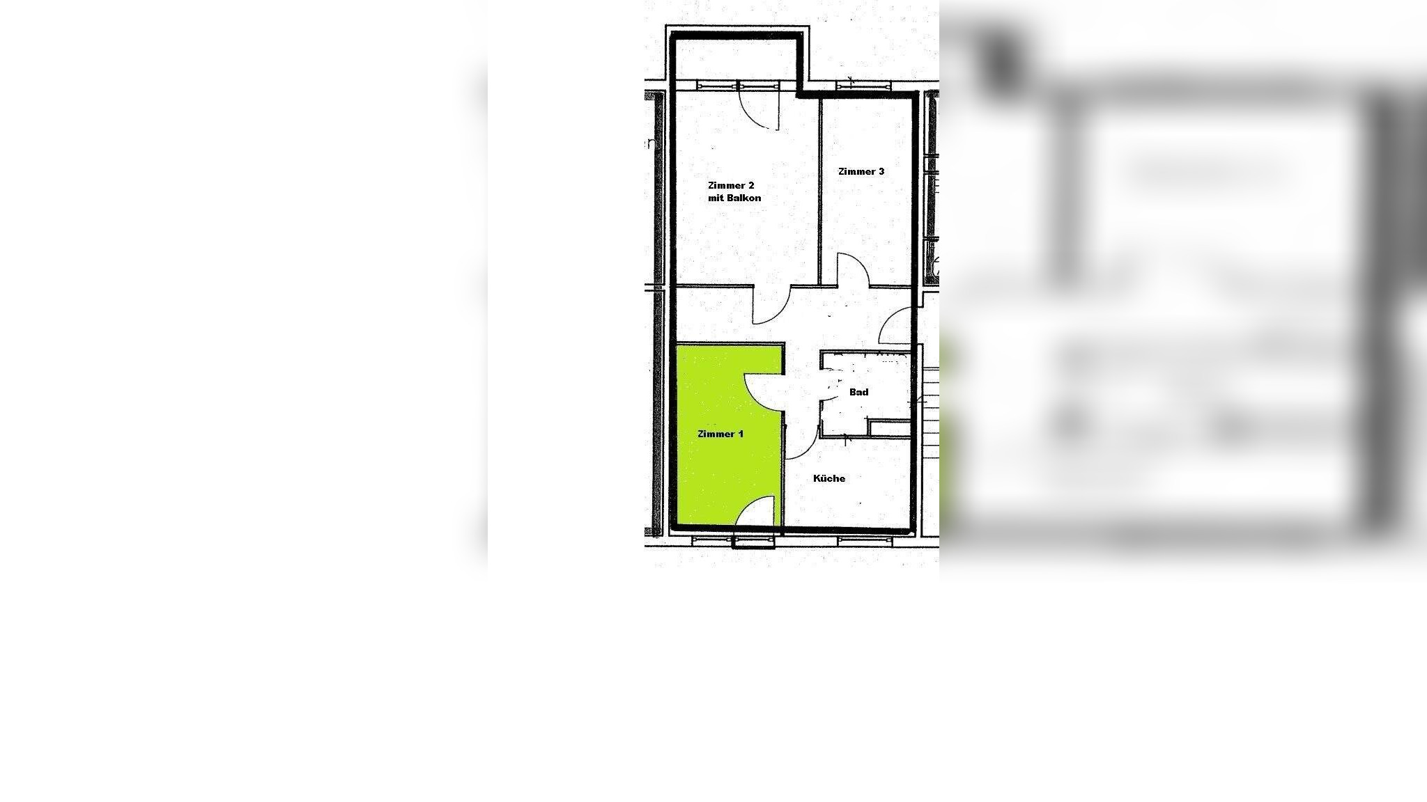
Die Wohngemeinschaft befindet sich gerade in Neugründung. Ein Mietbeginn ist ab August 2025 möglich.Ähnliche Angebote
So funktioniert es
- Alle neuen Anzeigen matchen wir kostenlos mit Deinen Suchparametern.
- Passende Angebote senden wir Dir in einer E-Mail pro Tag.
- Du kannst auch verschiedene Suchen anlegen und Dich jederzeit abmelden. Mehr dazu


