Objektdaten
Objektbeschreibung
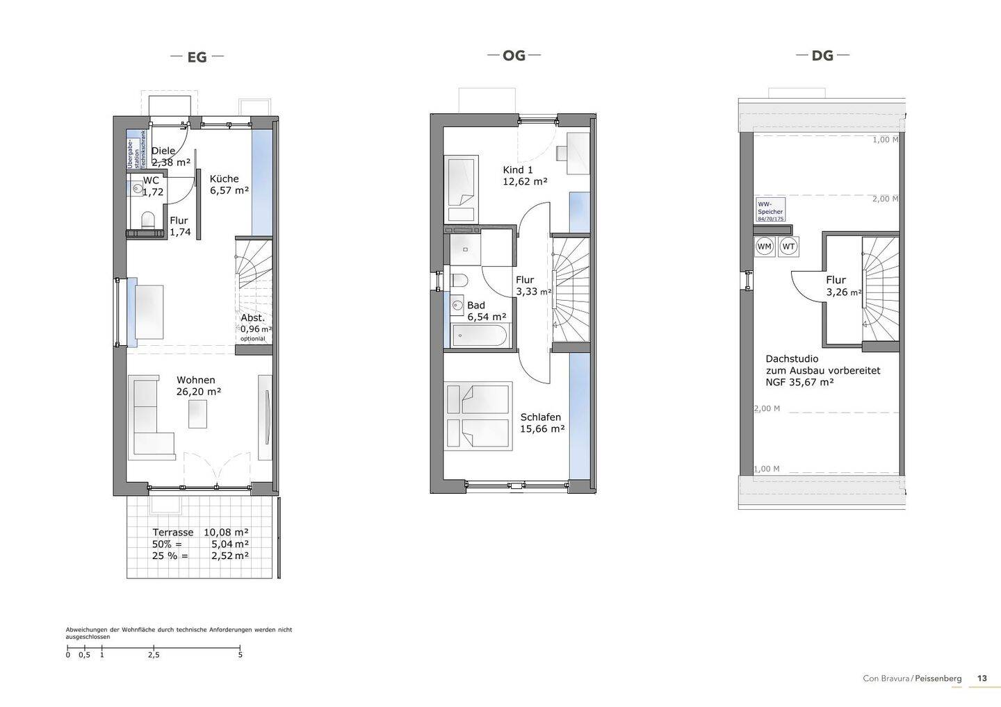
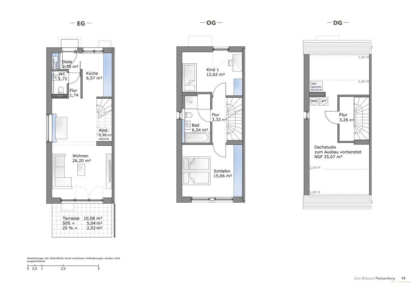
Die hier angebotene, ca. 112 m² große Reihenmittelhaus überzeugt mit einem klar strukturierten Grundriss und ausreichend Platz für die ganze Familie. Das Herzstück des Hauses bildet der helle, offen gestaltete Wohn- und Essbereich mit direktem Zugang zur Terrasse und Garten. Drei gut geschnittene Schlafzimmer bieten Rückzugsmöglichkeiten für Eltern und Kinder.Ein zusätzliches Highlight ist der optional ausbaubare Dachgeschossbereich - ideal als Arbeitszimmer, Spielbereich oder gemütlicher Rückzugsort.So funktioniert es
- Alle neuen Anzeigen matchen wir kostenlos mit Deinen Suchparametern.
- Passende Angebote senden wir Dir in einer E-Mail pro Tag.
- Du kannst auch verschiedene Suchen anlegen und Dich jederzeit abmelden. Mehr dazu




