Kaufpreis 994.000 €
Zimmer 7
Größe 202 m²
42699 Solingen
Objektdaten
Veröffentlicht am: 6. Juli 2025
Baujahr: 2017
Energieausweis: Liegt bei der Besichtigung vor
Danke! Bitte bestätige Deine E-Mail-Adresse – wir haben Dir soeben eine Mail geschickt.
Es gab ein Problem beim Absenden. Bitte versuche es erneut.
Bitte bestätige Deine E-Mail-Adresse, um Updates zu erhalten.
Objektbeschreibung
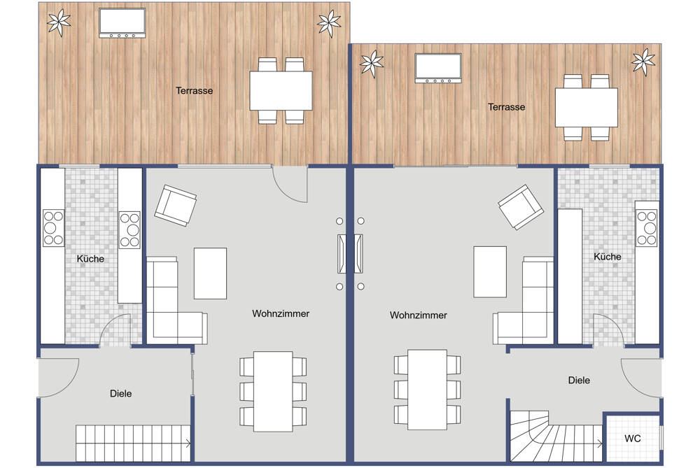
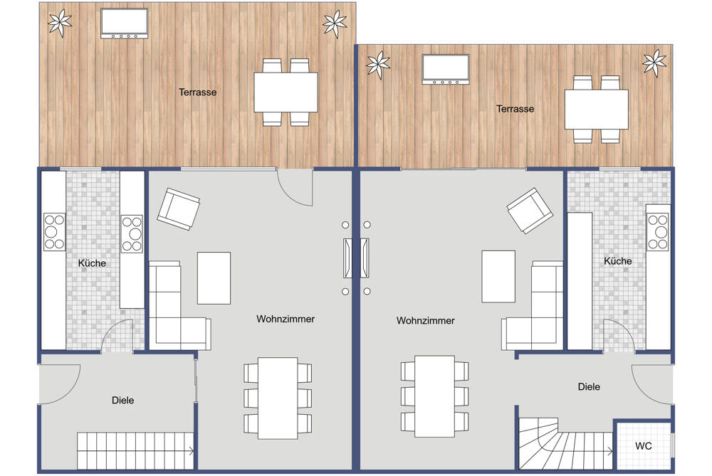
HINWEIS VORAB: Aus Gründen der Diskretion wünscht sich der Eigentümer hier an dieser Stelle nur wenige Angaben/ Bilder der Liegenschaft. Das ausführliche Exposé erhalten Sie gerne auf Anfrage! Diese einzigartige Immobilie in Solingen Aufderhöhe bietet die perfekte Gelegenheit für Handwerker, Arbeit und Wohnen optimal zu verbinden. Auf einem großzügigen Grundstück von 1.228 m² befindet sich ein Doppelhaus mit einer davorliegenden Halle, ideal für verschiedene Gewerbezwecke.Das Doppelhaus verfügt über eine Wohnfläche von ca. 202 m². Jede Einheit hat neben den separaten Eingängen ein eigenes Carport . Die Halle umfasst eine Nutzfläche von ca. 495 m² und ist derzeit als Werkstatt genutzt. Sie bietet dank der durchdachten Aufteilung vielseitige Nutzungsmöglichkeiten. Neben der Haupthalle gibt es eine Montagehalle, einen Abstellraum, einen Geräteraum, Umkleiden und Waschraum, einen Anschlussraum, einen Pufferspeicher sowie ein großzügiges Betriebsbüro zur Straßenseite hin. Diese umfangreichen Räumlichkeiten bieten ausreichend Platz für viele gewerbliche Aktivitäten und lassen sich flexibel an Ihre Bedürfnisse anpassen.Zusätzlich wurde das Doppelhaus um einen großzügigen Ausstellungsraum/ Atelier im Dachgeschoss erweitert, was zusätzliche Möglichkeiten für Präsentationen und Kundengespräche schafft.Wer Wohnen und Arbeiten an einem Ort vereinen möchte, der kauft und wohnt hier goldrichtig!Fordern Sie nun unter Angabe Ihrer vollständigen Kontaktdaten das detailierte Exposé an. Gerne bieten wir potenziellen Interessenten nach Bonitätsnachweis einen umfangreichen Besichtigungstermin an. Der Erwerb dieser Immobilie ist für den Käufer provisionsfrei!Wir freuen uns auf Ihre Kontaktaufnahme.
So funktioniert es
- Alle neuen Anzeigen matchen wir kostenlos mit Deinen Suchparametern.
- Passende Angebote senden wir Dir in einer E-Mail pro Tag.
- Du kannst auch verschiedene Suchen anlegen und Dich jederzeit abmelden. Mehr dazu
Wir haben soeben eine E-Mail mit Deinem Suchauftrag an Dich geschickt. – Klicke in dieser Mail auf den Bestätigungslink und schon geht's los. Prüfe ggf. auch Deinen Spamordner.
Es gab ein Problem beim Absenden Deiner E-Mail-Adresse. Bitte versuche es erneut.
WARNUNG: Bitte bestätige Deine E-Mail-Adresse, um regelmäßige Updates zu erhalten.