Kaufpreis 429.000 €
Zimmer 2
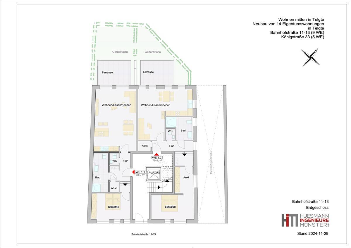
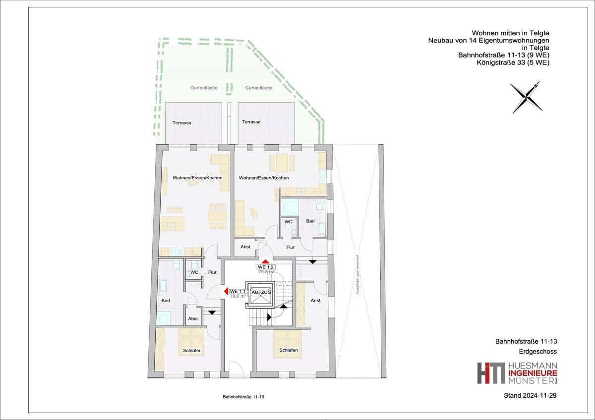
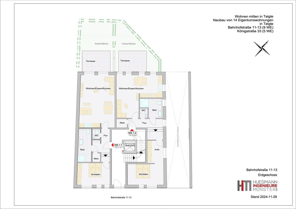
Größe 78 m²
48291 Telgte
Objektdaten
Veröffentlicht am: 7. Juli 2025
Energieausweis: Liegt bei der Besichtigung vor
Danke! Bitte bestätige Deine E-Mail-Adresse – wir haben Dir soeben eine Mail geschickt.
Es gab ein Problem beim Absenden. Bitte versuche es erneut.
Bitte bestätige Deine E-Mail-Adresse, um Updates zu erhalten.
Objektbeschreibung
Willkommen in Ihrer neuen Traumwohnung! Diese exklusive Neubauwohnung mit 2 Zimmern bietet Ihnen ein Zuhause, das perfekt auf Ihre Bedürfnisse zugeschnitten ist. Ideal für alle, die sich verkleinern und dennoch auf keine Annehmlichkeiten verzichten möchten.Ihr Rückzugsort mit KomfortDie Wohnung besticht durch ein durchdachtes Raumkonzept: Ein lichtdurchflutetes Wohnzimmer mit offener Küche schafft einen Ort zum Wohlfühlen und Genießen. Die Terrasse lädt zum Verweilen ein. Das Schlafzimmer erreichen Sie über 2 Stufen innerhalb der Wohnung. Ein zusätzlicher Abstellraum sorgt für praktische Aufbewahrungsmöglichkeiten, während das moderne Badezimmer und ein separates Gäste-WC den Wohnkomfort abrunden.Hochwertige Ausstattung, die begeistertDie Wohnung überzeugt durch exklusive Materialien: Echtholzparkett sorgt für ein warmes und natürliches Ambiente, während die moderne Sanitärausstattung Eleganz und Funktionalität vereint. Jedes Detail ist darauf ausgerichtet, Ihnen ein stilvolles und zeitgemäßes Wohngefühl zu bieten.Alles, was das Leben erleichtertZu Ihrer neuen Wohnung gehört ein Tiefgaragenstellplatz, sodass Sie Ihr Auto sicher und komfortabel parken können. Für Fahrräder - ob klassisch oder elektrisch - stehen spezielle Stellplätze mit E-Bike-Ladestationen bereit.Ein neues Kapitel in Ihrem LebenDiese Wohnung spricht all jene an, deren Kinder bereits ausgezogen sind und die sich nach einem kompakteren, aber dennoch hochwertigen Zuhause sehnen. Genießen Sie den Übergang in einen Lebensabschnitt, in dem Sie mehr Freiraum für Ihre eigenen Bedürfnisse haben.Lassen Sie sich von dieser einzigartigen Wohnung inspirieren - der perfekte Ort für einen Neustart mit Komfort und Stil!
So funktioniert es
- Alle neuen Anzeigen matchen wir kostenlos mit Deinen Suchparametern.
- Passende Angebote senden wir Dir in einer E-Mail pro Tag.
- Du kannst auch verschiedene Suchen anlegen und Dich jederzeit abmelden. Mehr dazu
Wir haben soeben eine E-Mail mit Deinem Suchauftrag an Dich geschickt. – Klicke in dieser Mail auf den Bestätigungslink und schon geht's los. Prüfe ggf. auch Deinen Spamordner.
Es gab ein Problem beim Absenden Deiner E-Mail-Adresse. Bitte versuche es erneut.
WARNUNG: Bitte bestätige Deine E-Mail-Adresse, um regelmäßige Updates zu erhalten.