Kaufpreis 999.500 €
Zimmer 5
Größe 127 m²
86916 Kaufering
Objektdaten
Veröffentlicht am: 8. Juli 2025
Energieausweis: Liegt bei der Besichtigung vor
Danke! Bitte bestätige Deine E-Mail-Adresse – wir haben Dir soeben eine Mail geschickt.
Es gab ein Problem beim Absenden. Bitte versuche es erneut.
Bitte bestätige Deine E-Mail-Adresse, um Updates zu erhalten.
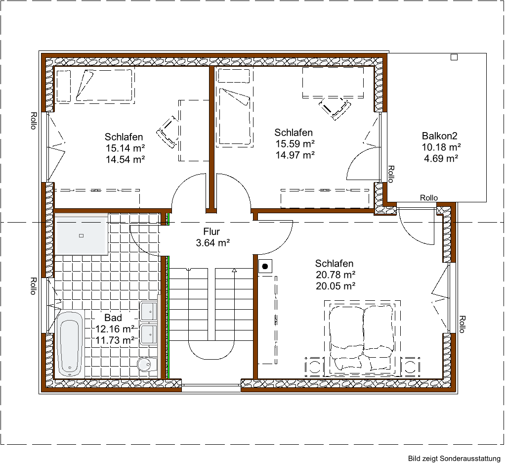
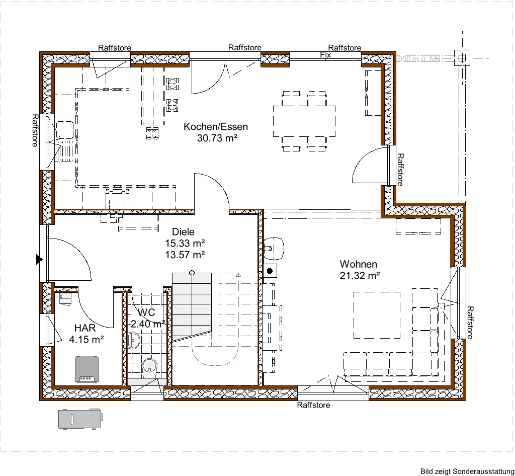
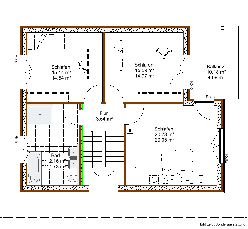
Objektbeschreibung
Bei dieser Planung handelt es sich um ein Holzhaus auf Bodenplatte. (Carport gegen Aufpreis)Dieses Beispielhaus wurde folgendermaßen ausgestattet. - Kombihaus (EG Ständerbauweise mit Putzfassade, OG Blockbau)- Bodenplatte- hochwertige Holz-/Alu Fenster mit Thermoplus 3-fach Verglasung, - elektrische Rolläden- Sichtbalkendecke im EG und Sichtdachstuhl im DG- Aufdachdämmung mit Tonziegeleindeckung- hochwertige Eichen Holztreppe - hochwertige Fliesen (45x90) in Bad und WC und HAR- Massivholz Innentüren- hochwertige Elektro- und Sanitärausstattung- Luft-/Wasser Wärmepumpe mit Fussbodenheizung- Lüftungsanlage mit Wärmerückgewinnung- u.v.m.-------------------------------------------Der Preis für dieses Beispielhaus beinhaltet:- das Haus in der angegebenen Ausstattung inkl. den Schätzkosten für die Bodenplatte - den Kaufpreis für das Grundstück inkl. den geschätzten Erschließungs-, und anteilige Abrisskosten des Altbestandes, sowie der Maklerprovision auf das Grundstück Mit folgende Kosten müssen Sie noch rechnen.- Hausanschluß- und Baunebenkosten- restliche Bodenbeläge (außer HAR, Bad und WC)- Außenanlagen- Erschließungsbeiträge Gemeinde----------------------------------------------Da es sich hier um eine Beispielplanung handelt, können wir das Haus auch nach Ihren Wünschen / Grundrissen anpassen.Garage / Carport und Keller gegen Aufpreis möglich.
So funktioniert es
- Alle neuen Anzeigen matchen wir kostenlos mit Deinen Suchparametern.
- Passende Angebote senden wir Dir in einer E-Mail pro Tag.
- Du kannst auch verschiedene Suchen anlegen und Dich jederzeit abmelden. Mehr dazu
Wir haben soeben eine E-Mail mit Deinem Suchauftrag an Dich geschickt. – Klicke in dieser Mail auf den Bestätigungslink und schon geht's los. Prüfe ggf. auch Deinen Spamordner.
Es gab ein Problem beim Absenden Deiner E-Mail-Adresse. Bitte versuche es erneut.
WARNUNG: Bitte bestätige Deine E-Mail-Adresse, um regelmäßige Updates zu erhalten.