Kaufpreis 387.486 €
Zimmer 2
Größe 58 m²
72138 Kirchentellinsfurt
Objektdaten
Veröffentlicht am: 8. Juli 2025
Energieausweis: Liegt bei der Besichtigung vor
Danke! Bitte bestätige Deine E-Mail-Adresse – wir haben Dir soeben eine Mail geschickt.
Es gab ein Problem beim Absenden. Bitte versuche es erneut.
Bitte bestätige Deine E-Mail-Adresse, um Updates zu erhalten.
Objektbeschreibung
Objektbeschreibung
Dieses moderne Neubauprojekt befindet sich in bester Lage von Kirchentellinsfurt und bietet seinen Bewohnern, ein einzigartiges Wohnerlebnis. Das elegante Apartmenthaus umfasst insgesamt 6 erstklassige Wohneinheiten, die durch ihre sorgfältige Planung und hochwertige Ausstattung begeistern. Besonders hervorzuheben ist die traumhafte Aussicht über den Neckar, die den Bewohnern täglich ein Gefühl von Ruhe und Weite schenkt.Zur hochwertigen Ausstattung gehört unter anderem edles Parkett in den Wohnbereichen, barrierefrei gestaltete Badezimmer mit modernen Sanitäreinrichtungen sowie eine schöne Loggia, die zum Entspannen im Freien einlädt. Für bequemen und sicheren Parkraum sorgt eine Garage. Zusätzlich ist das Haus mit einer modernen Wärmepumpe sowie einer Fußbodenheizung ausgestattet. Insgesamt bietet die Ausstattung eine gelungene Kombination aus Komfort, Nachhaltigkeit und modernem Design.Die Lage in Kirchentellinsfurt zeichnet sich durch ihre hervorragende Infrastruktur, die Nähe zur Natur und die ruhige Umgebung aus. Hier genießen Sie eine perfekte Kombination aus urbanem Komfort und naturnaher Erholung. Das Neubauprojekt ist somit ideal für Senioren, Familien, Paare oder Singles, die Wert auf Qualität, Komfort und eine traumhafte Aussicht legen. Ein Zuhause, das keine Wünsche offenlässt. Warten Sie nicht länger! Kontaktieren Sie uns und fordern Sie das Exposé mit Grundrissen an, um Ihre Traumwohnung rechtzeitig zu reservieren.Wir freuen uns auf Sie!
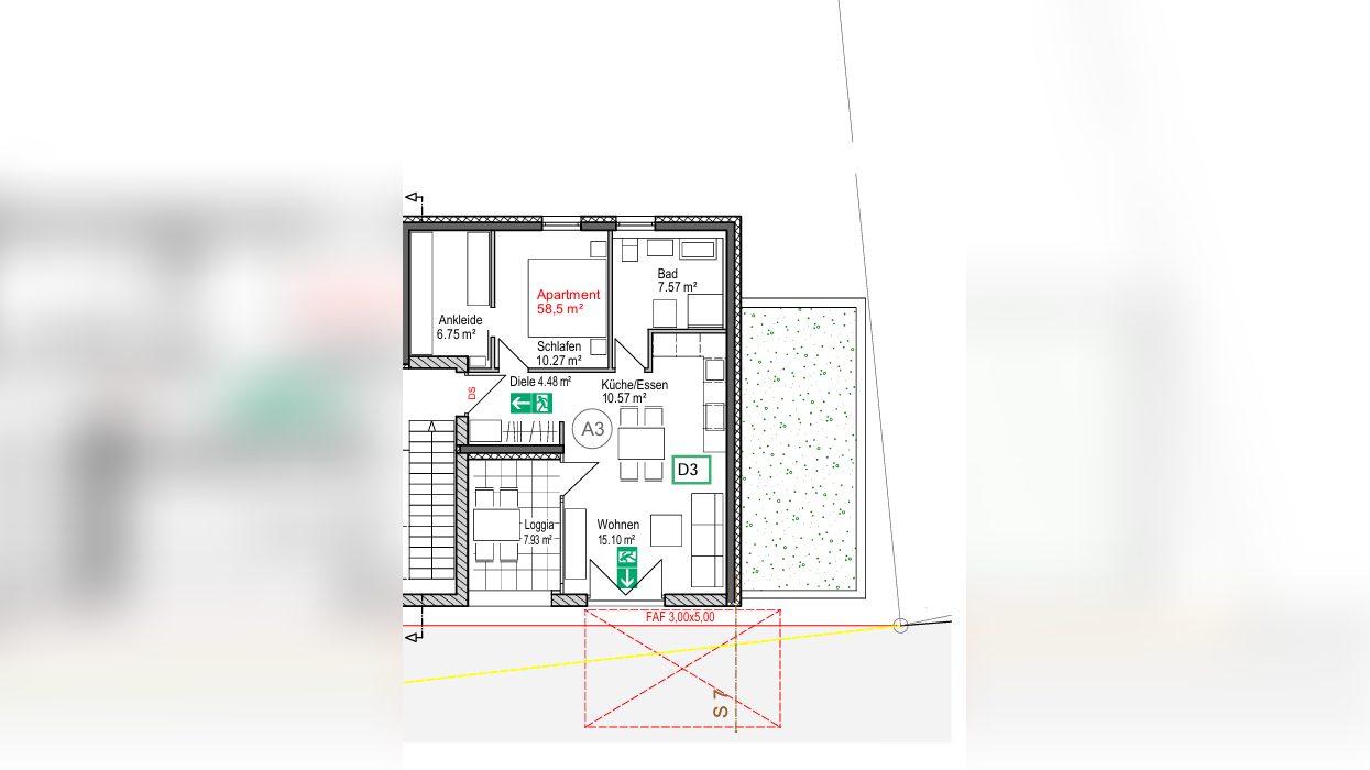
Raumaufteilung
Beim Betreten der Wohnung gelangen Sie zunächst in den Flur, der Sie zu verschiedenen Räumen führt. Links erwartet Sie das gemütliche Schlafzimmer, das durch eine angrenzende Ankleide mit viel Stauraum für Kleidung, Accessoires und persönliche Schätze begeistert – ein Ort der Ruhe und Ordnung. Geradeaus gelangen Sie in den großzügigen Wohn- und Essbereich mit offener Küche, der durch seine helle und freundliche Atmosphäre zum Verweilen und Entspannen einlädt. Vom Wohnbereich aus erreichen Sie das lichtdurchflutete Badezimmer mit moderner Ausstattung, das Komfort und Stil perfekt vereint. Direkt vom Wohnzimmer aus gelangen Sie auf die bezaubernde Loggia, die viel Platz für gemütliche Sitzgelegenheiten oder einen Esstisch im Freien bietet. Hier können Sie wundervolle Stunden im Freien genießen und den Alltag hinter sich lassen, während Ihr Blick über den Neckar ins Grüne schweift.
So funktioniert es
- Alle neuen Anzeigen matchen wir kostenlos mit Deinen Suchparametern.
- Passende Angebote senden wir Dir in einer E-Mail pro Tag.
- Du kannst auch verschiedene Suchen anlegen und Dich jederzeit abmelden. Mehr dazu
Wir haben soeben eine E-Mail mit Deinem Suchauftrag an Dich geschickt. – Klicke in dieser Mail auf den Bestätigungslink und schon geht's los. Prüfe ggf. auch Deinen Spamordner.
Es gab ein Problem beim Absenden Deiner E-Mail-Adresse. Bitte versuche es erneut.
WARNUNG: Bitte bestätige Deine E-Mail-Adresse, um regelmäßige Updates zu erhalten.