Objektdaten
Objektbeschreibung
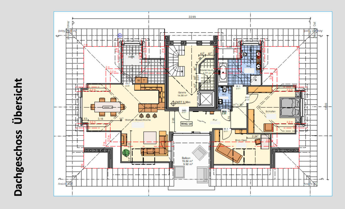
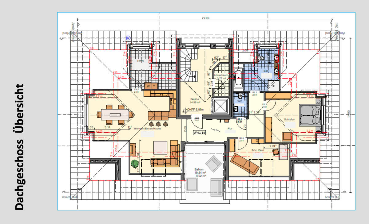
Diese hochwertig ausgestattete Penthousewohnung vereint modernen Wohnkomfort mit einer nachhaltigen Bauweise und durchdachter, barrierefreier Architektur. Ein ideales Zuhause für Menschen, die Wert auf stilvolles Wohnen, Umweltbewusstsein und höchste Lebensqualität legen.Das Gebäude entsteht nach dem strengen KfW-55-Energiestandard. Eine hervorragend gedämmte Gebäudehülle sowie eine klimafreundliche Luftwärmepumpe sorgen für niedrige Betriebskosten und machen das Wohnen nicht nur komfortabel, sondern auch zukunftssicher.Die Wohnung überzeugt mit zwei lichtdurchfluteten Schlafzimmern, einem großzügigen Wohn- und Essbereich mit offener Küche sowie einem geschmackvoll gestalteten Bad. Ein separates Gäste-WC bietet zusätzlichen Komfort - besonders praktisch im Alltag und bei Gästen. Der barrierefreie Zugang über den Aufzug ermöglicht komfortables Wohnen auf einer Ebene - ganz ohne Hindernisse.Für eine angenehme Wohlfühlatmosphäre sorgt eine Fußbodenheizung mit einzeln regulierbaren Thermostaten in jedem Raum. Dreifach verglaste Kunststofffenster in elegantem Anthrazit mit elektrischen Außenrollläden bieten hervorragenden Wärme- und Schallschutz. Eine schallgedämmte Wohnungseingangstür schafft zusätzliche Ruhe und Privatsphäre.Ein besonderes Highlight ist der großzügige Balkon in sonniger Süd-Ost-Lage - ideal zum Entspannen, Genießen und Abschalten. Ein eigener PKW-Stellplatz sowie ein praktischer Außenabstellraum bieten zusätzlichen Komfort und Stauraum für Alltag und Freizeit.Die Innenausstattung lässt sich im Rahmen der Baubeschreibung individuell gestalten - von Bodenbelägen über Sanitärobjekte bis hin zur Wandgestaltung - hier können Sie Ihre Wohnideen verwirklichen.Ähnliche Angebote
So funktioniert es
- Alle neuen Anzeigen matchen wir kostenlos mit Deinen Suchparametern.
- Passende Angebote senden wir Dir in einer E-Mail pro Tag.
- Du kannst auch verschiedene Suchen anlegen und Dich jederzeit abmelden. Mehr dazu




