Objektdaten
Objektbeschreibung
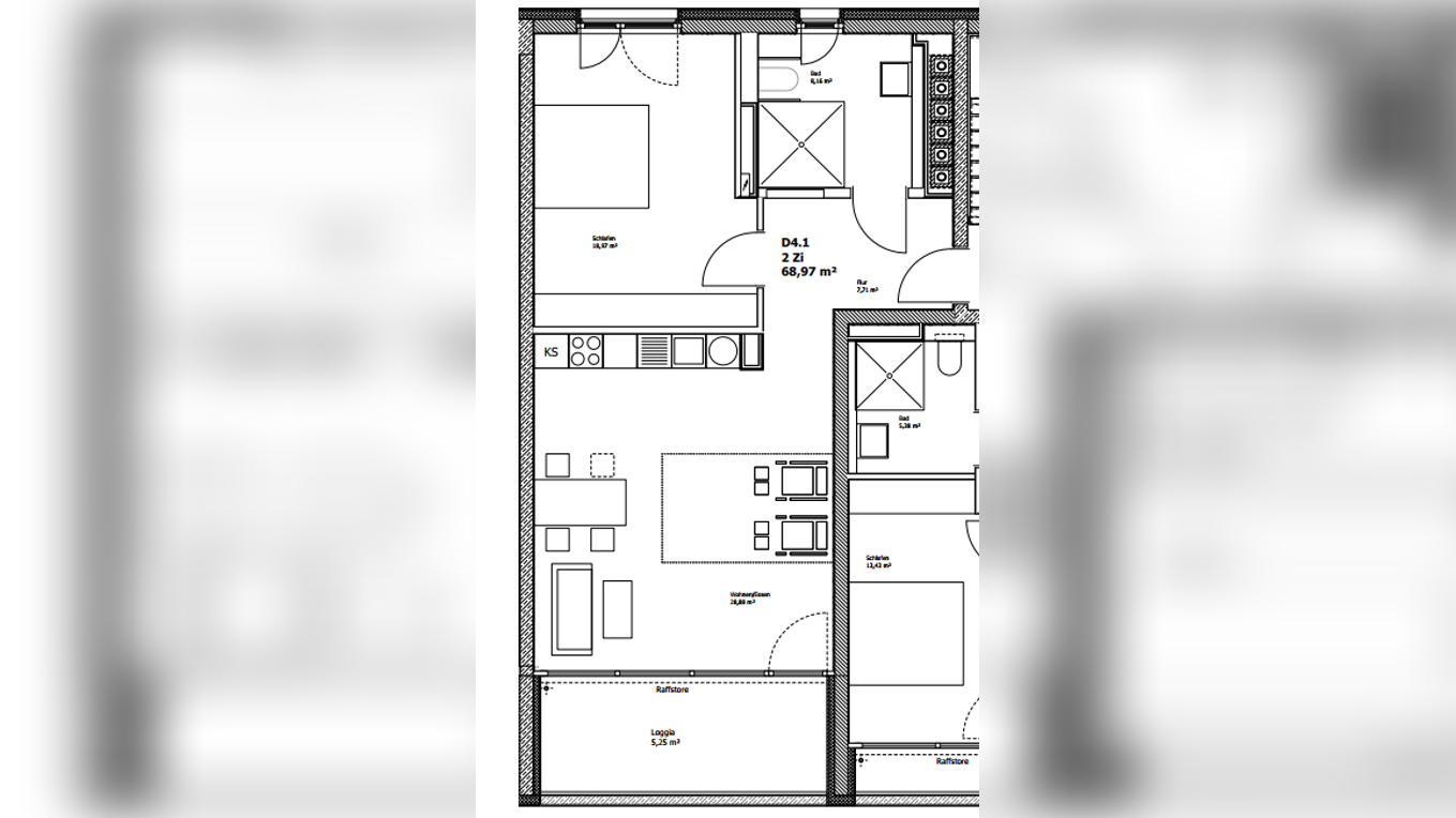
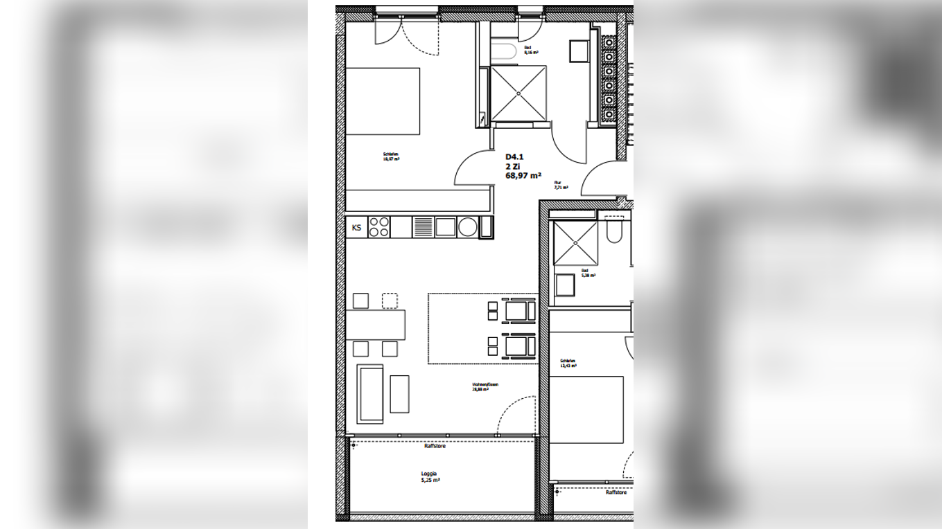
Die rollstuhlgerechte Wohnung ist Teil des betreuten Wohnens im Haus Ravensberg. Das Konzept "betreutes Wohnen" bedeutet, dass pflegebedürftige Menschen (jung & alt) selbständig in den Wohnungen leben und durch einen Pflegedienst betreut werden. Serviceleistungen des betreuten Wohnens werden über einen separaten Vertrag durch einen Pflegedienst erbracht. Der Hausnotruf wird zentral zur Verfügung gestellt und ist rund um die Uhr besetzt. Ein sehr großzügiger Gemeinschaftsraum (118 m²) steht im Erdgeschoss für alle Mieter des betreuten Wohnens zur Mitbenutzung zur Verfügung. Dieser dient unter anderem als Treffpunkt für die Mieter, für gemeinsame Veranstaltungen und Angebote des Pflegedienstes.Die helle, rollstuhlgerechte Wohnung befindet sich in dem Klinkerneubau in der Steinstraße 27, Konstanz in Laufnähe des Bahnhofs Petershausen. Das Haus ist ein Neubau mit KfW55- Standard und moderner Infrastruktur. So sind z.B. Glasfaseranschluss und Aufzug vorhanden. Separates Kellerabteil sowie Fahrradabstellraum sind vorhanden. Ein Tiefgaragenstellplatz für Autos inkl. E-Lademöglichkeit am Stellplatz sowie separate Fahrradstellplätze stehen zur Anmietung zur Verfügung.Das Gebäude ist derzeit in der Fertigstellung. Erstbezug ist für September 2025 geplant.Ähnliche Angebote
So funktioniert es
- Alle neuen Anzeigen matchen wir kostenlos mit Deinen Suchparametern.
- Passende Angebote senden wir Dir in einer E-Mail pro Tag.
- Du kannst auch verschiedene Suchen anlegen und Dich jederzeit abmelden. Mehr dazu





