Kaufpreis 365.000 €
Zimmer 5
Größe 118 m²
54662 Speicher
Objektdaten
Veröffentlicht am: 26. Juli 2025
Baujahr: 1920
Energieausweis: Liegt bei der Besichtigung vor
Danke! Bitte bestätige Deine E-Mail-Adresse – wir haben Dir soeben eine Mail geschickt.
Es gab ein Problem beim Absenden. Bitte versuche es erneut.
Bitte bestätige Deine E-Mail-Adresse, um Updates zu erhalten.
Objektbeschreibung
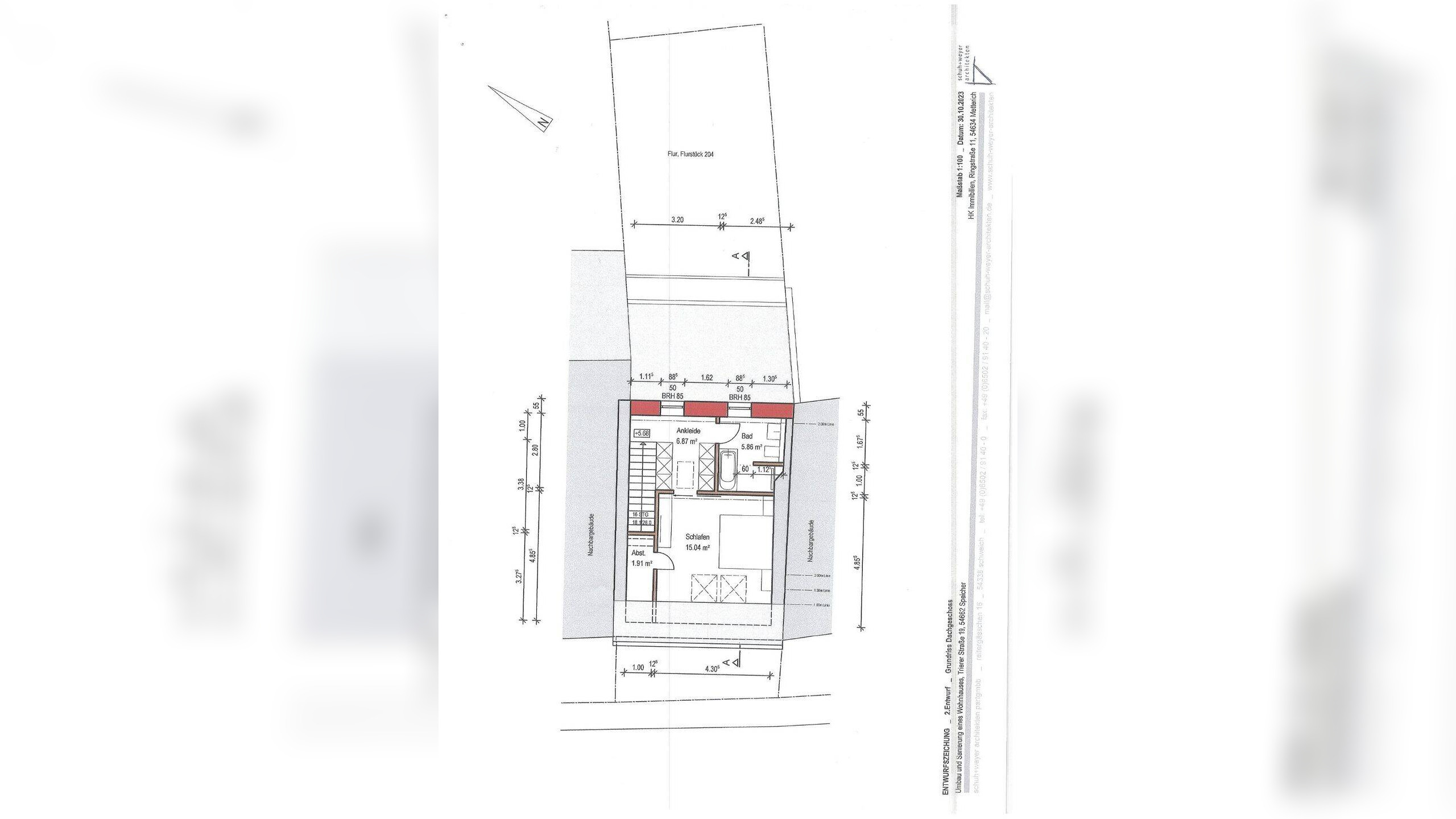
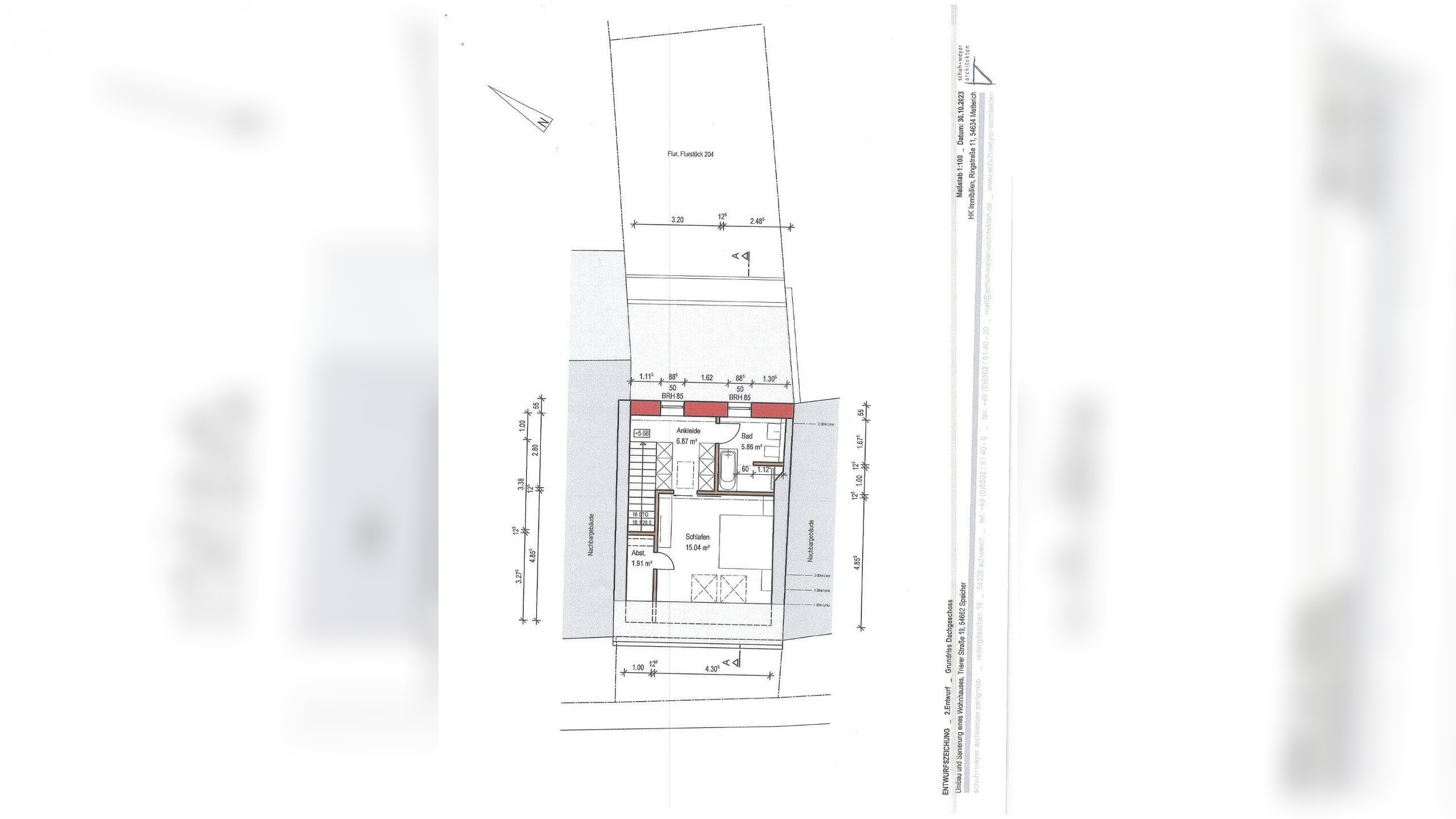
Dieses massive Reihenhaus befindet sich im Herzen von Speicher und wird aktuell von einem regionalem Bauunternehmer kernsaniert. Nach Abschluss der energetischen Kernsanierung wird die Immobilie ein Niedrigenergiehaus sein und den Neubaustandard KfW 55 erreichen.Geplant sind zwei separate Wohneinheiten, die eine gesamte Wohnfläche von ca. 118,77 m² haben. Die kleinere Wohnung, ein 1-Zimmer Apartment mit Bad, befindet sich im Erdgeschoss. Sie hat ein Wohnfläche von ca. 21,78 m². Die größere Wohnung erstreckt sich über drei Etagen und verfügt über ein Schlafzimmer, ein offenen Ess-und Wohnbereich mit angrenzender Küche, ein Badezimmer, ein Ankleidezimmer sowie ein Gäste-WC. Außerdem befindet sich im 1. Stockwerk der Zugang zur schönen Terrasse hinter dem Haus.Da die Kernsanierung noch im Gange ist, können Sie je nach Fortschritt noch eigene Wünsche einfließen lassen.
So funktioniert es
- Alle neuen Anzeigen matchen wir kostenlos mit Deinen Suchparametern.
- Passende Angebote senden wir Dir in einer E-Mail pro Tag.
- Du kannst auch verschiedene Suchen anlegen und Dich jederzeit abmelden. Mehr dazu
Wir haben soeben eine E-Mail mit Deinem Suchauftrag an Dich geschickt. – Klicke in dieser Mail auf den Bestätigungslink und schon geht's los. Prüfe ggf. auch Deinen Spamordner.
Es gab ein Problem beim Absenden Deiner E-Mail-Adresse. Bitte versuche es erneut.
WARNUNG: Bitte bestätige Deine E-Mail-Adresse, um regelmäßige Updates zu erhalten.