50 Meter zum Paul-Lincke-Ufer mitten im Kreuzberger Kiez

Kaufpreis 495.000 €
Zimmer 3
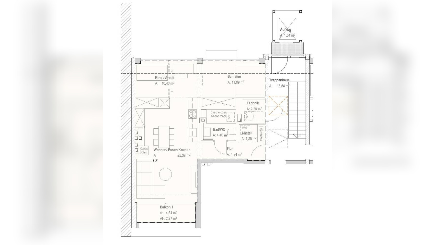
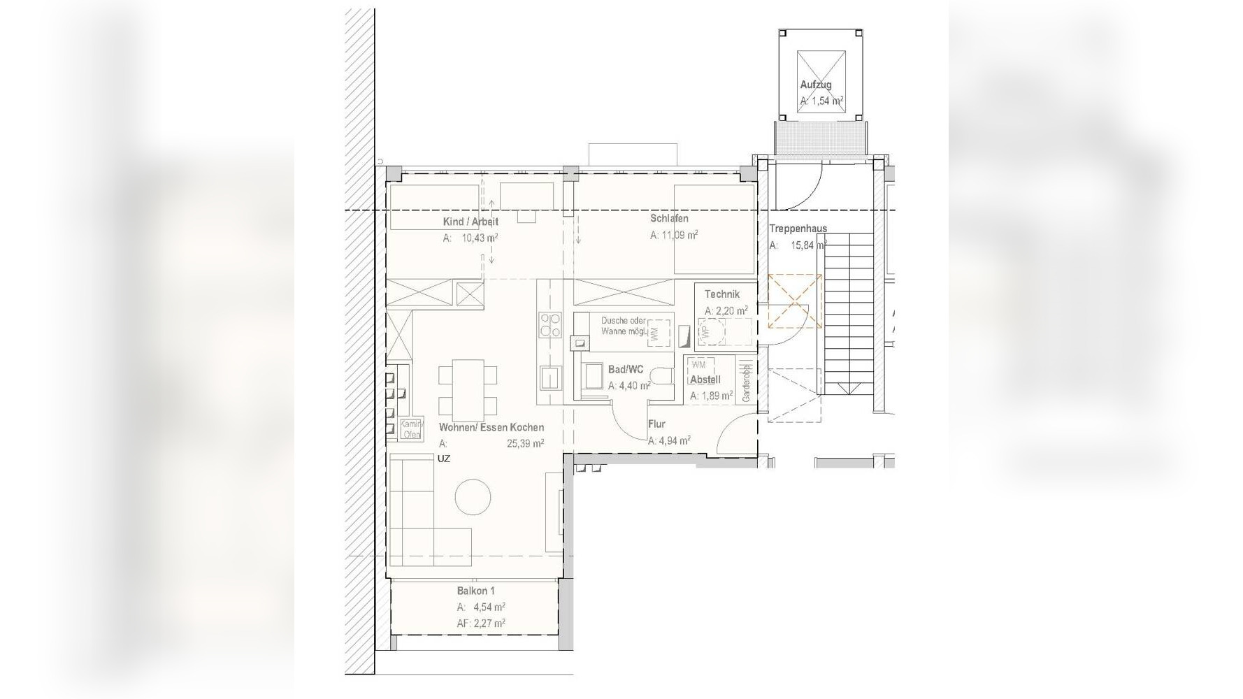
Größe 60 m²
10999 Berlin

Objektdaten

Veröffentlicht am: 27. Juli 2025
Baujahr: 2025
Energieausweis: Liegt bei der Besichtigung vor
Neu

Über ähnliche Angebote direkt informiert werden

  • Objektbeschreibung

    Entsprechend der vorhandenen Baugenehmigung wird das Dachaufgestockt, sodass ein 5. und ein 6. Obergeschoss mit jeweils drei neuenWohnungen entstehen. Es handelt sich um zwei 2-Zimmer-Wohnungen undvier 3-Zimmer-Wohnungen mit gehobenem Ausbaustandard, die über einenAufzug erreichbar sind.Die Beheizung und Warmwasserbereitung erfolgt mit einer Wärmepumpe inKombination mit einer Photovoltaik-Anlage für eine ausgezeichnete Energieeffizienz.Zur Ausstattung zählen Fußbodenheizung, Parkett, eine Klimaanlage zurKühlung und Lüftung, hochwertige Fliesen sowie 3-fach-verglaste Fenster fürhohen Wärme- und Schallschutz.Da der Ausbau erst beginnt, ist das Einbringen von individuellen Gestaltungswünschen noch möglich.

    Ähnliche Angebote

    So funktioniert es

    • Alle neuen Anzeigen matchen wir kostenlos mit Deinen Suchparametern.
    • Passende Angebote senden wir Dir in einer E-Mail pro Tag.
    • Du kannst auch verschiedene Suchen anlegen und Dich jederzeit abmelden. Mehr dazu
    Nach oben scrollen