Objektdaten
Objektbeschreibung
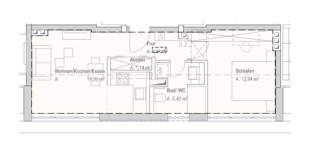
Entsprechend der vorhandenen Baugenehmigung wird das Dachaufgestockt, sodass ein 5. und ein 6. Obergeschoss mit jeweils drei neuenWohnungen entstehen. Es handelt sich um zwei 2-Zimmer-Wohnungen undvier 3-Zimmer-Wohnungen mit gehobenem Ausbaustandard, die über einenAufzug erreichbar sind.Die Beheizung und Warmwasserbereitung erfolgt mit einer Wärmepumpe inKombination mit einer Photovoltaik-Anlage für eine ausgezeichnete Energieeffizienz.Zur Ausstattung zählen Fußbodenheizung, Parkett, eine Klimaanlage zurKühlung und Lüftung, hochwertige Fliesen sowie 3-fach-verglaste Fenster fürhohen Wärme- und Schallschutz.Da der Ausbau erst beginnt, ist das Einbringen von individuellen Gestaltungswünschen noch möglich.Ähnliche Angebote
So funktioniert es
- Alle neuen Anzeigen matchen wir kostenlos mit Deinen Suchparametern.
- Passende Angebote senden wir Dir in einer E-Mail pro Tag.
- Du kannst auch verschiedene Suchen anlegen und Dich jederzeit abmelden. Mehr dazu




