Objektdaten
Objektbeschreibung
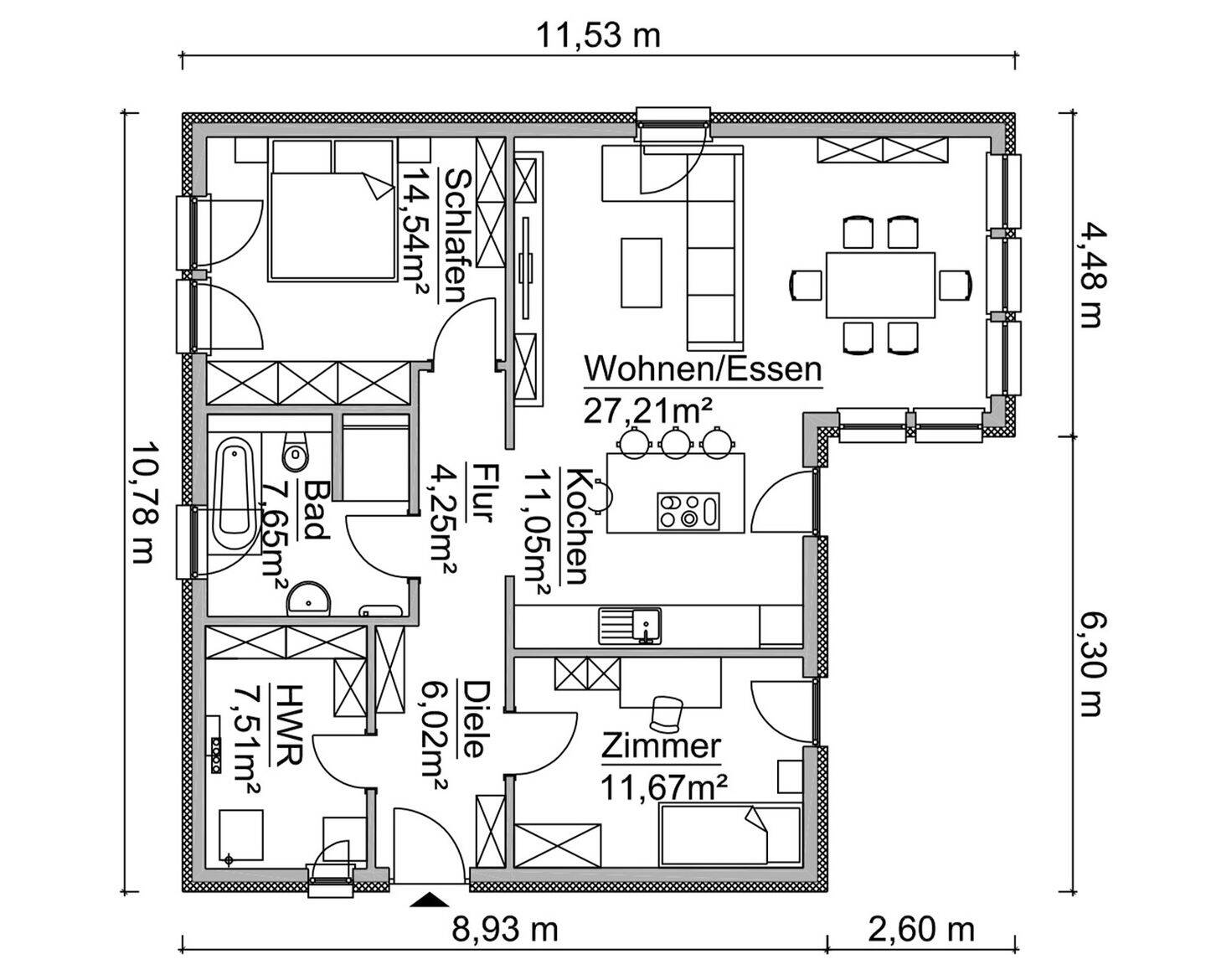
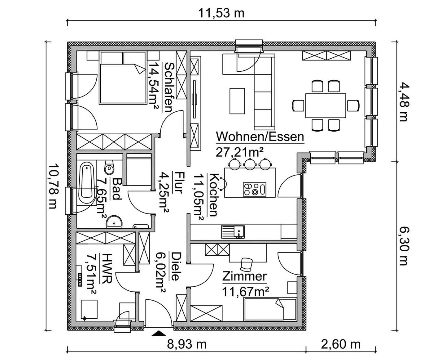
Beim SH 90 WB vergrößert der bodentief verglaste Erker den Wohnraum, der für Küche, Wohnlandschaft und Essplatz großzügig gestaltet wurde. Über den seitlichen Hauseingang gelangen Sie zuerst in eine Diele, wo sich Hauswirtschaftsraum und ein Zimmer gegenüber liegen. Danach befindet sich der eigentliche Flur, welcher Schlafzimmer, Bad und Wohnbereich erschließt.Ähnliche Angebote
So funktioniert es
- Alle neuen Anzeigen matchen wir kostenlos mit Deinen Suchparametern.
- Passende Angebote senden wir Dir in einer E-Mail pro Tag.
- Du kannst auch verschiedene Suchen anlegen und Dich jederzeit abmelden. Mehr dazu




