Objektdaten
Objektbeschreibung
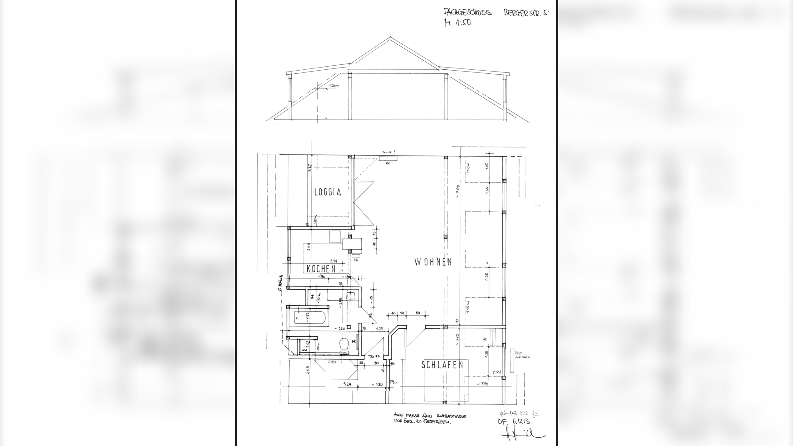
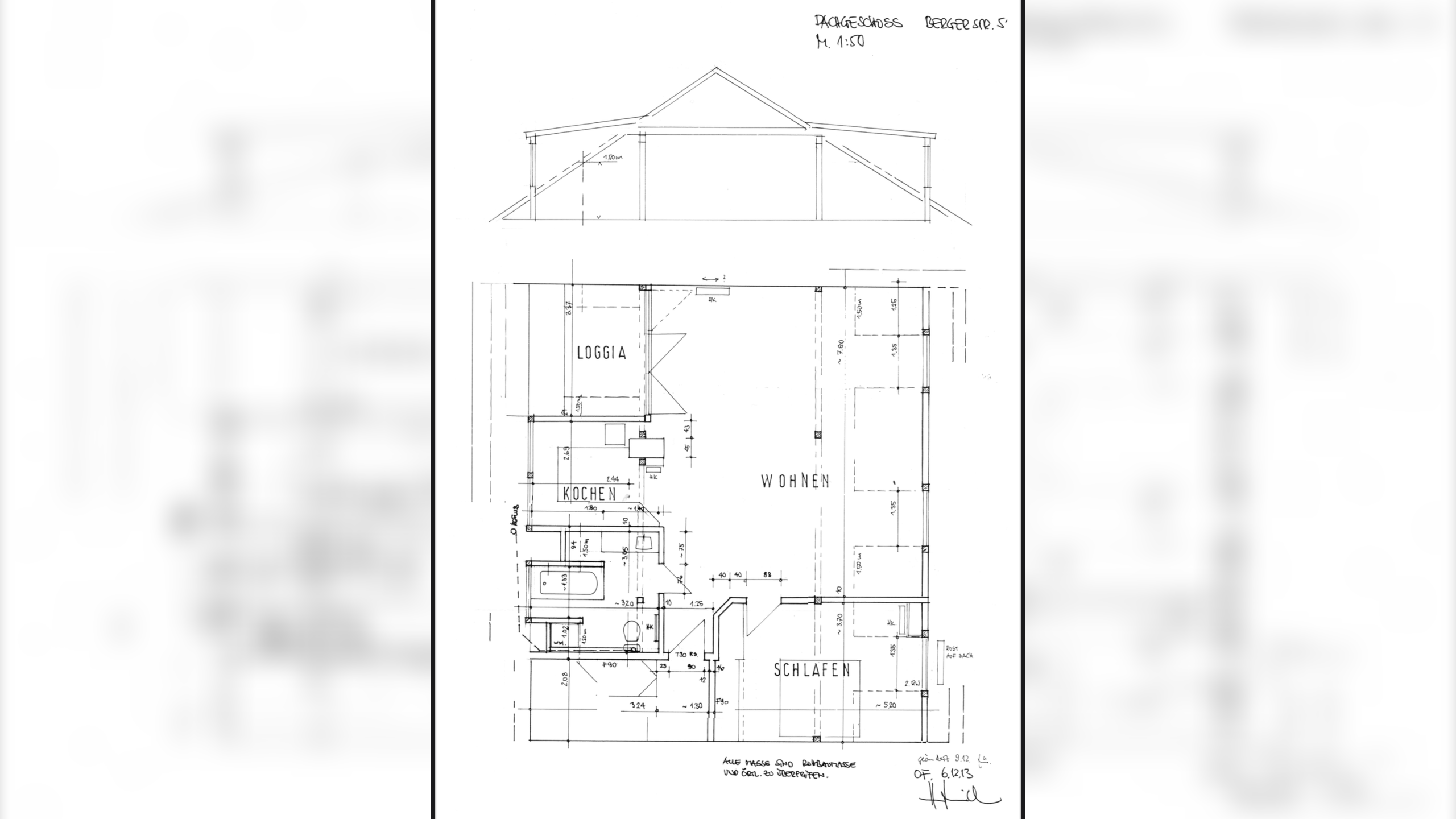
Objektbeschreibung ?? LOFT-Dachgeschosswohnung in der Berger Straße – Großzügig. Lichtdurchflutet. Stilvoll.Adresse: 60316 Frankfurt am Main – Untere Berger Straße, Nähe MerianplatzZimmer: 3Wohnfläche: ca. 85m²Kaltmiete: 2490?€Nebenkosten: 200?€Gesamtmiete: 2.690?€Kaution: 3 MonatskaltmietenBezugsfrei ab: Sofort / nach Absprache•Edles Eichenparkett als Dielenboden•Moderne Einbauküche inklusive•3-fach isolierverglaste Fenster•Garage optional für 150?€/Monat•Möblierung & Einbauschränke auf Wunsch: +100?€/Monat•Gartenmitbenutzung im begrünten Innenhof•Hinweis: Kein Aufzug (5. OG)? Raumaufteilung ? Highlights dieser Wohnung•Hochwochwertigem DG-Ausbau in einem stilvollen, denkmalgeschützten Altbau•5. Obergeschoss, Loft-Charakter mit beeindruckendem Grundriss•Großer Wohn-/Essbereich mit ca. 40?m² – lichtdurchflutet durch große Fenster•3 Zimmer – flexibel nutzbar als Wohn-, Arbeits- und Schlafzimmer•Tageslichtbad mit Badewanne•Großer Balkon / Loggia mit Skylineblick und Sicht bis zum FeldbergÄhnliche Angebote
So funktioniert es
- Alle neuen Anzeigen matchen wir kostenlos mit Deinen Suchparametern.
- Passende Angebote senden wir Dir in einer E-Mail pro Tag.
- Du kannst auch verschiedene Suchen anlegen und Dich jederzeit abmelden. Mehr dazu





