Objektdaten
Objektbeschreibung
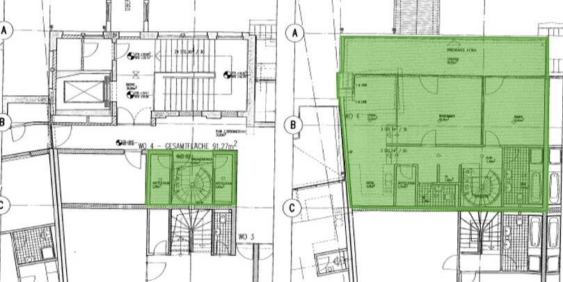
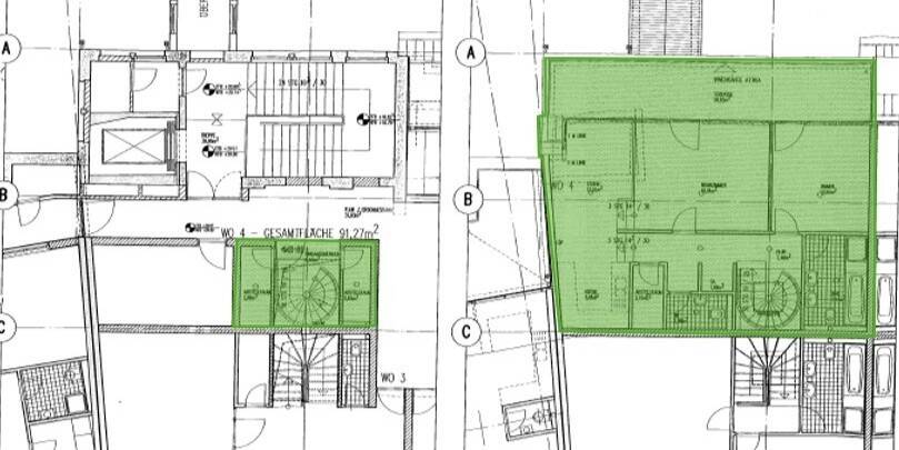
Die lichtdurchflutete Maisonette-Wohnung befindet sich im 5. und 6. Obergeschoss eines Wohn- und Geschäftshauses in Stuttgart-Mitte, direkt im Bosch Areal. Die Wohnung ist bequem über den Personenaufzug zu erreichen und bietet einige Highlights wie zum Beispiel einen großen, offenen Wohn- und Essbereich, eine vorhandene Einbauküche und einen großzügigen Balkon. Im Eingangsbereich der Wohnung findet sich genug Platz für eine Garderobe, zwei Abstellräume bieten ausreichend Stauraum. Über die Wendeltreppe gelangt man in den oberen Bereich der Wohnung. Die obere Etage verfügt über ein Badezimmer das mit Dusche und Badewanne ausgestattet ist sowie über ein Gäste-WC. Das Schlafzimmer bietet ebenso wie das Wohnzimmer Zutritt zum großzügigen Balkon mit Blick bis zum Fernsehturm. Hier lassen sich gemütliche Abende mit der Familie und Freunden verbringen. Ein PKW-Stellplatz kann in der Tiefgarage der Liederhalle direkt gegenüber angemietet werden.Ähnliche Angebote
So funktioniert es
- Alle neuen Anzeigen matchen wir kostenlos mit Deinen Suchparametern.
- Passende Angebote senden wir Dir in einer E-Mail pro Tag.
- Du kannst auch verschiedene Suchen anlegen und Dich jederzeit abmelden. Mehr dazu





