Objektdaten
Objektbeschreibung
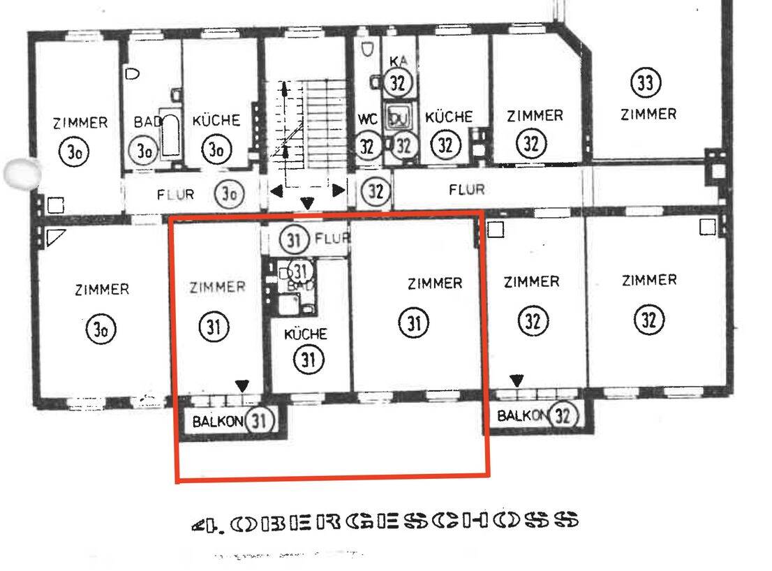
Diese gepflegte 2-Zimmer-Wohnung auf der Südseite des Hauses verbindet urbanes Leben mit angenehmer Wohnqualität. Die großen Fenster und der Balkon zur sonnigen Straßenseite schenken den Räumen viel Licht und eine freundliche Atmosphäre. Mit liebevollen Details und einem klaren, harmonischen Charakter ist sie ein Zuhause mit Herz – mitten in Charlottenburg.Ähnliche Angebote
So funktioniert es
- Alle neuen Anzeigen matchen wir kostenlos mit Deinen Suchparametern.
- Passende Angebote senden wir Dir in einer E-Mail pro Tag.
- Du kannst auch verschiedene Suchen anlegen und Dich jederzeit abmelden. Mehr dazu




