Kaufpreis 455.000 €
Zimmer 5
Größe 130 m²
94405 Landau a.d. Isar
Objektdaten
Veröffentlicht am: 11. August 2025
Energieausweis: Liegt bei der Besichtigung vor
Danke! Bitte bestätige Deine E-Mail-Adresse – wir haben Dir soeben eine Mail geschickt.
Es gab ein Problem beim Absenden. Bitte versuche es erneut.
Bitte bestätige Deine E-Mail-Adresse, um Updates zu erhalten.
Objektbeschreibung
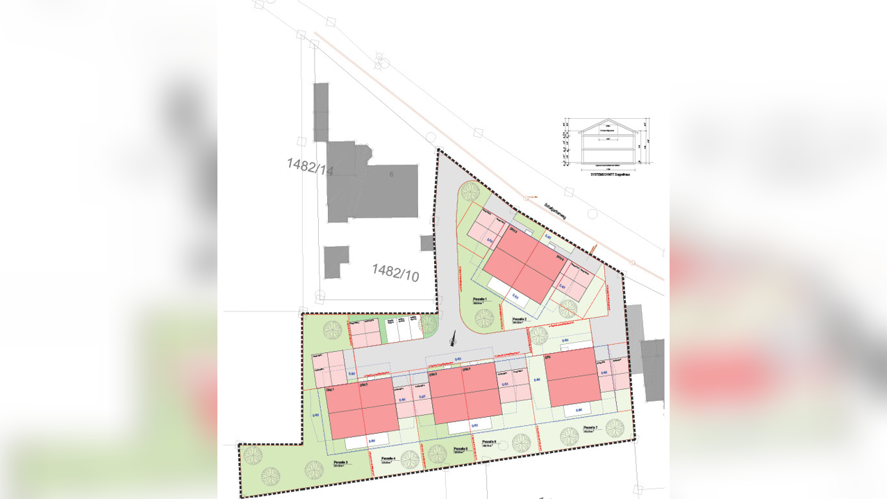
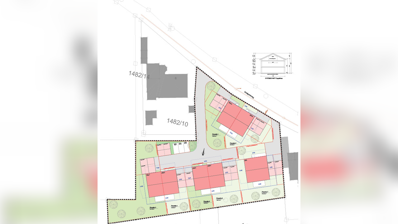
In erstklassiger Lage von Landau an der Isar entsteht ein neues, stilvolles Wohnquartier mit sorgfältig geplanten Einfamilienhäusern sowie modernen Doppelhaushälften. Hier vereinen sich zeitgemäße Architektur, hohe Bauqualität und ein zukunftsorientiertes Energiekonzept - ideal für alle, die Wohnen mit Komfort, Nachhaltigkeit und Lebensqualität verbinden möchten.Die Häuser verfügen über eine großzügige Wohnfläche von ca. 130 m², verteilt auf fünf gut durchdachte Zimmer. Jedes Objekt bietet damit ausreichend Raum für individuelle Wohnkonzepte - ob für Paare, Familien oder Menschen mit dem Wunsch nach einem flexiblen Homeoffice-Bereich.Die Grundstücksgrößen reichen von 223 m² bis 450 m² und schaffen so die perfekte Balance zwischen kompakter Pflegeleichtigkeit und großzügiger Entfaltungsmöglichkeit im eigenen Garten.Ein besonderer Vorteil: Dank der engen Zusammenarbeit mit dem Bauträger können Grundrisse individuell angepasst und die Ausstattung nach Ihren persönlichen Vorstellungen gestaltet werden. Ob moderne Designküche, edle Bodenbeläge oder stilvolle Bäder - Sie entscheiden, wie Ihr neues Zuhause aussieht.Alle Objekte erfüllen selbstverständlich den KfW-40-Standard. Das bedeutet für Sie nicht nur ein Höchstmaß an Energieeffizienz und niedrigen Verbrauchskosten, sondern auch die Möglichkeit, von attraktiven staatlichen Förderungen zu profitieren.Dieses Neubauprojekt steht für ein nachhaltiges, komfortables und zukunftssicheres Wohnen in einer Lage, die gleichermaßen urban und naturnah ist. Landau an der Isar überzeugt mit hervorragender Infrastruktur, kurzen Wegen zu Einkaufsmöglichkeiten, Schulen und Freizeitangeboten - und gleichzeitig mit idyllischer Umgebung, die zur Erholung einlädt.Fazit: Hier entsteht nicht nur Wohnraum - hier entsteht ein Lebensgefühl.Sichern Sie sich schon jetzt Ihr Traumhaus und gestalten Sie die Zukunft Ihres Wohnens aktiv mit. Wir freuen uns auf Ihre Anfrage und beraten Sie gerne persönlich!HABE ICH IHR INTERESSE GEWECKT?Dann zögern Sie nicht mich zu kontaktieren! Gernebeantworte ich Ihnen detailliertere Fragen und führemit Ihnen eine Besichtigung durch.Ich freue mich auf Ihren Anruf: 0170/7391722
So funktioniert es
- Alle neuen Anzeigen matchen wir kostenlos mit Deinen Suchparametern.
- Passende Angebote senden wir Dir in einer E-Mail pro Tag.
- Du kannst auch verschiedene Suchen anlegen und Dich jederzeit abmelden. Mehr dazu
Wir haben soeben eine E-Mail mit Deinem Suchauftrag an Dich geschickt. – Klicke in dieser Mail auf den Bestätigungslink und schon geht's los. Prüfe ggf. auch Deinen Spamordner.
Es gab ein Problem beim Absenden Deiner E-Mail-Adresse. Bitte versuche es erneut.
WARNUNG: Bitte bestätige Deine E-Mail-Adresse, um regelmäßige Updates zu erhalten.