Freudenburg | Residenz Panoramablick | 3-Zimmer-Wohnung | Dachterrasse | WE6

Kaufpreis 399.000 €
Zimmer 3
Größe 95 m²
54450 Freudenburg

Objektdaten

Veröffentlicht am: 14. August 2025
Baujahr: 2023
Energieausweis: Liegt bei der Besichtigung vor
  • Objektbeschreibung

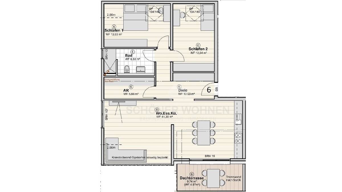
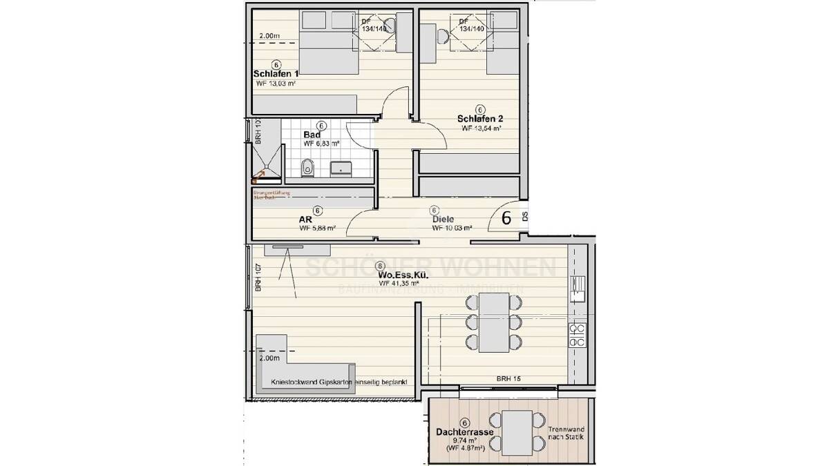
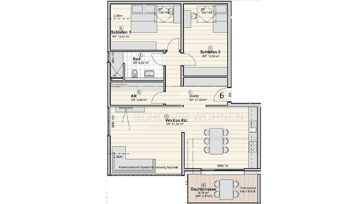
    Sie suchen keine Immobilie von der Stange sondern etwas Besonderes und hochwertiger ausgestattet, als man es gewöhnlich vorfindet? Dann sind Sie hier richtig.Werfen Sie dazu gerne einen Blick auf die Ausstattung.Die Hausbezeichnung "Residenz Panorama Blick" ist nicht nur so daher gesagt, denn man hat einen unverbaubaren Weitblick von Balkon, Loggia oder der Terrasse aus.Aufteilung:Flur, offener Wohn-/Essbereich mit Küche, 2 Schlafzimmer, Bad, Abstellraum, Dachterrasse, KellerraumDie Summe aus Wohn- und Nutzfläche beträgt ca. 98,80 qm.Im hinteren Teil des 7-Parteien-Hauses wird ein kleiner Garten angelegt, welcher über einen allgemeinen, hinteren Ausgang im Treppenhaus zu erreichen ist.Hier wird ein Platz erstellt, um z. B. eine Wäschespinne, Schaukel oder eine Sitzgruppe als Treffpunkt des gemeinsamen Zusammenseins aufzustellen.An die Liebhaber der Elektro-Mobilität wurde natürlich auch gedacht, denn an jedem Parkplatz ist ein Wallbox-Anschluss vorbereitet. Aktuell ist die Wohnung rentabel vermietet.
    Nach oben scrollen