Kaufpreis 272.660 €
Zimmer 4
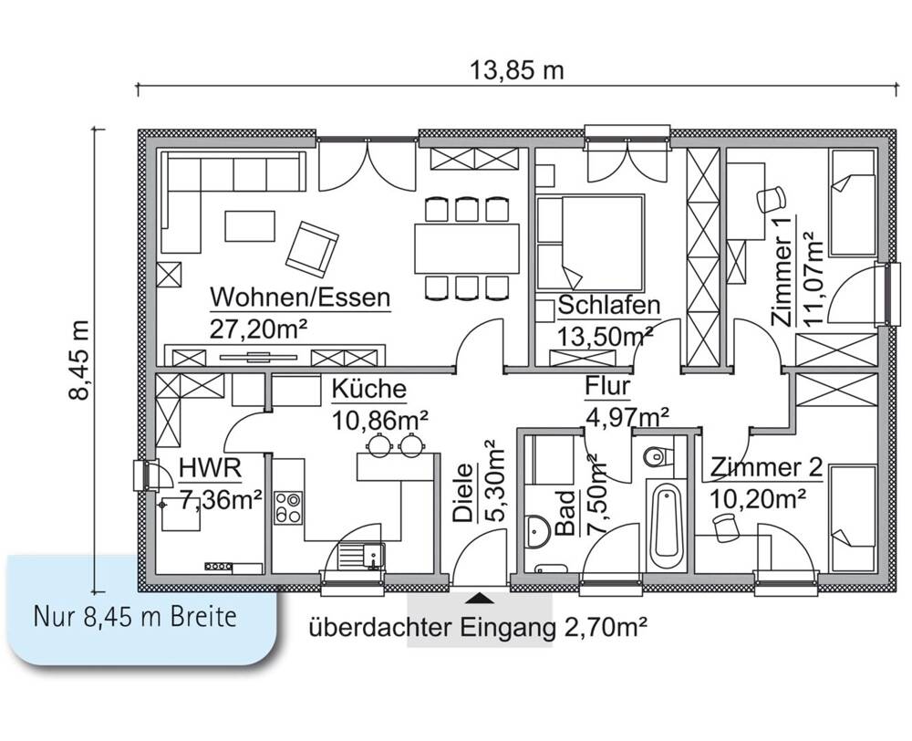
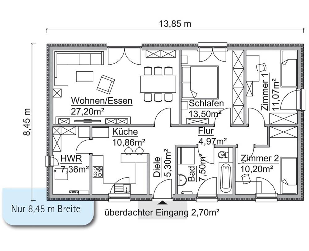
Größe 100 m²
04600 Altenburg
Objektdaten
Veröffentlicht am: 15. August 2025
Energieausweis: Liegt bei der Besichtigung vor
Danke! Bitte bestätige Deine E-Mail-Adresse – wir haben Dir soeben eine Mail geschickt.
Es gab ein Problem beim Absenden. Bitte versuche es erneut.
Bitte bestätige Deine E-Mail-Adresse, um Updates zu erhalten.
Objektbeschreibung
Ein Zuhause für Ihre Familie - mit ScanHaus sicher, schnell und sorgenfrei gebautFür viele junge Familien ist der Bau eines Einfamilienhauses mehr als ein Bauprojekt - es ist der Wunsch nach einem Zuhause, das Raum für die Kinder, einen Garten und Stabilität für die Zukunft bietet. Doch gerade, wenn es das erste Eigenheim ist, kann der Weg dorthin herausfordernd erscheinen.Wir verstehen Ihre Sorgen: Die Finanzierung muss durchdacht sein, unvorhergesehene Kosten und Zeitverzögerungen sollen vermieden werden, und Sie möchten sicher sein, dass Sie sich auf Ihren Baupartner verlassen können. Gleichzeitig darf der zeitliche Einsatz neben Beruf und Familie nicht überwältigend werden. Dabei stehen wir von ScanHaus Ihnen als zuverlässiger Partner zur Seite.Warum ScanHaus?- Klare Planung, keine Überraschungen: Gemeinsam erstellen wir eine offene und transparente Gesamtkostenplanung, die alle Gebühren, Nebenkosten und mögliche Sicherheitspuffer berücksichtigt.- Planungssicherheit: Mit einem exakt definierten Bauzeitenplan wissen Sie von Anfang an, wann Ihr neues Zuhause bezugsfertig ist - garantiert in nur 10 bis 12 Wochen.- Finanzielle Entlastung: Wir unterstützen Sie dabei, Fördermittel optimal zu nutzen, damit Sie mehr in die eigentumsbildende Tilgung investieren können, anstatt in Zinsen.- Maximale Sicherheit: Mit unserem einzigartigen Konzept "Erst BAUEN - dann ZAHLEN" minimieren wir Ihr finanzielles Risiko und sorgen für größtmögliche Transparenz und Fairness.- Zeitersparnis: Dank durchdachter Prozesse und effizienter Bauweise halten wir den zeitlichen Aufwand für Sie so gering wie möglich.Mit ScanHaus bauen Sie nicht nur ein Haus, sondern ein langfristiges Zuhause, das perfekt auf die Bedürfnisse Ihrer jungen Familie abgestimmt ist. Gemeinsam schaffen wir Raum für Ihre Kinder, für gemeinsame Erlebnisse und für eine Zukunft, auf die Sie sich freuen können.ScanHaus - Ihr Partner für ein Zuhause, das Platz und Sicherheit bietet.
So funktioniert es
- Alle neuen Anzeigen matchen wir kostenlos mit Deinen Suchparametern.
- Passende Angebote senden wir Dir in einer E-Mail pro Tag.
- Du kannst auch verschiedene Suchen anlegen und Dich jederzeit abmelden. Mehr dazu
Wir haben soeben eine E-Mail mit Deinem Suchauftrag an Dich geschickt. – Klicke in dieser Mail auf den Bestätigungslink und schon geht's los. Prüfe ggf. auch Deinen Spamordner.
Es gab ein Problem beim Absenden Deiner E-Mail-Adresse. Bitte versuche es erneut.
WARNUNG: Bitte bestätige Deine E-Mail-Adresse, um regelmäßige Updates zu erhalten.