Kaufpreis 286.000 €
Zimmer 4
Größe 106 m²
33014 Bad Driburg
Objektdaten
Veröffentlicht am: 21. August 2025
Baujahr: 1997
Energieausweis: Liegt bei der Besichtigung vor
Danke! Bitte bestätige Deine E-Mail-Adresse – wir haben Dir soeben eine Mail geschickt.
Es gab ein Problem beim Absenden. Bitte versuche es erneut.
Bitte bestätige Deine E-Mail-Adresse, um Updates zu erhalten.
Objektbeschreibung
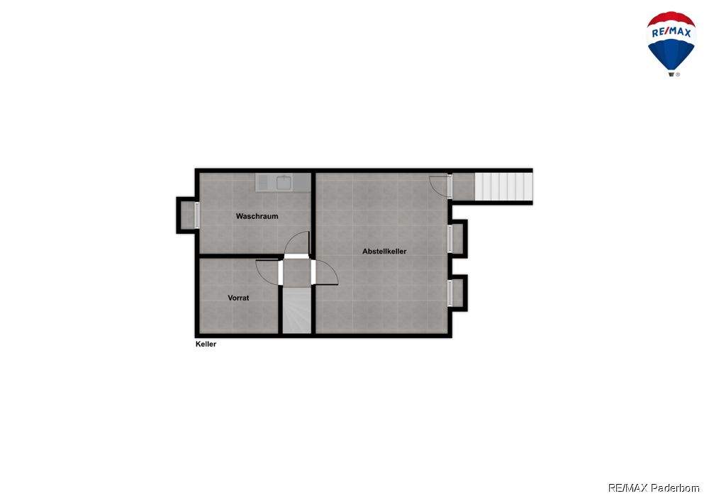
Hier werden Gemütlichkeit und Wohlfühlen großgeschrieben!Dieses wunderschöne und charaktervolle Reihenendhaus in Bad Driburg verzaubert Sie mit seiner warmen Ausstrahlung.Auf rund 106,6 m² Wohnfläche finden Sie genügend Rückzugsorte für die ganze Familie.Im Erdgeschoss gelangen Sie über den Flur in die geräumige Küche. Direkt angrenzend öffnet sich das gemütliche, offen gestaltete Wohn- und Esszimmer mit großer Fensterfront welches einen herrlichen Blick in den Garten bietet. Ein Gäste-WC komplettiert diese Etage.Im Obergeschoss erwarten Sie ein großzügiges Elternschlafzimmer mit Zugang zum Balkon, ein praktisches Gästezimmer sowie ein freundliches Kinderzimmer. Das Badezimmer ist u. a. mit einer Badewanne und einer Duschkabine ausgestattet.Das Kellergeschoss hält weitere Möglichkeiten bereit: Neben Vorrats- und Waschraum gibt es hier einen großzügigen, nachträglich ausgebauten Raum, der sich ideal als Gäste- oder Kinderzimmer eignet (nicht in der Wohnfläche enthalten).Ein besonderes Highlight ist der liebevoll angelegte, blickgeschützte Garten - perfekt für entspannte Abende im Freien. Für zusätzlichen Wohlfühlfaktor sorgt die Außensauna.Abgerundet wird das Angebot durch eine PKW-Garage, ein Carport und einen Außenstellplatz.Vereinbaren Sie gern einen Besichtigungstermin und überzeugen Sie sich selbst!
So funktioniert es
- Alle neuen Anzeigen matchen wir kostenlos mit Deinen Suchparametern.
- Passende Angebote senden wir Dir in einer E-Mail pro Tag.
- Du kannst auch verschiedene Suchen anlegen und Dich jederzeit abmelden. Mehr dazu
Wir haben soeben eine E-Mail mit Deinem Suchauftrag an Dich geschickt. – Klicke in dieser Mail auf den Bestätigungslink und schon geht's los. Prüfe ggf. auch Deinen Spamordner.
Es gab ein Problem beim Absenden Deiner E-Mail-Adresse. Bitte versuche es erneut.
WARNUNG: Bitte bestätige Deine E-Mail-Adresse, um regelmäßige Updates zu erhalten.