Objektdaten
Objektbeschreibung
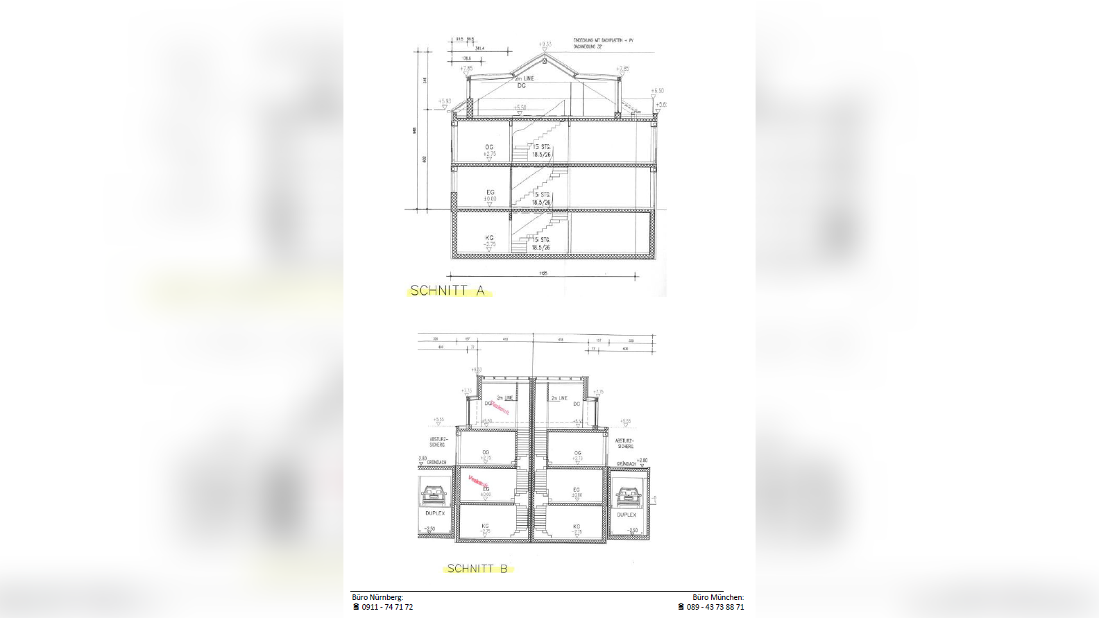
Das Haus ist ein Neubau Erstbezug und kann nach Ihren Wünschen errichtet werden. Im Bau ist vorgesehen:-Satteldach-Massive Ziegelbauweise-Einblechung und Dachrinnen in Kupferblech oder Titanzink-Keller in WU-BetonÄhnliche Angebote
So funktioniert es
- Alle neuen Anzeigen matchen wir kostenlos mit Deinen Suchparametern.
- Passende Angebote senden wir Dir in einer E-Mail pro Tag.
- Du kannst auch verschiedene Suchen anlegen und Dich jederzeit abmelden. Mehr dazu




