Kaufpreis 315.000 €
Zimmer 6
Größe 145 m²
84381 Johanniskirchen
Objektdaten
Veröffentlicht am: 28. August 2025
Energieausweis: Liegt bei der Besichtigung vor
Danke! Bitte bestätige Deine E-Mail-Adresse – wir haben Dir soeben eine Mail geschickt.
Es gab ein Problem beim Absenden. Bitte versuche es erneut.
Bitte bestätige Deine E-Mail-Adresse, um Updates zu erhalten.
Objektbeschreibung
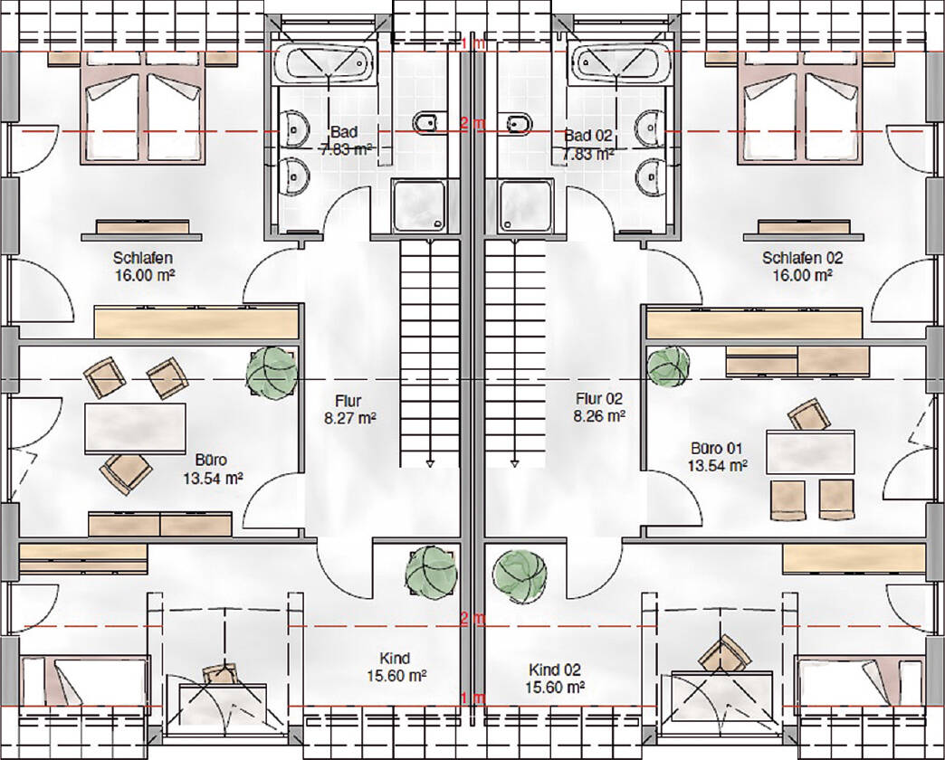
Diese moderne Doppelhaushälfte beeindruckt durch eine großzügige Wohnfläche von rund 145 Quadratmetern und insgesamt sechs Zimmern, was sie zu einer idealen Lösung für Familien, Paare oder alle macht, die viel Platz zum Leben, Arbeiten und Entspannen suchen. Im Erdgeschoss öffnet sich ein lichtdurchfluteter Wohn- und Essbereich mit integrierter Küche, der durch seine Großzügigkeit und Helligkeit besticht und Raum für gemeinsames Kochen, Essen und gemütliche Stunden mit Familie und Freunden bietet. Ergänzt wird das Raumangebot durch ein praktisches Gäste-WC, das den Alltag erleichtert und zusätzlichen Komfort bietet. Im Obergeschoss erwarten Sie drei gut geschnittene Zimmer, darunter ein geräumiges Schlafzimmer, das Ruhe und Rückzugsmöglichkeiten bietet, sowie zwei weitere Räume, die flexibel nutzbar sind – beispielsweise als Kinderzimmer, Arbeitsbereich oder Ankleide. Das großzügige Badezimmer ist sowohl mit Dusche als auch mit Badewanne ausgestattet und bietet ausreichend Platz für die tägliche Routine ebenso wie für entspannte Wellnessmomente. Die durchdachte Grundrissgestaltung verbindet funktionale Ansprüche mit modernem Design und sorgt für eine klare Trennung zwischen privaten Bereichen und gemeinschaftlichen Zonen, ohne Kompromisse beim Stil einzugehen. Die Raumaufteilung lässt sich flexibel an Lebensphasen anpassen; ob für wachsende Familienverhältnisse, Home-Office-Bereiche oder Freizeitaktivitäten – die Vielzahl der Möglichkeiten macht dieses Haus zu einer stilvollen und komfortablen Lebensstätte. Die Architektur legt Wert auf hochwertige Materialien, zeitlose Ästhetik und eine klare Linienführung, die das Ambiente des Hauses prägt und für eine angenehme Wohnatmosphäre sorgt. Dank moderner Haustechnik und durchdachter Details entsteht ein Ort, an dem Alltag und Erholung harmonisch zusammenfließen, während großzügige Fensterfronten Licht durchfluten und behagliche Räume schaffen. So entsteht ein Zuhause, das nicht nur heute, sondern auch in Zukunft durch Flexibilität und Stil überzeugt.
So funktioniert es
- Alle neuen Anzeigen matchen wir kostenlos mit Deinen Suchparametern.
- Passende Angebote senden wir Dir in einer E-Mail pro Tag.
- Du kannst auch verschiedene Suchen anlegen und Dich jederzeit abmelden. Mehr dazu
Wir haben soeben eine E-Mail mit Deinem Suchauftrag an Dich geschickt. – Klicke in dieser Mail auf den Bestätigungslink und schon geht's los. Prüfe ggf. auch Deinen Spamordner.
Es gab ein Problem beim Absenden Deiner E-Mail-Adresse. Bitte versuche es erneut.
WARNUNG: Bitte bestätige Deine E-Mail-Adresse, um regelmäßige Updates zu erhalten.