Kaufpreis 309.500 €
Zimmer 4
Größe 131 m²
94419 Reisbach
Objektdaten
Veröffentlicht am: 15. September 2025
Energieausweis: Liegt bei der Besichtigung vor
Danke! Bitte bestätige Deine E-Mail-Adresse – wir haben Dir soeben eine Mail geschickt.
Es gab ein Problem beim Absenden. Bitte versuche es erneut.
Bitte bestätige Deine E-Mail-Adresse, um Updates zu erhalten.
Objektbeschreibung
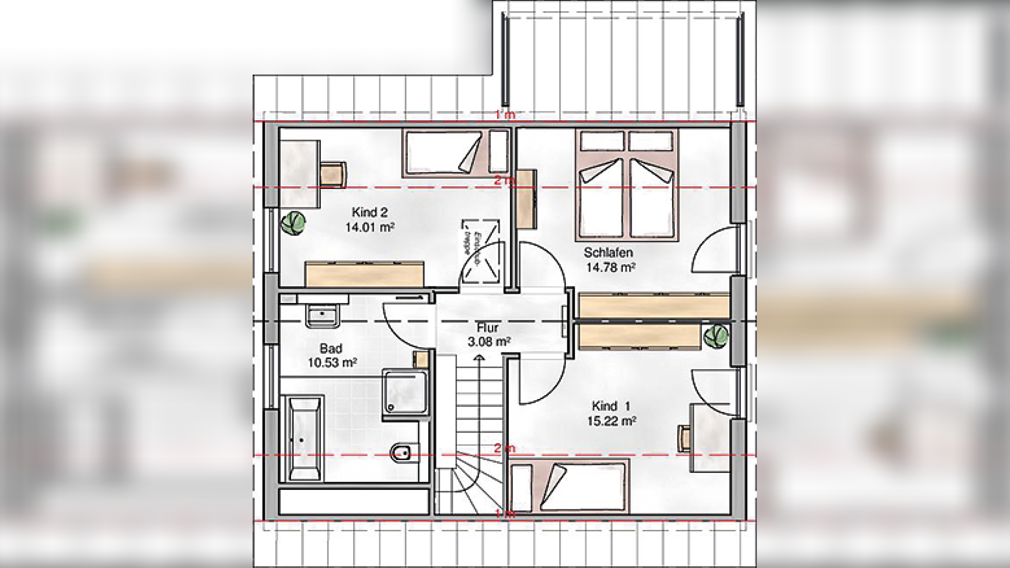
Einfamilienhaus „Verona“ – Wohnen mit Stil, Komfort und KonzeptCharmantes Einfamilienhaus mit durchdachtem Grundriss – ca. 131?m² Wohnkomfort für die ganze FamilieModern, effizient und familienfreundlich: Das Einfamilienhaus „Verona“ begeistert durch ein offenes Wohnkonzept, lichtdurchflutete Räume und eine durchdachte Raumaufteilung – perfekt für Familien oder Menschen mit Anspruch an großzügiges, funktionales Wohnen.Im Erdgeschoss erwartet Sie ein weitläufiger Wohn- und Essbereich mit integrierter Küche – das kommunikative Herzstück des Hauses. Großzügige Fensterflächen holen viel Tageslicht ins Haus und schaffen ein angenehmes Wohngefühl. Ein separates Gäste-WC sowie ein praktischer Hauswirtschaftsraum sorgen für zusätzlichen Komfort im Alltag.Das Obergeschoss überzeugt mit zwei flexibel nutzbaren Zimmern – ideal als Kinder-, Arbeits- oder Gästezimmer. Das großzügige Elternschlafzimmer und ein modernes Badezimmer mit Badewanne und Dusche runden das Raumangebot ab und bieten Wohlfühlambiente für die ganze Familie.Durchdacht gebaut – nachhaltig geplant„Verona“ wird in hochwertiger Massivbauweise errichtet und erfüllt den KfW-55-Effizienzhausstandard. Damit profitieren Sie von niedrigen Betriebskosten, exzellenter Wärmedämmung und modernster Haustechnik. Die Verwendung geprüfter Markenmaterialien namhafter Hersteller garantiert Qualität, Langlebigkeit und Wertbeständigkeit.Bauweise & Ausstattung (Auszug):• Hochwertige Massivbauweise mit moderner Architektur• Erdarbeiten, Bodenplatte, Rohbau, Dachkonstruktion & -eindeckung• Hochwertige Fenster mit Wärmeschutzverglasung (Kunststoff oder Aluminium)• Elektro- und Heizungsinstallationen gemäß neuester Standards• Vorbereitete Sanitärinstallationen, Innenputz, Estrich und Innentüren• Fliesenarbeiten in den Bädern• Maler- und Bodenbelagsarbeiten außerhalb der Bäder optional buchbarIndividuell & zukunftssicherWünsche hinsichtlich Grundriss, Raumgrößen, Materialien oder Ausstattung können auf Wunsch angepasst werden – für ein Zuhause, das wirklich zu Ihnen passt.Fazit:„Verona“ ist mehr als nur ein Haus – es ist ein Ort zum Leben, Wachsen und Wohlfühlen. Ob als Familiennest oder moderner Rückzugsort: Dieses Haus bietet Ihnen die perfekte Kombination aus Wohnqualität, Effizienz und Flexibilität.
So funktioniert es
- Alle neuen Anzeigen matchen wir kostenlos mit Deinen Suchparametern.
- Passende Angebote senden wir Dir in einer E-Mail pro Tag.
- Du kannst auch verschiedene Suchen anlegen und Dich jederzeit abmelden. Mehr dazu
Wir haben soeben eine E-Mail mit Deinem Suchauftrag an Dich geschickt. – Klicke in dieser Mail auf den Bestätigungslink und schon geht's los. Prüfe ggf. auch Deinen Spamordner.
Es gab ein Problem beim Absenden Deiner E-Mail-Adresse. Bitte versuche es erneut.
WARNUNG: Bitte bestätige Deine E-Mail-Adresse, um regelmäßige Updates zu erhalten.